Перейти к содержанию
Форумы о ремонте и строительстве

Перепланировка в 1к. квартире (новостройка)

Оценить эту тему:


Рекомендуемые сообщения

Опубликовано (изменено)

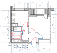
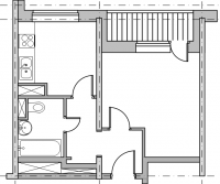
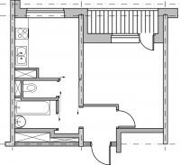
Уважаемые форумчане!Близкий человек вот-вот станет счастливым обладателем собственного жилья в г. Долгопрудный (МО).Планировка "однушки" просто убийственная, потому хочется переделать хоть что-то с минимумом согласований.Эскиз перепланировки (если этот набросок можно можно назвать эскизом), а также эскизы того что было и, что планируется прилагаются. Красным показано исходное состояние, синим - что планируется.Общий смысл изменений:1. Поменять направление открытия входной двери (наружу). Дверь в соседнюю квартиру рядом (начинается на низкой точке первого чертежа и пока открывается внутрь квартиры)2. Переместить вход в комнату на правую стену, чтобы лучше отгородить ее визуально от прихожей.3. Разделить санузел (планируется 2 жильца).4. При разделении санузла поменяются местами ванна и раковина5. Если получится, хотим немного (сантиметров на 20) увеличить санузел за счет коридора6. Немного расширить дверной проем на кухню (ближе к несущей стене)7. Поставить сдвижную (на стену) дверь в прихожую.8. Заменить двери в ванную, туалет и кухню на сдвижные (на стену).Теперь вопросы по пунктам:По п.1 - вроде нужно согласование с соседями. А еще с кем-то надо согласовывать?По п.2 - если у кого-то есть идеи как применить дверь какого-то другого типа для экономии площади, с удовольствием выслушаю.По п.5 - получится ли согласовать перепланировку по эскизу в случае, если сантехника не будет вылезать за пределы старого санузла?По п.8 - двери в ванную и в туалет идут внахлест вдруг к другу. Как это лучше организовать? Наверное, двери должны быть относительно тонкие?P.S. Если у кого есть опыт подобных согласований в Долгопрудном, поделитесь, пожалуйста.P.P.S. На чертеже есть проблемы с некоторыми размерными линиями (часто меняю, не все успел поправить)Заранее спасибо!

post-2382-1312259374_thumb.png

post-2382-1312261732_thumb.png

post-2382-1312261736_thumb.png

Изменено пользователем Everz-z-z
  • 3 недели спустя...

у меня весьма похожая планировка была с небольшими поправками. в этой квартире первое что я сделала бы - это расширила санузел за счет всей левой части прихожей, а вход в кухню сделала бы через комнату. но я люблю совмещенные санузлы и не люблю коридорыя не в россии, но насколько подсказывает память и здравый смысл, соседи тут вообще ни при чем. согласовывать надо с организацией, которая у нас например называется строительное управление, а как в россии - не помню. крутится на языке аббревиатура типа бри, но не уверена

ну не с возвращением наверно, а с заглядыванием. теперь сиднем не посидишь, сынка народился :) но ремонт продолжается

Входную дверь можете заменить бесплатно без согласований. Если копите бумажки, звоните 01, вызываете пожарника и получаете пинок и предписание на замену двери, установленной в нарушение норм пожарной безопасности. Никаких бумаг ни для чего не нужно, кроме пункта увеличения площади мокрого помещения за счет коридора. Если орать и всем своим видом показывать, что ты самый умный, в БТИ Питера такую бумагу получить можно за 15 тыс. Все остальные получают их гораздо дешевле. Изменеине простое, никаких проблем с ним не будет. Что касается перетасовки девайсов, то этот пункт также требует согласования, но считается несущественным, и вопрос может возникнуть толкьо в случае продажи квартиры. Во всех остальных случаях никого не интересует, где у вас стоит раковина, а где ванная. В проект она заведена как наследие от расчетов перекрытий, дабы обозначить точку приложения существенной нагрузки на оные (то есть открыть методу, как считали) - только и всего. Я делал такие квартиры. У нас эти планировки активно пользовал строймонтаж. Желания перенести туда дверь никогда не возникало, потому что в комнате в нише я всегда строил огромный шкаф-купе.

(изменено)

Спасибо за ответы!Из того, что я узнал на данный момент:Конкретно в Долгопрудном согласовать по эскизу не получится - только по проекту. Сделать сам проект стоит порядка 15 тысяч (без согласований).По поводу входной двери: я правильно понял, что законно такую дверь поставить нельзя? Или этот вопрос лучше задать в форум по дверям?По поводу двери в комнату: перед тем, как окончательно разбираться с планом перепланировки, планирую сделать виртуальную модель и расставить в ней мебель, чтобы было понятнее, как это будет выглядеть. Делаю для девушки (квартира ее) и ей решать.P.S. А какие есть альтернативные варианты получения подобных бумажек? Я в этом плохо разбираюсь. Хочу оформить все, чтобы не было потом никаких проблем с продажей и т.п. Сделать один раз, как положено и забыть, как страшный сон.

Изменено пользователем Everz-z-z

ну у нас тоже только по проекту перепланировки утверждаются. а вот по поводу цен вы позвоните по объявлениям если у вас такое практикуется. я звонила по первым трем попавшимся, первый назвал сумму, которая на рубли тоже 15 тысяч, вторая 5, а третья 2. на третьей и остановились. это оказалась практикантка без сертификата, она делала проект а печать ставила ее коллега с сертификатом. поэтому так дешево.

Для публикации сообщений создайте учётную запись или авторизуйтесь

Вы должны быть зарегистрированным пользователем, чтобы оставить комментарий

Создать учетную запись

Зарегистрируйтесь в нашем сообществе.

Зарегистрироваться

Войти

Уже есть аккаунт? Войти в систему.

Войти

Или войти с помощью одного из сервисов



  • Наши рекомендации

    • Подходы к ремонту старых домов в России
      В России сотни тысяч старых домов, многие из которых являются не только свидетельством исторического наследия, но и отражением уникальной культуры и традиций страны. Эти дома, будь то деревянные избы или старинные каменные постройки, сохраняют в себе дух времени и рассказывают историю поколений.

      • 0 ответов
    • Как построить теплый дом, не тратя лишних денег
      Строительство гостевого дома решил выделить в отдельную тему, так будет меньше путаницы.


        • Спасибо
        • Нравится
      • 259 ответов
    • Кажись всё или строительный пылесос с тройной мультициклонной ступенью очистки
      Кажись всё или строительный пылесос с тройной мультициклонной ступенью очистки

        • Нравится
      • 16 ответов
    • Дома из сруба: идеальное сочетание уюта и прочности.
      Строительство собственного дома является важной вехой в жизни любого человека, поскольку оно знаменует собой важное событие. Выбор строительных материалов имеет огромное значение для создания теплого и функционального жилища. На протяжении всей древней истории древесина была распространенным материалом для строительства домов, что отразилось на различных культурах мира.

      • 0 ответов
    • Аккумуляторные пилы  SCW и  SCM  22-A
      После того как провёл тесты, приступил к самому главному. Поменять диски местами, и проверить, как инструмент на это отреагирует, ведь они внешнее и походу внутренне практически одинаковые, пила по дереву конечно более навороченее, есть настройки угла наклона и можно на шину посадить через адаптер.

      • 4 ответа
    • Вторая жизнь дивана: искусство ремонта мягкой мебели своими руками
      В эпоху беспрерывного потребления и стремления к новизне, ремонт старой мягкой мебели своими руками приобретает не просто практическое, но и глубоко философское значение. Это действие как знак уважения к труду мастеров, которые вложили свое мастерство в создание диванов, кресел и пуфов, и как воплощение идеи устойчивого потребления. С каждым возвращенным к жизни предметом мебели, мы не только сохраняем историю и уникальность каждого изделия, но и противостоим бездумному обновлению интерьера за счет экологии и рационального использования ресурсов.

        • Нравится
      • 0 ответов
    • Газовые котлы: эффективное, экономичное и экологичное решение для отопления вашего дома
      В современном мире, где комфорт и устойчивость стали ключевыми аспектами повседневной жизни, выбор правильного источника отопления дома становится особенно актуальным. Газовые котлы, сочетая в себе преимущества эффективности, экономичности и экологичности, представляют собой одно из наиболее популярных решений для обеспечения комфортной температуры в жилых и коммерческих помещениях.

      • 0 ответов
    • Люк для кошек своими руками
      Разумеется давно придуманы и продаются специальные лючки для кошек, которые можно врезать в дверь, но мы ведь не ищем легких путей . Да и по зоомагазинам я не хожу, а "гугление" показало, что такие люки для кошек стоят относительно не дешево. В то же время под рукой были два "копеечных" сантехнических пластиковых лючка для ГКЛ. Все что оставалось, так это обломать фиксаторы крышек, что бы они открывались в обе стороны, ровно выпилить отверстие в двери, да вклеить симметрично эти лючки.

      То, что получилось видно на фото. Разумеется это не для тех, у кого "дизайнерский ремонт", но для обыкновенной квартиры вполне подходит. Недостатков не замечено, животных и людей всё устраивает .


      Реакцию форумчан на этот люк можно узнать в этой теме https://homemasters.ru/...me/?p=330637

        • Ого
      • 6 ответов
×
×
  • Создать...

Важная информация

Мы разместили cookie-файлы на ваше устройство, чтобы помочь сделать этот сайт лучше. Вы можете изменить свои настройки cookie-файлов, или продолжить без изменения настроек.