Перейти к содержанию
Форумы о ремонте и строительстве

Хрущёвка

Оценить эту тему:


Рекомендуемые сообщения

Опубликовано

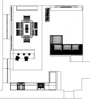
Имею вот такую 4-х комнатную квартиру, один раз уже переделанную в 3-х комнатную.Собираюсь делать ремонт, когда то ведь надо это делать.Вот и подумалось, чё это я всё для чужих наворачиваю, может себе что замутить.Делать буду долго-долго, поэтому есть время и на создание дизайна и на его корректировку.Так что господа Дизайнеры и все желающие, милости просим.Заказчик я и согласовывать всё со мной.Посмотрим, может теперь что нибудь получиться.

post-40814-1317404618_thumb.jpg

Fomins, а с четырех комнатной необходимо опять сделать трешку? 1. Или студию? 2. Или еще че? 3. Сколько человек там будет жить? 4. Что за люди? 5. Планировка?6. Экспликация?7. Пожелания?Fomins, Вы ведь человек с опытом, почему входящих так мало?

Количество комнат менять не надо. На плане их три, плюс кухня-столовая и коридор (холл).Входящих мало, потому как не надеялся на ответы.Живём вдвоём: я и "баба" моя.Одна спальня для нас, другая для приходящих и гостиная. Короче, видоизменять конфигурацию-можно, менять количество комнат-нельзя.Дом кирпичный. Несущие стены только по периметру квартиры.Двери менять не буду. Они у меня филёнчатые, классической формы. Дороги как память.Поэтому, на счёт стиля, думаю, эклектика подойдёт. Классика, наверное слишком круто будет. А в прочем рассмотрю все варианты.Свой уже примерно есть, но пока озвучивать не буду, чтобы не ограничивать Вашу фантазию.Потолки 2,6 метра. Если сдвинется с мёртвой точки, выложу план с размерами.

Кухня возле холла? И размеры интересно. А может модель, если по размерам, выложить?

Кухня-столовка возле холла, разделены перегородкой из филёнчатых дверей.

Модель сделана по размерам, в SketchUp.

Она вряд ли сюда загрузится, формат не тот.

Если есть настрой чё нибудь порисовать, то кивните и я тогда пойду план с размерами рисовать

post-40814-1317411873_thumb.jpg

Fomins, таки нужна планировка. Чтоб понимать размеры, положение стояков, газовых труб и т.д.

Прихожая, Гостиная и Кухня-столовая, это то, что требует какого то дизайна. Спальни и санузел могут обойтись без него.Отдельно комнаты с размерами

post-40814-1317420011_thumb.jpg

post-40814-1317420020_thumb.jpg

post-40814-1317420029_thumb.jpg

  • 1 месяц спустя...

Ладно со своей квартирой опять подожду.

Чтобы тем больше не плодить, буду спрашивать здесь, думаю, что неоднократно ещё....

Вот опять нужна ваша помощь.

Это уже не хрущёвка

Квартира для трёх человек. Мама, папа и дочь старшеклассница.

Какие нибудь мысли по перепланировке и дизайну. Конкретно, нужно объединить кухню с гостиной и засунуть в это пространство кухню со всеми причиндалами, барную стойку, угловой диван, столовую зону, телевизор и всё что к нему. Обставить и отдизайнировать обе спальни (родительскую и для старшеклассницы) и что то с прихожей.

Короче или мысли вслух, или картинки какие нибудь, или и то и другое. В общем как обычно у меня, нужен пинок, чтобы мозги включились.

Alef, уважаемый, попинайте пожалуйста. У вас это получается. Ну и Вы,Lj Alex, тоже не стесняйтесь.

post-40814-1320773909_thumb.jpg

Ладно,"бодаться" не будем,моё участие будет сдержанным,без эмоций :) пара набросковpost-11625-1320837986_thumb.jpgpost-11625-1320838001_thumb.jpgплощадь кухни-столовой-гостиной скромная конечно,но "навскидку" всё хорошо размещается.Дальше будет видно....

Alef, спасибо, в принципе нормально, думаю больше ничего и не надо с этим углом квартиры делать, только я думаю холодильник лучше в угол переставить, отделив перегородкой от коридора, чтобы туда шкаф вставить.

Так он мешать в прихожей не будет.

Вот так примерно:

post-40814-1320857388_thumb.jpg

post-40814-1320857396_thumb.jpg

post-40814-1320857402_thumb.jpg

имхо у Alef то что надо

да и вообще мне часто его наброски нравятся, так что мое мнение можно считать предвзятым :)

Подписываемся на тему День за днём, моя работа https://homemasters.ru/...esta-raboty/ и на мой инстарам https://www.instagram.c...gda35remont/

Принимаю заказы на мебель из слэбов

 

я как-то "что-то с прихожей" по-другому понял и расчёты делал под некий "комплекс" -шкаф 500 глубиной и 1000 шириной с распашными дверцами + на соседней стене "комод" .Честно,никак не думал ужимать "гостиную" ради купе в прихожей.Кухню думал как можно компактнее сделать... Вам виднее ;)

Честно,никак не думал ужимать "гостиную" ради купе в прихожей

Так там ничего и не ужимается. Как раз в нишу встаёт, по родной стене.

Вам виднее

Alef, не бойтесь быть неполиткоректным :D

я как-то "что-то с прихожей" по-другому понял и расчёты делал под некий "комплекс" -шкаф 500 глубиной и 1000 шириной с распашными дверцами + на соседней стене "комод"

Это как?

короче,собака порылась в том месте,где я до основания снёс остатки стенки и передвинул её ближе к входной двери.Раз уж мы делим бывшую "залу" на две вполне конкретные зоны,мне захотелось добавить пространства в "диванно-телевизорную" часть.Можно конечно этого не делать,но я бы сделал именно так. Возможно есть погрешности в размерах в модели помещения ,но в общем выглядит так.post-11625-1320867122_thumb.pngи ,кстати,в данном случае -в буквальном смысле Вам виднее ;) возможно есть нюансы,о которых не было сказано...

А, понял о чём речь. Ну да, всё логично. Тут просто вариант, какой хозяину больше подойдёт. То есть нужен или нет ему большой шкаф в прихожей.

Послушайте, что то в последнее время, попадаются какие то заказчики, непонятно как с ними работать.

Попросят нарисовать. Для себя перерисуешь несколько вариантов, определишься с приоритетным и предлагаешь ему.

А как раз этот вариант ему и не нравиться, выбирает самый дурной, самый неудобнопользовательский потом для него.

Что с этим делать, ума не приложу?

Если бы только нарисовать, то и хрен с ним. Нарисовал, деньги получил и еб....сь вы по нотам, но ведь мне потом ешё и делать.

А делать вариант, к которому душа не лежит как то стрёмно, неуютно как то.

Раньше когда в тетрадке рисовал (схематично), такого не было. Рисуешь для себя, чтобы самому понятно было, показываешь заказчику, он с умным видом кивает головой и говорит делай. Делаешь, он смотрит в объёме и ему нравиться. То есть я выбирал как ему дальше жить, а сейчас он сам это делает и не лучшим образом.

Вот и сейчас показал ему вариант Alef, спрашивается что тебе ещё надо. Нет, говорит, хочу чтобы шкаф в прихожей стоял вдоль стены и вход через гостиную был, а не через кухню. Говорю ему, так много место сожрёт, ходить негде будет. Ничего говорит, у нас сейчас коридорчик поменьше, но и то всё умещается.

Вот в свете этих событий решил ему такие варианты предложить. Даже не знаю, как он на это прореагирует.

Пока вы чё нибудь скажИте.

post-40814-1321007506_thumb.jpg

post-40814-1321007532_thumb.jpg

Даже не знаю, как он на это прореагирует.

Делайте по инструкции "пошагово":

1."Выключаете мозг" .

2.Показываете картинки,смОтрите на реакцию,с видом крайней заинтересованности прОсите заказчика отметить недочёты (если есть на его взгляд) демонстрируете немедленную готовность воплотить его блестящие мысли в реальность.

3.С учётом пожеланий делаете ему "хату его мечты". Напоминаю,мозг держим выключенным ! :)

Можно было бы конечно привести ему доводы в пользу первых набросков и попросить обосновать его вариант,но похоже бесполезно.

Вариант "хмыкнуть,развернуться и уйти" -крайний случай :) .

Лично я с интересом жду продолжения,определитесь с компоновкой,дальше будет видно...

P.S.Вот есть у меня ещё догадка что Вы сами его сбили с толку шкафом-купе ;) Для неизбалованных роскошью советских людей,шкаф-купе есть символ достатка и вообще гений конструкторской мысли.Поэтому иметь купе хотят все.Это как югославская "стенка" . И непременно чтоб с зеркальными вставками в двери...Два-три шкафа-купе(один из них в коридоре) -вообще предел мечтаний...Ну короче,всё весьма предсказуемо и грустно.Зато все охотно вставляют в свой лексикон слово "дизайн"(заказчиков имею в виду)....

P.P.S. ;) Вот ещё мысль такая жужжит- почему на тетрадном листочке,схематично всё было OK? Да потому что заказчик ничего "лишнего" не видит! ;) А тут -увидел на картинке шкаф ,мозг реагирует моментально-"ХОЧУ!" Уместно-неуместно -мозг это не не интересует , он скандирует "ХОЧУ"! ;)

С учётом пожеланий делаете ему "хату его мечты". Напоминаю,мозг держим выключенным !

Да, а потом, уже в реализованном виде клиентка видит явные недочёты, о которых она не соизволила упомянуть (нет скажем места под всякий шурум-бурум её), хотя всё красиво. И начинаются слёзы буквально у обоих - у клиенки и дизайнера (тоже баба) - реальный случай.Заканчивается тем что квартира с вбуханными 3 лимонами только на материалы (года 3-4 назад было) стоит пустая и с перспективой на продажу. Жить там клиентка не хочет!Может лучше на бумажке продолжать рисовать?

Alef, на счёт шкафа-купе, тут не я виноват.

Они же смотрят друг у друга. Это один из минусов "сарафана"

Он ещё и угловой диван хочет поперёк комнаты зафигачить. Каталогов насмотрелся с буржуйскими квартирами а-ля спортзал и тож так захотелось.

На плане нарисовал, маленький такой диванчик, не в масштабе и думает, что всё уместиться. Мрак...

Ладно, отослал ему эти поделки, вечером обещал посмотреть и отзвониться по поводу пойдёт-не пойдёт.

bagayama про три лимона только на материалы -лишнее подтверждение того,что "шальные"деньги ни ума ни вкуса не прибавляют,но замашки царские порождают мгновенно.ДизайнЁршу не жалко,надо чувствовать таких клиентов и уметь просто отказать.

fomins,давайте по-хитрому :) Чтобы и клиент доволен был,и себе не скучно работать было. Пока надо больше вытянуть из заказчика,а потом уже в его вИдение добавлять детали,может даже удастся "незаметно что-то " изменить и в итоге слепить более-менее толковое...

Для публикации сообщений создайте учётную запись или авторизуйтесь

Вы должны быть зарегистрированным пользователем, чтобы оставить комментарий

Создать учетную запись

Зарегистрируйтесь в нашем сообществе.

Зарегистрироваться

Войти

Уже есть аккаунт? Войти в систему.

Войти

Или войти с помощью одного из сервисов



  • Наши рекомендации

    • Дома из сруба: идеальное сочетание уюта и прочности.
      Строительство собственного дома является важной вехой в жизни любого человека, поскольку оно знаменует собой важное событие. Выбор строительных материалов имеет огромное значение для создания теплого и функционального жилища. На протяжении всей древней истории древесина была распространенным материалом для строительства домов, что отразилось на различных культурах мира.

      • 0 ответов
    • Газовые котлы: эффективное, экономичное и экологичное решение для отопления вашего дома
      В современном мире, где комфорт и устойчивость стали ключевыми аспектами повседневной жизни, выбор правильного источника отопления дома становится особенно актуальным. Газовые котлы, сочетая в себе преимущества эффективности, экономичности и экологичности, представляют собой одно из наиболее популярных решений для обеспечения комфортной температуры в жилых и коммерческих помещениях.

      • 0 ответов
    • Вторая жизнь дивана: искусство ремонта мягкой мебели своими руками
      В эпоху беспрерывного потребления и стремления к новизне, ремонт старой мягкой мебели своими руками приобретает не просто практическое, но и глубоко философское значение. Это действие как знак уважения к труду мастеров, которые вложили свое мастерство в создание диванов, кресел и пуфов, и как воплощение идеи устойчивого потребления. С каждым возвращенным к жизни предметом мебели, мы не только сохраняем историю и уникальность каждого изделия, но и противостоим бездумному обновлению интерьера за счет экологии и рационального использования ресурсов.

        • Нравится
      • 0 ответов
    • Люк для кошек своими руками
      Разумеется давно придуманы и продаются специальные лючки для кошек, которые можно врезать в дверь, но мы ведь не ищем легких путей . Да и по зоомагазинам я не хожу, а "гугление" показало, что такие люки для кошек стоят относительно не дешево. В то же время под рукой были два "копеечных" сантехнических пластиковых лючка для ГКЛ. Все что оставалось, так это обломать фиксаторы крышек, что бы они открывались в обе стороны, ровно выпилить отверстие в двери, да вклеить симметрично эти лючки.

      То, что получилось видно на фото. Разумеется это не для тех, у кого "дизайнерский ремонт", но для обыкновенной квартиры вполне подходит. Недостатков не замечено, животных и людей всё устраивает .


      Реакцию форумчан на этот люк можно узнать в этой теме https://homemasters.ru/...me/?p=330637

        • Ого
      • 6 ответов
    • Как построить теплый дом, не тратя лишних денег
      Строительство гостевого дома решил выделить в отдельную тему, так будет меньше путаницы.


        • Спасибо
        • Нравится
      • 259 ответов
    • Кажись всё или строительный пылесос с тройной мультициклонной ступенью очистки
      Кажись всё или строительный пылесос с тройной мультициклонной ступенью очистки

        • Нравится
      • 16 ответов
    • Аккумуляторные пилы  SCW и  SCM  22-A
      После того как провёл тесты, приступил к самому главному. Поменять диски местами, и проверить, как инструмент на это отреагирует, ведь они внешнее и походу внутренне практически одинаковые, пила по дереву конечно более навороченее, есть настройки угла наклона и можно на шину посадить через адаптер.

      • 4 ответа
    • Подходы к ремонту старых домов в России
      В России сотни тысяч старых домов, многие из которых являются не только свидетельством исторического наследия, но и отражением уникальной культуры и традиций страны. Эти дома, будь то деревянные избы или старинные каменные постройки, сохраняют в себе дух времени и рассказывают историю поколений.

      • 0 ответов
×
×
  • Создать...

Важная информация

Мы разместили cookie-файлы на ваше устройство, чтобы помочь сделать этот сайт лучше. Вы можете изменить свои настройки cookie-файлов, или продолжить без изменения настроек.