Перейти к содержанию
Форумы о ремонте и строительстве

Оценить эту тему:


Рекомендуемые сообщения

Двери "ромбиком" я бы всё же не делал. В первом варианте линия спальня-детская перекликается с линией гостиная-кухня ,мне так больше нравится . Это можно поддержать светом потолочным в холле (развить идею с "фонарём" ). Дверь в маленький санузел на углу все же не очень,к тому же "горшок" прям возле входа и вся эта "прелесть" "смотрит" сразу и на гостиную и на кухню. Что касается гостиной -решать вам. Если кухня-столовая устраивала в первоначальном варианте-вернитесь к нему. Если смущает тв на углу -можно вернуть на прежнее место. Я посмотрел вчера файл,видел ваши "поиски" - можно и теперь не привязываться к этому расположению,а "покрутить-повертеть". И лучше "вертерть" имея в мыслях реальные мягкую мебель ,бытовую технику и другие детали .

...Если смущает тв на углу -можно вернуть на прежнее место. Я посмотрел вчера файл,видел ваши "поиски" - можно и теперь не привязываться к этому расположению,а "покрутить-повертеть". И лучше "вертерть" имея в мыслях реальные мягкую мебель ,бытовую технику и другие детали .

Да, в гостиной теперь просто прямая стена старого варианта как то не очень, наверное нужно поддержать эти изгибы в остальной части квартиры...Сейчас подумаю... Еще вопросик: на ваших чертежах все двери открываются внутрь помещения, даже в санузлах. Почему так?Вообщем, лучше будет так, как в вашем плане. Уж очень продумано получается. Принимаются любые идеи, прошу высказываться :) :post-70849-1324461810_thumb.jpg

Еще вопросик: на ваших чертежах все двери открываются внутрь помещения, даже в санузлах. Почему так?

о-о-о,это далеко не единственная моя странность,я ещё писать-читать умею справа-налево тексты,состоящие практически из одних согласных букв :) У нас просто так делают везде .Есть четыре типа -открытый проём,полноценные сдвижные двери,несерьёзные гармошки ,и дверь распашная,открывающаяся внутрь помещения. Есть ещё металлические герметичные двери ,устанавливаемые в "комнатах безопасности" (особенности нашего местного жития -в новых домах в квартирах такая комната уже обязательное условие,так же и при частном строительстве)-так вот там дверь открывается наружу -особенности конструкции и специфика помещения, а окно закрывается металлической "шторкой "толщиной 20 мм на колёсах ...Новомодные двери "туда-сюдайки" пока не имеют широкого распространения,поэтому о них не говорим. Почему именно внутрь помещения- экономия места и объективное удобство . Кроме того,межкомнатные двери часто бывают открыты,а снаружи просто может не оказаться места для открытой двери .Да и площади и планировки квартир бывают такими,что две-три двери могут находится практически на квадрате 1м2 -там,если наружу,то только если по команде открывать-закрывать двери...

Есть ещё металлические герметичные двери ,устанавливаемые в "комнатах безопасности"

Ого, это как в фильме "Комната страха"? А как такая комната вентилируется?

я ещё писать-читать умею справа-налево тексты,состоящие практически из одних согласных букв

Иврит читается справо налево? Не знал даже :) Я думал, что только арабский язык.

комната эта не вентилируется никак,рассчитана на непродолжительное (до нескольких часов) время,спасет в случае прямого попадания всяких "несерьёзных" ракет,коими любят покидаться наши обиженные-обделённые соседи.Будет громко ,страшно,но не опасно. Если всё будет "по-взрослому" , то ... <_< да,иврит читается справа-налево.

Новомодные двери "туда-сюдайки"

О, раз уж речь зашла, да и пока думаете куда дальше двигаться, Alef расскажи про эти туда-сюдайки. Сильно дороже обычных стоят? Петля сильно сложная? Может есть ссылка где про них можно почитать? У нас я их ещё не смотрел. Я их вообще в выходные, вроде в "КВ", первый раз увидел. Идея понравилась.

да я сам их только в журналах видел :) так что рассказать -увы... :unsure: погугли "рото дверь", есть что почитать-посмотреть

Так такая наверное не удобная, вот, почти треть проёма перекрывает в открытом состоянии.Те то я давно как то ставил.

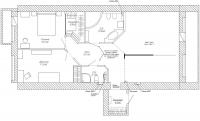
А что если все организовать как то так? Очень нужна критика и идеи:)post-70849-1324481032_thumb.jpg

по-моему,"не туда" пошёл ход мысли. Позже обсудим подробнее.

Ну вот давайте подискутируем :) . Почему так.

Жене понравилось размещение кухонной мебели в ряд, "конвейер" (ваша идея). Она говорит, что удобно будет готовить в вдвоем, например, никто никому не мешается.

Затем единое пространство гостиной и кухни наверное удобно, чтобы пригласить друзей в количестве больше двух.

Притом большой диван уголком стоит спиной к кухне, значит, за хозяйкой не подглядывают.

ТВ видно от круглого стола.

Появился шкаф напротив входа.

Ну и соблюдается угловатость планировки :) .

А fomins, Bagis - что скажете? У вас большой опыт... Может другие профи что то подскажут.

Самым правильным решением было бы сделать раздельными кухню-столовую и гостиную,но со стороны стола и выхода на балкон сделать сдвижную перегородку ,таким образом при желании иметь возможность "объединять" эти два помещения .Вот к этому варианту надо стремиться,по моему скромному мнению.Это вполне осуществимо.

... со стороны стола и выхода на балкон сделать сдвижную перегородку ,таким образом при желании иметь возможность "объединять" эти два помещения .Вот к этому варианту надо стремиться,по моему скромному мнению.Это вполне осуществимо.

Так это получается, что нужно взять прямую стену из моего старого варианта и сконструировать ее со сдвижной перегородкой. post-70849-1324488141_thumb.jpg Предлагаете так?P.S. прошу прощения за дивную графику, дома только Paint :)

нет,не так буквально. Позже (или даже завтра) покажу и расскажу свой вариант.

Troy, мой Вам совет. Доверьтесь Alef полностью и на выходе получите эксклюзив.

Мои споры с ним возникают не потому, что мне не нравятся его решения, а потому, что по ряду причин у него это получается достаточно долго, но зато правильно.

Я работаю на заков и времени у меня в обрез, поэтому и "стычки". Вы делаете себе, потерпите немного и будете приятно удивлены. Вы ведь уже ощутили радость от дизайнерской мысли Alef. Дайте ему развернуться по настоящему и Вы не пожалеете потраченного на это времени.

Спасибо за добрые слова. :rolleyes: Форум-он на то и форум чтобы обсуждать,делиться,искать вместе и находить. Надеюсь,все замечают что я часто оговариваюсь про скромное мнение.Это не для красного словца,это действительно так-не надо полностью полагаться только на меня,я тоже могу ошибаться,как и любой другой человек. Просто когда я думаю что мне есть что сказать - говорю. А про время -да,к сожалению приходится отвлекаться на работу и всякие другие дела вне форума :) . Так что не сидим сложа руки,думаем,ищем! :)

Troy, мой Вам совет. Доверьтесь Alef полностью и на выходе получите эксклюзив.

Это точно. Как говорится - ППКС :) Тут, КМК, потому всё и молчат, что Alef слишком хороший спец. в этом вопросе. Тут уж никому ни чего не прибавить :)

fomins, дверь потом к коробке уезжает. Фотка просто неудачная. Вы сами погуглите, а то тут как-то неудобно. Я потом в дверной теме попробую эту тему продолжить.

Для публикации сообщений создайте учётную запись или авторизуйтесь

Вы должны быть зарегистрированным пользователем, чтобы оставить комментарий

Создать учетную запись

Зарегистрируйтесь в нашем сообществе.

Зарегистрироваться

Войти

Уже есть аккаунт? Войти в систему.

Войти

Или войти с помощью одного из сервисов



  • Наши рекомендации

    • Подходы к ремонту старых домов в России
      В России сотни тысяч старых домов, многие из которых являются не только свидетельством исторического наследия, но и отражением уникальной культуры и традиций страны. Эти дома, будь то деревянные избы или старинные каменные постройки, сохраняют в себе дух времени и рассказывают историю поколений.

      • 0 ответов
    • Люк для кошек своими руками
      Разумеется давно придуманы и продаются специальные лючки для кошек, которые можно врезать в дверь, но мы ведь не ищем легких путей . Да и по зоомагазинам я не хожу, а "гугление" показало, что такие люки для кошек стоят относительно не дешево. В то же время под рукой были два "копеечных" сантехнических пластиковых лючка для ГКЛ. Все что оставалось, так это обломать фиксаторы крышек, что бы они открывались в обе стороны, ровно выпилить отверстие в двери, да вклеить симметрично эти лючки.

      То, что получилось видно на фото. Разумеется это не для тех, у кого "дизайнерский ремонт", но для обыкновенной квартиры вполне подходит. Недостатков не замечено, животных и людей всё устраивает .


      Реакцию форумчан на этот люк можно узнать в этой теме https://homemasters.ru/...me/?p=330637

        • Ого
      • 6 ответов
    • Газовые котлы: эффективное, экономичное и экологичное решение для отопления вашего дома
      В современном мире, где комфорт и устойчивость стали ключевыми аспектами повседневной жизни, выбор правильного источника отопления дома становится особенно актуальным. Газовые котлы, сочетая в себе преимущества эффективности, экономичности и экологичности, представляют собой одно из наиболее популярных решений для обеспечения комфортной температуры в жилых и коммерческих помещениях.

      • 0 ответов
    • Вторая жизнь дивана: искусство ремонта мягкой мебели своими руками
      В эпоху беспрерывного потребления и стремления к новизне, ремонт старой мягкой мебели своими руками приобретает не просто практическое, но и глубоко философское значение. Это действие как знак уважения к труду мастеров, которые вложили свое мастерство в создание диванов, кресел и пуфов, и как воплощение идеи устойчивого потребления. С каждым возвращенным к жизни предметом мебели, мы не только сохраняем историю и уникальность каждого изделия, но и противостоим бездумному обновлению интерьера за счет экологии и рационального использования ресурсов.

        • Нравится
      • 0 ответов
    • Дома из сруба: идеальное сочетание уюта и прочности.
      Строительство собственного дома является важной вехой в жизни любого человека, поскольку оно знаменует собой важное событие. Выбор строительных материалов имеет огромное значение для создания теплого и функционального жилища. На протяжении всей древней истории древесина была распространенным материалом для строительства домов, что отразилось на различных культурах мира.

      • 0 ответов
    • Аккумуляторные пилы  SCW и  SCM  22-A
      После того как провёл тесты, приступил к самому главному. Поменять диски местами, и проверить, как инструмент на это отреагирует, ведь они внешнее и походу внутренне практически одинаковые, пила по дереву конечно более навороченее, есть настройки угла наклона и можно на шину посадить через адаптер.

      • 4 ответа
    • Кажись всё или строительный пылесос с тройной мультициклонной ступенью очистки
      Кажись всё или строительный пылесос с тройной мультициклонной ступенью очистки

        • Нравится
      • 16 ответов
    • Как построить теплый дом, не тратя лишних денег
      Строительство гостевого дома решил выделить в отдельную тему, так будет меньше путаницы.


        • Спасибо
        • Нравится
      • 248 ответов
×
×
  • Создать...

Важная информация

Мы разместили cookie-файлы на ваше устройство, чтобы помочь сделать этот сайт лучше. Вы можете изменить свои настройки cookie-файлов, или продолжить без изменения настроек.