Перейти к содержанию
Форумы о ремонте и строительстве

Оценить эту тему:


Рекомендуемые сообщения

Надеюсь,все замечают что я часто оговариваюсь про скромное мнение.

да лано, пусть оговорки, но оговорки таланта :)

мне тоже по чесноку нравится что Alef предлагает, об чём уже пару раз сообщал :)

Подписываемся на тему День за днём, моя работа https://homemasters.ru/...esta-raboty/ и на мой инстарам https://www.instagram.c...gda35remont/

Принимаю заказы на мебель из слэбов

 

...Вы ведь уже ощутили радость от дизайнерской мысли Alef. Дайте ему развернуться по настоящему и Вы не пожалеете потраченного на это времени.

Признаться честно, я ощутил восторг :) Увеличилась все помещения (детская, санузлы), гардеробная не исчезла, а наоборот, появилась там, где она более нужна. Форма ванной стала более правильной. И при всем том холл потерял всего 3 м2, став довольно интересным помещением. Так что я уже безусловно доверился Alefу, стройка остановлена, готов оторвать все то, что прикручивал-привинчивал вечерами - уцелеет две небольших стенки. Но дело то явно того стоит.

Лишь бы определиться с концепцией планировки до НГ, чтобы я к новогодним праздникам нарисовал чертежи и честно работал весь холидей :) . Безделье более одного дня меня угнетает.

...Как говорится - ППКС :) Тут, КМК...

А что значит ППКС и КМК? :)

нет,не так буквально. Позже (или даже завтра) покажу и расскажу свой вариант. ...Самым правильным решением было бы сделать раздельными кухню-столовую и гостиную...

Очень жду :) Я уже себе вариантов двадцать нарисовал, крутил по-всякому.

Из всех журналов по дизайну квартир мне нравится лишь "Идеи вашего дома". Обратил внимание, что есть такая тенденция к объединению гостиной и кухни. Поэтому еще так попробовал. Надо еще думать :)

UPD: вот, что удалось придумать. Это наиболее "живые" варианты.

post-70849-1324529448_thumb.jpg post-70849-1324529461_thumb.jpg post-70849-1324529488_thumb.jpg

post-70849-1324529474_thumb.jpg

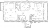
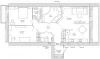
Вот что получилось в итоге. Если сравнить с самой первой планировкой, где все прямо-перпендикулярно... Сейчас уже не осталось ни одного прямого угла - практически Антонио Гауди в лице Alefа :) .post-70849-1324631184_thumb.jpgОдобрите? :)

Да-да, очень жду. Alef, прочитал тут ваше эссе: "Для неизбалованных роскошью советских людей,шкаф-купе есть символ достатка и вообще гений конструкторской мысли.Поэтому иметь купе хотят все.Это как югославская "стенка" . И непременно чтоб с зеркальными вставками в двери...Два-три шкафа-купе(один из них в коридоре) -вообще предел мечтаний...Ну короче,всё весьма предсказуемо и грустно.Зато все охотно вставляют в свой лексикон слово "дизайн"(заказчиков имею в виду)...." :) .Не перегнул я со шкафами? :) В прихожей он оказался, потому что аншлюс прихожей будет не сразу - может помешать заносить крупногабаритные вещи и т.д.Как правильно? Признаю, мышление у меня, наверное, советское. Достаточно посмотреть первую планировку :)И вот в этом месте никак не найду удачное решение с плавными углами:post-70849-1324637294_thumb.jpg

не знаю,меня больше огорчает "вбитая" в квадрат,можно сказать даже "квадратик", собственно гостиная. Ей бы больше внимания уделить.

Может быть так:

post-11625-1324639863_thumb.png

пока схематично,но пропорции соблюдены точно. Между столовой зоной и гостиной складывающаяся перегородка из двух секций .Ширина проёма 2 метра .Стол в собранном виде 90на90 см, для застолий можно расдвигать-раскладывать в сторону гостиной . Мобильная перегородка из алюминиевого профиля (две секции по метру шириной или три по 65 -70...) На входе в кухню слева -закрытые шкафы от пола до потолка с встроенной духовкой-микроволновкой.Рядом в нише -холодильник.На противоположной стороне -мойка,варочная панель,много-много тумб внизу,при этом верх может быть разгружен и отдан под декор на дли-и-инной полке (над варочной -вытяжка конечно) . Пока вот так,но "поиски" можно продолжить и дальше :)

Времени свободного как всегда "кот нарыдал" просто,но я хочу наделать "красивых картинок" для всей этой истории. Вот только когда.... <_<

про шкафы-я не против шкафов,мне не нравится повсеместное "вкрячивание" купе.

не знаю,меня больше огорчает "вбитая" в квадрат,можно сказать даже "квадратик", собственно гостиная. Ей бы больше внимания уделить.

Я вот думал, что наоборот, дал гостиной больше пространства.Планировка пришла в голову не далее, как вчера - думаю, а где в гостиной я буду елку детям ставить?! В России нужна елка - вчера ставил :) Поэтому слева от дивана большое пространство.

...пока схематично,но пропорции соблюдены точно.

Я посмотрел внимательно, у меня иные пропорции второго санузла и гардеробная имеет другой угол - это специально у вас такие изменения? На моем плане было маловато места для дверного проема перед спальней из-за гардеробной?

...На входе в кухню слева -закрытые шкафы от пола до потолка с встроенной духовкой-микроволновкой.Рядом в нише -холодильник.На противоположной стороне -мойка,варочная панель,много-много тумб внизу,при этом верх может быть разгружен и отдан под декор на дли-и-инной полке

Я тут своих опросил - вроде как "проходная" кухня может проигрывать уголку. Не понравится хозяйке, что мимо кто-то шатается :) В принципе, длинный ряд-конвейер на кухне вроде как достаточен для размещения кухонного хозяйства. Однако, в вашем варианте меня прельщает возможность разместить в одну колонну духовку и СВЧ.

Пока вот так,но "поиски" можно продолжить и дальше :) Времени свободного как всегда "кот нарыдал" просто,но я хочу наделать "красивых картинок" для всей этой истории. Вот только когда.... <_<

Очень бы хотел картинок, но знаю, что вас очень мало свободного времени, поэтому не хотелось бы тратить его на картинки "в стол". Лучше "день потерять, потом за час долететь":)Мне кажется, что надо еще покрутить план в этом месте. Я уже начал чертить для всей остальной квартиры, там, я считаю, все решено. Но вот здесь (гостиная+кухня) хотелось бы сыграть на более открытое пространство. Как думаете?Может, закрытость придал диван? И сочетание двух диванов-уголков будет лучше?К нам часто приходят друзья 4-6 человек, поэтому может так будет удобней общаться?post-70849-1324643523_thumb.jpg Или так post-70849-1324644224_thumb.jpg

по мне-так удобнее было бы один полноценный диван и пару кресел(пуфов) или два дивана "2+2" и пару пуфов.Не люблю диваны на которых теоретически можно усадить шесть человек,а практически-только троим комфортно.Поэтому уголки-"недоуголки" -мягко говоря,не очень . И раз уж отдали под гостиную всё пространство ,то варианты "3+1+1" "2+2+1+1" .И определитесь с кухней -столовой-гостиной.Так как стенка для тв стоИт -логичнее было бы всё же изолировать кухню от гостиной,а так "ни туда-ни сюда" получается.А вообще,можно вот так ,просто,но вполне функционально и удобно .Даже близко к вашему первоначальному плану post-11625-1324653753_thumb.png

А вообще,можно вот так ,просто,но вполне функционально и удобно .Даже близко к вашему первоначальному плану

Да, это близко к начальному варианту, но новая установка моего "шеф-повара" говорит: кухня должна быть не проходной :huh: .То есть допустимо частично объединить пространства гостиной и кухни, но с одной входной зоной. Может взять за основу мой план со шкафом справа у входа в квартиру - там закрыт вход в кухню из прихожей...Ох, трудно мне Alef, одна надежда на вас и ваше терпение :)

Alef, ведь вам, наверное, нужно что нибудь знать о нас, чтобы помочь.Дом будет выглядеть так (это соседний, летом он уже был сдан, мой пока пострашнее):post-70849-1324658072_thumb.jpgКвартира до моего вмешательства выглядела так:post-70849-1324658102_thumb.jpgЗавтра я там все похерю и начну реализовывать новый план :)

Квартира до моего вмешательства выглядела так:

Будет очень интересно понаблюдать как она станет меняться и преображаться в процессе ремонта.

да я уж составил представление :) молодцы,что я могу сказать...В добрый час ! Роскошное жильё для молодой семьи.Остается только пожелать здоровья,сил и взаимопонимания :) .второе фото прям "красота-то какая! Лепота-а-а!..." :) С кухней вариантов нет, раз хозяйка сказала "надо"......то и мудрить тут нечего собственноpost-11625-1324659540_thumb.png

Будет очень интересно понаблюдать как она станет меняться и преображаться в процессе ремонта.

Фотоотчет обещаю, тем более, что вопросов с иллюстрациями будет уйма, я уже знаю... :)

...Остается только пожелать здоровья,сил и взаимопонимания :) .

Большое спасибо!

...то и мудрить тут нечего собственно

Красота простых линий. Для меня сомнителен только продолговатый коридор к кухне из холла. Но принимается! :) И ваш самый первый вариант, с необычным диваном (и проходной кухней :) ) тоже. Ваши идеи имеют какой то более законченный вид, чем мои, поэтому сделаю так: смонтирую стены левой части квартиры и смоделирую "макет" обоих ваших вариантов в натуральную величину.Вопросик по гардеробной и габаритах второго санузла в силе. На моей картинке:post-70849-1324660644_thumb.jpgНа вашей немного не так. Почему? И так как я приступаю, можно немножко смоделировать холл с видом на двери спальни, детской и санузлов, чтобы понять, как должно получится?.. :rolleyes:

продолжение ,увы,только дня через три,не раньше.а про различия в расчетах -просто "вариации на тему",не более того.Санузлы хорошо бы просчитать под конкретную технику и даже под отделку(есть возможность рассчитать "красиво" плитку-почему бы этого не сделать? Не под конкретную марку плитки конечно,об этом рано наверное думать,но под какую-то идею и под стандартные размеры плитки,чтобы без некрасивых обрезков потом...Ну и другие нюансы возможны(мебель,двери....)

Спасибо за ваше время. Я пока смутно представляю, как рассчитать стены под плитку, хотя и черчу в автокаде с учетом толщины стен, слоев ГКЛ, но угадать с форматом плитки, ширины швов - это какой то высший пилотаж :)Я думал, что будет что то вроде этого:post-70849-1324664809_thumb.jpg Но не факт, конечно. По мебели я ориентируюсь на ИКЕА, благо все размеры можно найти в каталогах. Дверные проемы делаю стандартные 900х2050 и 900х2080.

Для меня сомнителен только продолговатый коридор к кухне из холла.

Его можно укоротить вдвое

Для публикации сообщений создайте учётную запись или авторизуйтесь

Вы должны быть зарегистрированным пользователем, чтобы оставить комментарий

Создать учетную запись

Зарегистрируйтесь в нашем сообществе.

Зарегистрироваться

Войти

Уже есть аккаунт? Войти в систему.

Войти

Или войти с помощью одного из сервисов



  • Наши рекомендации

    • Подходы к ремонту старых домов в России
      В России сотни тысяч старых домов, многие из которых являются не только свидетельством исторического наследия, но и отражением уникальной культуры и традиций страны. Эти дома, будь то деревянные избы или старинные каменные постройки, сохраняют в себе дух времени и рассказывают историю поколений.

      • 0 ответов
    • Люк для кошек своими руками
      Разумеется давно придуманы и продаются специальные лючки для кошек, которые можно врезать в дверь, но мы ведь не ищем легких путей . Да и по зоомагазинам я не хожу, а "гугление" показало, что такие люки для кошек стоят относительно не дешево. В то же время под рукой были два "копеечных" сантехнических пластиковых лючка для ГКЛ. Все что оставалось, так это обломать фиксаторы крышек, что бы они открывались в обе стороны, ровно выпилить отверстие в двери, да вклеить симметрично эти лючки.

      То, что получилось видно на фото. Разумеется это не для тех, у кого "дизайнерский ремонт", но для обыкновенной квартиры вполне подходит. Недостатков не замечено, животных и людей всё устраивает .


      Реакцию форумчан на этот люк можно узнать в этой теме https://homemasters.ru/...me/?p=330637

        • Ого
      • 6 ответов
    • Газовые котлы: эффективное, экономичное и экологичное решение для отопления вашего дома
      В современном мире, где комфорт и устойчивость стали ключевыми аспектами повседневной жизни, выбор правильного источника отопления дома становится особенно актуальным. Газовые котлы, сочетая в себе преимущества эффективности, экономичности и экологичности, представляют собой одно из наиболее популярных решений для обеспечения комфортной температуры в жилых и коммерческих помещениях.

      • 0 ответов
    • Вторая жизнь дивана: искусство ремонта мягкой мебели своими руками
      В эпоху беспрерывного потребления и стремления к новизне, ремонт старой мягкой мебели своими руками приобретает не просто практическое, но и глубоко философское значение. Это действие как знак уважения к труду мастеров, которые вложили свое мастерство в создание диванов, кресел и пуфов, и как воплощение идеи устойчивого потребления. С каждым возвращенным к жизни предметом мебели, мы не только сохраняем историю и уникальность каждого изделия, но и противостоим бездумному обновлению интерьера за счет экологии и рационального использования ресурсов.

        • Нравится
      • 0 ответов
    • Дома из сруба: идеальное сочетание уюта и прочности.
      Строительство собственного дома является важной вехой в жизни любого человека, поскольку оно знаменует собой важное событие. Выбор строительных материалов имеет огромное значение для создания теплого и функционального жилища. На протяжении всей древней истории древесина была распространенным материалом для строительства домов, что отразилось на различных культурах мира.

      • 0 ответов
    • Аккумуляторные пилы  SCW и  SCM  22-A
      После того как провёл тесты, приступил к самому главному. Поменять диски местами, и проверить, как инструмент на это отреагирует, ведь они внешнее и походу внутренне практически одинаковые, пила по дереву конечно более навороченее, есть настройки угла наклона и можно на шину посадить через адаптер.

      • 4 ответа
    • Кажись всё или строительный пылесос с тройной мультициклонной ступенью очистки
      Кажись всё или строительный пылесос с тройной мультициклонной ступенью очистки

        • Нравится
      • 16 ответов
    • Как построить теплый дом, не тратя лишних денег
      Строительство гостевого дома решил выделить в отдельную тему, так будет меньше путаницы.


        • Спасибо
        • Нравится
      • 248 ответов
×
×
  • Создать...

Важная информация

Мы разместили cookie-файлы на ваше устройство, чтобы помочь сделать этот сайт лучше. Вы можете изменить свои настройки cookie-файлов, или продолжить без изменения настроек.