Перейти к содержанию
Форумы о ремонте и строительстве

Ремонт однушки в новой квартире

Оценить эту тему:


limon

Рекомендуемые сообщения

Опубликовано

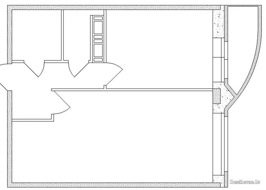
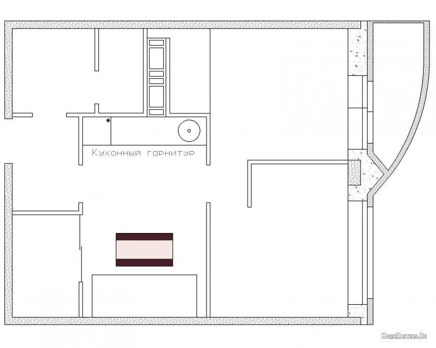
Итак, доделал свой ремонт.Новая квартира в новом доме. Отделка изначально была от застройщика. Около года жили как есть. И вот в один из вечером возник вопрос, а не поставить ли нам перегородочку, дабы отделить кровать, от всей остальной квартиры и сделать что то типа спальни. А в другой части комнаты сделать что то типа гостинной с домашним кинотеатром.Вооружившись карандашем и интернетом прикинули стоимость. Оказалось что укладываемся в 10 т.р. (ха-ха, какой я был наивный)Ну вобщем решили делать. Посчитали поточнее материалы и сделали заказ. Вышло на 18 т.р. а в итоге наверное на все 30 потянуло.Но раз уж начали, то деваться некуда.итоги ремента в галерее ремонт однушкиНиша под телевизором сделана для сабуфера. Планируем ее позже закрыть декоративным экраном по типу таких как для батарей делают.

 

 Окончательный вид гостинной.jpg

 Спальня закончена 12.jpg

А вот и домик для кота.JPG

В процессе работы.jpg

Вот так пришлось подрезать плинтус.JPG

Встроенный шкаф.JPG

Второй этап перепланировки.jpg

Гостинная закончена. Остались обои и мелочевка 09.jpg

Гостинная закончена. Остались обои и мелочевка.jpg

Домашний кинотеатр в работе.JPG

Живем и ремонтируем.jpg

Начальная планировка квартиры.jpg

Начальное состояние 05.jpg

Начальное состояние.jpg

Окончательный вид гостинной 16.jpg

Окончательный вид гостинной 17.jpg

Окончательный вид спальни.jpg

Подлокотники у дивана.JPG

Поклейка обоев в спальне.jpg

Потолок в спальне.jpg

Спальня закончена.jpg

Третий этап перепланировки.jpg

(изменено)

Помещения небольшие, поэтому охватить бОльшую площадь можно только широкоугольником, который дает как раз такие искажения.

Изменено пользователем limon

Да понял я, понял :) А тут ты хорошо сказал :)

Помещения небольшие, поэтому охватить большую площадь...

мне понравилось! много света очень хорошо! объектив 16мм ?

8мм. Если я мне память не изменяет

А места теперь не маловато?Я в нишу кровать засунул. У племянницы, конфигурация, типа такой жеОбошлись без глобальных перестроек, только мебелью из Икея.

Кровать в нишу конечно влезла бы, но получился бы подход только с одной стороны, решили так не делать. Неудобно показалось, да и кровать ближе к окну хотелось, свежий воздух и все такое. Ну и шкаф купе в аппендиксе знатный получился. А телевизор как раз в более темном месте разместили. Что бы солнце не попадало.Места в целом достаточно. Вобщем то там много и не надо. В спальню ходим только спать. Хотя там есть еще место свободное. Можно поставить комод, стол или дет. кровать на выбор. В гостинной места еще больше. Когда мы в двоем нам дивана за глаза хватает. Если гости то пара складных стульев имеется, ну или на кухню уходим. там места уще больше.

Не увидел кошачего домика. Непорядок B) У самих теперь вон какая красота, а как же животине обновку? :D

Ну вопервых для него вся квартира как домик ;) А во вторых в шкафу купе, на самой верхней полке лежит матрас. Между матрасом и потолком как раз сантиметров 20 свободного места. Там он и дрыхнет. Открывает дверь забирается и прячется. А мы его ищем постоянно ;)) А раньше еще так бывало x_6ce0cb0e.jpg

Компьютерная мышь и компьютерный кот. :up:

limon,теперь бы еще фоток с обычным объективом (хоть частями),чтобы можно было рассмотреть и до чего-нибудь докопаться. :rolleyes:

(изменено)

Ну докопаться наверняка можно, все же первый ремонт. Вечером доберусь сделаю. Что то конкретное интересует?Кстати, кровать тоже моей работы.

Изменено пользователем limon
(изменено)

снимали кропом, а значит не 8мм, а все 12,8 )))

Объектив для кропнутых камер сделан. Так что вроде как 8 ;) Хотя я могу и ошибаться. Изменено пользователем limon

Кстати, кровать тоже моей работы.

Вот и про неё расскажи-покажи.

Про кровать рассказывать особо нечего. Сделал за 3 дня из мебельных щитов и досок. Щиты напилил в размер сразу в магазине. Дома шлифанул и покрыл лаком. С каждой стороны сделано 2 выкатных ящика. Но пока она у стены стоит, соответсвенно доступны только 2 из 4-х. Собирал на металлических уголках и саморезах. В эксплуатации чуть меньше года. Пока не скрипит ))

тут все видно.

Изображение

Если интересует что то конкретное, спрашивайте.

Делать решил сам, потому что в магазинах за коробку из ДСП просят слишком много денег. У меня на все материалы ушло 6 т.р

Добавил еще фоток, с "нормального объектива" ))

опять же если интересует что то конкретное, спрашивайте. отвечу или сфотографирую.

Домашний кинотеатр в работе. Сзади к телевизору приделан самодельный эмбилайт. Работает от компа по usb.

Изображение

Подлокотники по бокам у дивана. Сверху пока что наклеили обои. В дальнейшем хочу сделать из мебельного щита. Или может из фанеры и обтянунуть поролоном и тканью. Может у кого нибудь если еще идеи что можно сверху положить? Был еще вариант стекло матовое положить, но жена не хочет.

Изображение

Вот так пришлось подрезать плинтуса. Интересно бывают уголки для плинтусов на 45 градусов?

Изображение

Встроенный шкаф со встроенным домиком для кота ;)

Изображение

Изображение

Как фотки уменьшить? почему они такими большими стали? делал все как и в первом посте.

Может у кого нибудь если еще идеи что можно сверху положить?

Речь именно про диванный подлокотник или про полочку под буком? Ибо я на подлокотниках обоев не разглядел. Если же правда про подлокотники, то можно закрыть П-образной полочкой-подставкой под чашки-кружки-бокалы-стаканы. Её, обычно, делают из ЛДСП. Фоток я с наскоку не нашёл, но думаю и так понятно о чём я.

Как фотки уменьшить?

Сторонней прогой. Например FastStone.

Речь именно о плочке под ноутбуком. Мы просто его между собой подлокотником называем.

Для публикации сообщений создайте учётную запись или авторизуйтесь

Вы должны быть зарегистрированным пользователем, чтобы оставить комментарий

Создать учетную запись

Зарегистрируйтесь в нашем сообществе.

Зарегистрироваться

Войти

Уже есть аккаунт? Войти в систему.

Войти

Или войти с помощью одного из сервисов



  • Наши рекомендации

    • Подходы к ремонту старых домов в России
      В России сотни тысяч старых домов, многие из которых являются не только свидетельством исторического наследия, но и отражением уникальной культуры и традиций страны. Эти дома, будь то деревянные избы или старинные каменные постройки, сохраняют в себе дух времени и рассказывают историю поколений.

      • 0 ответов
    • Люк для кошек своими руками
      Разумеется давно придуманы и продаются специальные лючки для кошек, которые можно врезать в дверь, но мы ведь не ищем легких путей . Да и по зоомагазинам я не хожу, а "гугление" показало, что такие люки для кошек стоят относительно не дешево. В то же время под рукой были два "копеечных" сантехнических пластиковых лючка для ГКЛ. Все что оставалось, так это обломать фиксаторы крышек, что бы они открывались в обе стороны, ровно выпилить отверстие в двери, да вклеить симметрично эти лючки.

      То, что получилось видно на фото. Разумеется это не для тех, у кого "дизайнерский ремонт", но для обыкновенной квартиры вполне подходит. Недостатков не замечено, животных и людей всё устраивает .


      Реакцию форумчан на этот люк можно узнать в этой теме https://homemasters.ru/...me/?p=330637

        • Ого
      • 6 ответов
    • Газовые котлы: эффективное, экономичное и экологичное решение для отопления вашего дома
      В современном мире, где комфорт и устойчивость стали ключевыми аспектами повседневной жизни, выбор правильного источника отопления дома становится особенно актуальным. Газовые котлы, сочетая в себе преимущества эффективности, экономичности и экологичности, представляют собой одно из наиболее популярных решений для обеспечения комфортной температуры в жилых и коммерческих помещениях.

      • 0 ответов
    • Вторая жизнь дивана: искусство ремонта мягкой мебели своими руками
      В эпоху беспрерывного потребления и стремления к новизне, ремонт старой мягкой мебели своими руками приобретает не просто практическое, но и глубоко философское значение. Это действие как знак уважения к труду мастеров, которые вложили свое мастерство в создание диванов, кресел и пуфов, и как воплощение идеи устойчивого потребления. С каждым возвращенным к жизни предметом мебели, мы не только сохраняем историю и уникальность каждого изделия, но и противостоим бездумному обновлению интерьера за счет экологии и рационального использования ресурсов.

        • Нравится
      • 0 ответов
    • Аккумуляторные пилы  SCW и  SCM  22-A
      После того как провёл тесты, приступил к самому главному. Поменять диски местами, и проверить, как инструмент на это отреагирует, ведь они внешнее и походу внутренне практически одинаковые, пила по дереву конечно более навороченее, есть настройки угла наклона и можно на шину посадить через адаптер.

      • 4 ответа
    • Дома из сруба: идеальное сочетание уюта и прочности.
      Строительство собственного дома является важной вехой в жизни любого человека, поскольку оно знаменует собой важное событие. Выбор строительных материалов имеет огромное значение для создания теплого и функционального жилища. На протяжении всей древней истории древесина была распространенным материалом для строительства домов, что отразилось на различных культурах мира.

      • 0 ответов
    • Кажись всё или строительный пылесос с тройной мультициклонной ступенью очистки
      Кажись всё или строительный пылесос с тройной мультициклонной ступенью очистки

        • Нравится
      • 16 ответов
    • Как построить теплый дом, не тратя лишних денег
      Строительство гостевого дома решил выделить в отдельную тему, так будет меньше путаницы.


        • Спасибо
        • Нравится
      • 239 ответов
×
×
  • Создать...

Важная информация

Мы разместили cookie-файлы на ваше устройство, чтобы помочь сделать этот сайт лучше. Вы можете изменить свои настройки cookie-файлов, или продолжить без изменения настроек.