Перейти к содержанию
Форумы о ремонте и строительстве

Планировка квартиры (54 м2) - нужны советы и мнение

Оценить эту тему:


Aretta

Рекомендуемые сообщения

Опубликовано

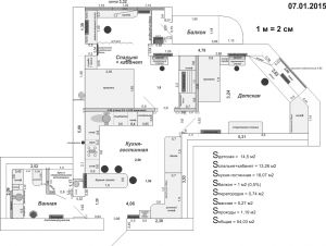
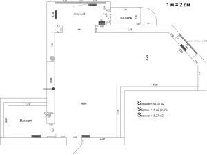
Добрый вечер!

Прошу помощи опытных специалистов и всех форумчан: помогите спланировать квартиру (54 м2). А также оцените придуманную планировку.

Чего бы хотелось: комнату для дочери, спальню (или спаленку :)  )для нас, рабочее место с ноутбуком, много мест для всяких домашних вещей и, наверное, кухню-гостиную как вариант; любим больше душ, чем ванну.

Что имеем: квартира 54,03 м2 (в плане - однокомнатная), стенки были гипсокартонные (уже разобрали), стены несущие вокруг квартиры и вокруг ванны, во всю стену эркер из металло-пластиковых окон.

Хочу показать вариант, что придумала. Хотелось бы услышать мнение. В квартире автономное отопление с котлом (вот из-за него пришлось крутить-вертеть).

Изначально был вариант кухни в эркере + чуть дальше вглубь квартиры, а спальня  сразу за входом в ванну – но отказались из-за отсутствия окна и хорошего проветривания спальни.

Потом придумала вот такой вариант (да - кухня-гостиная получается тоже без окна, но, надеюсь, при хорошей вытяжке не будет проблем). И опять же котел… Не очень хорошо, что получается в спальне – потому поставила раздвижные двери как бы отгородив. В остальном был упор на функциональность всего.

Очень жду ваши ответы!

2015_01_07.pdf

Вот две картинки

post-98017-0-23179300-1420656799_thumb.jpg

post-98017-0-38053600-1420656807_thumb.jpg

Долго разглядывал план. К расстановке мебели в комнатах я не смог прдраться) Больше всего меня смущает проход между диваном и холодильником. И не мало ли 70 сантиметров для ширины дивана, мне кажется они глубже обычно. Или же тут не совсем стандартный диван?

Добрый день! Диван действительно узкий нестандартный (видела на просторах, картинку не сохранила увы) - хотелось бы его трансформировать при надобности в спальное гостевое место (редко). Он должен быть без подлокотников. Или такой вариант - диван взять большей длины (за счет уменьшения шкафа, но не хотелось бы)

  • 4 недели спустя...

Какая замечательная детская! И спальня с рабочим местом тоже удобно. Меня очень сильно смутила барная стойка напротив двери и миниатюрность дивана. Конечно, всем по-разному, у меня и вовсе 3,5 х 4,5м угловой стоит... Но и семейка в разы больше)))

Мне кажется логичнее шкаф напротив входной двери (да и кушать возле туалета как-то....) А справа от входа можнотустроить угловую гардеробную для всего-всего. Вот с кухней я бы еще подумала. Или стойку (понятно, что стол тут не войдет, она реально удобнее вписывается) иначе разместить. Может даже параллельно дивану, если примкнуть к шкафу. Ну, просто по женски так - нехорошо, когда открыл дверь - а там сразу стол. А у стола ...

Повторюсь - детская шикарно продумана, именно для ребенка!

Спасибо за ваше мнение! "Примерю" к своей квартире. :)

По поводу барной стойки - она должна быть как бы выше самой кухни (условно 120 см) - отделяя кухню от прихожей. По-другому не смогла обеденное место приткнуть :)  Может вы от руки хотя бы набросаете свой вариант?

Диванчик небольшой - он должен быть без перил, чтобы для гостей поставить перед ним раскладной стол и стулья. А при необходимости разложить как спальное место.

Угловую гардеробную тоже рисовала справа. Но потом показалось, что только заберет пространство (а его и так мало), а функциональстости будет не так много. Потому остановилась на угловом шкафе-купе.

Тоже пытался разместить гардеробную справа, и шкаф вместо барной стойки, но что-то все время не вмещается, вот досада)

Вот что пришло только что в голову. Сделал набросок, кнечно нужно с размерами смотреть, уместиться ли. Вдруг пригодится. Думаю, что понятно все.

post-97131-0-78544400-1423475772_thumb.jpg

спасибо!!! сейчас к размерам попробую применить. ТОгда и пойму, что с проходами и пространством в целом

  • 4 недели спустя...
Гриша

Лучше связатся с дизайнером в вашем городе,он сделает раз и навсегда..и будете довольны.

Для публикации сообщений создайте учётную запись или авторизуйтесь

Вы должны быть зарегистрированным пользователем, чтобы оставить комментарий

Создать учетную запись

Зарегистрируйтесь в нашем сообществе.

Зарегистрироваться

Войти

Уже есть аккаунт? Войти в систему.

Войти

Или войти с помощью одного из сервисов



  • Наши рекомендации

    • Люк для кошек своими руками
      Разумеется давно придуманы и продаются специальные лючки для кошек, которые можно врезать в дверь, но мы ведь не ищем легких путей . Да и по зоомагазинам я не хожу, а "гугление" показало, что такие люки для кошек стоят относительно не дешево. В то же время под рукой были два "копеечных" сантехнических пластиковых лючка для ГКЛ. Все что оставалось, так это обломать фиксаторы крышек, что бы они открывались в обе стороны, ровно выпилить отверстие в двери, да вклеить симметрично эти лючки.

      То, что получилось видно на фото. Разумеется это не для тех, у кого "дизайнерский ремонт", но для обыкновенной квартиры вполне подходит. Недостатков не замечено, животных и людей всё устраивает .


      Реакцию форумчан на этот люк можно узнать в этой теме https://homemasters.ru/...me/?p=330637

        • Ого
      • 6 ответов
    • Аккумуляторные пилы  SCW и  SCM  22-A
      После того как провёл тесты, приступил к самому главному. Поменять диски местами, и проверить, как инструмент на это отреагирует, ведь они внешнее и походу внутренне практически одинаковые, пила по дереву конечно более навороченее, есть настройки угла наклона и можно на шину посадить через адаптер.

      • 4 ответа
    • Вторая жизнь дивана: искусство ремонта мягкой мебели своими руками
      В эпоху беспрерывного потребления и стремления к новизне, ремонт старой мягкой мебели своими руками приобретает не просто практическое, но и глубоко философское значение. Это действие как знак уважения к труду мастеров, которые вложили свое мастерство в создание диванов, кресел и пуфов, и как воплощение идеи устойчивого потребления. С каждым возвращенным к жизни предметом мебели, мы не только сохраняем историю и уникальность каждого изделия, но и противостоим бездумному обновлению интерьера за счет экологии и рационального использования ресурсов.

        • Нравится
      • 0 ответов
    • Кажись всё или строительный пылесос с тройной мультициклонной ступенью очистки
      Кажись всё или строительный пылесос с тройной мультициклонной ступенью очистки

        • Нравится
      • 16 ответов
    • Газовые котлы: эффективное, экономичное и экологичное решение для отопления вашего дома
      В современном мире, где комфорт и устойчивость стали ключевыми аспектами повседневной жизни, выбор правильного источника отопления дома становится особенно актуальным. Газовые котлы, сочетая в себе преимущества эффективности, экономичности и экологичности, представляют собой одно из наиболее популярных решений для обеспечения комфортной температуры в жилых и коммерческих помещениях.

      • 0 ответов
    • Подходы к ремонту старых домов в России
      В России сотни тысяч старых домов, многие из которых являются не только свидетельством исторического наследия, но и отражением уникальной культуры и традиций страны. Эти дома, будь то деревянные избы или старинные каменные постройки, сохраняют в себе дух времени и рассказывают историю поколений.

      • 0 ответов
    • Как построить теплый дом, не тратя лишних денег
      Строительство гостевого дома решил выделить в отдельную тему, так будет меньше путаницы.


        • Спасибо
        • Нравится
      • 259 ответов
    • Дома из сруба: идеальное сочетание уюта и прочности.
      Строительство собственного дома является важной вехой в жизни любого человека, поскольку оно знаменует собой важное событие. Выбор строительных материалов имеет огромное значение для создания теплого и функционального жилища. На протяжении всей древней истории древесина была распространенным материалом для строительства домов, что отразилось на различных культурах мира.

      • 0 ответов
×
×
  • Создать...

Важная информация

Мы разместили cookie-файлы на ваше устройство, чтобы помочь сделать этот сайт лучше. Вы можете изменить свои настройки cookie-файлов, или продолжить без изменения настроек.