Перейти к содержанию
Форумы о ремонте и строительстве

Нужна помощь в расстановке

Оценить эту тему:


Рекомендуемые сообщения

Опубликовано

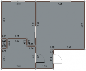
всем привет.нет интересных вариантов.ни чего в голову не идёт.стены переносить нельзя.и вот вопрос: как будет на кухне при такой расстановке мебели? а то все фото в инете по стандарту : кухонный вдоль стены которая идет к окну.

с сан узлом тож головоломка.уж подумал а не сделать ли в нише где счас унитаз -минибаню???? любым коментам буду рад. или хотя бы ссылки на фото с подобным расположением стен.мне надо начинать делать разводку эл-ва и сантехники,а что и где не знаю. про зал тож ни чего не понятно.

post-98042-0-07984200-1420789813.png

post-98042-0-48364300-1420789824_thumb.png

post-98042-0-71482100-1420789839.png

post-98042-0-08927100-1420789852_thumb.png

как будет на кухне

хозяйка не обрадуется.На двух метрах длины плита , мойка и...всё,практически нет рабочего места. Плюс к этому кухонные шкафы будут перекрывать наполовину проход в кухню.Они слишком близко к двери получаются. Ниша ограничивает своими габаритами выбор холодильника.

(изменено)

ну тогда приимущества в нише для холодильника нет.у нас щас кухня  такая же тольк без ниши. там вход на кухню,а стена закрыта. кухонный вдоль стены к окну у окна холодильник(всё по стандарту.на новой кухне хотели  по другому чтоб было. 80 см получается проход-думал достаточно. можно сделать углом кухню рис1


или как то так рис 2

post-98042-0-78072400-1420794694_thumb.jpg

post-98042-0-54025500-1420794941_thumb.jpg

Изменено пользователем спорт

нерациональное использование пространства получается. При хорошей площади Вы хотите "ужать" кухню до скромных размеров,поставить туда же диван ,и...?  Половина помещения просто гуляет. Хозяин барин конечно,но по-моему,Вы сами себя так перехитрите. Кроме того на эскизе у Вас плита рядом с мойкой ,ещё и мойка угловая - это худший вариант,который можно представить. 

диван кухонный.у друзей смотрится отлично(правда кухня метров14).что нибудь предложте пожалуйста.хочется и уютно и оригинально....мы с хозяйкой всю голову сломали...например ей нравится вот такой вариант кухонного. с плитой согласен.должна всередине должна быть.

post-98042-0-20112600-1420797230_thumb.png

нерациональное использование пространства получается

На мой взгляд в ванной это тоже присутствует. При входе получился коридорчик. Лучше бы эти 70 сантметров добавить к "прихожей" и сделать там место хранения.

На счет мини сауны - она туда влезет? Глубина меньше 90 сантиметров, есть такие модели?

На счет холодильника - его расположение лично мне кажется не удобным, когда он не стоит в ряд с кухонным фасадом. 

На счет прохода на кухню. Не оглядываясь на то, что будет в комнате - я бы сместил его ближе к центру кухни. Или же сделал его наискосок, под 45 градусов. За набросок сильно не бейте)

post-97131-0-49471200-1421072200_thumb.jpg

стена между кухнейи комнатой несущая.а как вариант интересный.. а вот набросок в ванну.конечно такого размера не продают.думал сделать сам либо под заказ

post-98042-0-22191000-1421075356_thumb.jpeg

@спорт, без обид,но Вы очень многого хотите от скромной квартирки. Санузел ,он такой,как на плане? Или это Вы решили его увеличить за счёт кухни,оставив в ней нишу для холодильника? Если так,то надо выбрать что-то одно,или в ванной "всё и сразу" (и ванна,и туалет,и "банька",на последнем эскизе,кстати,фантастика.В реале будет тесно и очень неудобно.) ,но тогда в кухне отказаться от диванчика,или наоборот -санузел покомпактнее,стену вернуть на место и не отнимать у кухни эту площадь. Я позже покажу свой вариант.

диваны на кухне бред
 ну,в данном случае это может быть оправдано - однокомнатная квартира, элементарно хочется,к примеру,иметь возможность мужику посмотреть трансляцию матча,пока половинка смотрит какое-нибудь "давай повесимся"... Другое дело что в ущерб самой кухне делать этого не стОит конечно. 
трансляцию матча,пока половинка смотрит какое-нибудь
надо чем то жертвовать. или футболом или женой)))))))))) в конце концов удобно расположиться на кухне с ящичком пива можно и без дивана. Ну какое нибудь кресло-мешок, которое можно притащить из комнаты на момент просмотра матча.

Не забываем установить аватар, заполнить профиль, и создать свой блог

https://homemasters.ru/

ни где ни чего не урезАл.ни прибавлял.масштаб везде соблюдал.согласен что тесновато будет в саузле но всёже..тогда пропадает столько места в санузле.может хоть комнату давайте распланируем..

иии..спасибо что не забываете мою темку

post-98042-0-42778100-1421090099_thumb.png

стена между кухнейи комнатой несущая

На вашем плане проем между комнатой и кухней - несуществующий будущий проем в несущей сене?

может хоть комнату давайте распланируем..

А что по функционалу вам там нужно?

а вот набросок в ванну

Та стена, по которой стоит унитаз, раковина и ванная. Ширина 1,6 метра вроде. Считаем: на ванну хотябы 0,7 метра + раковина 0,6 метра. На Унитаз осталось 30 сантиметров? Получается, что вы пытаетесь запихнуть стандартный набор раздельного санузла в помещение стандартной не совмещенной ванной комнаты... Будет или очень неудобно или просто не влезет.

Если пожертвовать площадью ванной (прошу прощения, никак не могу согласиться с вышевыложенной планировкой))))), можно обустроить кухню рациональней.

Как-то так.

Там, где рабочая зона сужается к окну можно не размещать навесные шкафы, а повесить телевизор. 

Диван можно подыскать компактный. Не знаю, подойдет ли вам такой вариант, но я хочу себе на будущую кухню модель как на фото, только цвет иной. Это барная мебель. Ширина чуть меньше 1,2 метра, глубина 0,7 метра. 

post-97131-0-15081000-1421137972_thumb.png

post-97131-0-59666300-1421137972_thumb.jpg

спассибо за советы!!! и так начну попорядку. проём в виде прямоугольной арки с закруглёнными углами в несущеё стене-ширина 1.2 вроде(думаю немного заложить сантимов 40 и углы сделать ровными,но пока думаю.может и широким оставлю)

в комнате: диван,столик кофейный вижу.,телек как то оформить.,ноут либо в кухне или в комнате(но место ему где то должно быть).пока так думаю.

с.узел..-та стена 175 см. такой план для увеличения кухни продумывал...сейчас так сделать нет возможности БТИ(технически) оставдяю как есть одгозначно.могу только предварительно разместить сан технику под задуманный план.и электричество.

диван не плох..взял на вооружение.

на кухне у окна хочется чтоб было примерно так фот1.и2


комнату вообще ни как ещё не вижу.вот интересно фот 3..но тут вход на балкон за диваном. или на фото 4тож ни чего..но нужно ещё и вещи кудато положить или повешать..

post-98042-0-92910500-1421150783_thumb.jpg

post-98042-0-57427000-1421150784_thumb.jpg

post-98042-0-26105900-1421151054_thumb.jpg

post-98042-0-85982000-1421151124_thumb.jpg

на кухне у окна хочется чтоб было примерно так фот1.и2

Если хотите разместить диван со столом в левом верхнем углу кухни, тогда ставьте холодильник в нишу (если он действительно туда уместится с учетом раздвижной двери), по этой же стене поставьте плиту и мойку на максимальном расстоянии друг от друга. Остальную рабочую поверхность можно разместить по стене, смежной с комнатой. Может ширину шкафов выбрать 40 см и полки повесить. Вполне нестандартное размещение. Только всю технику нужно встроить именно в ту часть, что будет стоять по стене с холодильником.

кровати скорее всего не будет...почемуто думаю так

Тогда не вижу проблем с размещением)

вот я тут набрасывал насколько умею......

Только вам про такой вариант уже правильно сказали, рабочей зоны очень мало. Поэтому я предлагяю добавить её по стене справа от прохода. Более узкую сделать, чтобы не заграмождать пространство.

В зале, как пример, можно как-то так поставить, хотя вариантов больше чем один, конечно.

post-97131-0-30405200-1421152513_thumb.png

Для публикации сообщений создайте учётную запись или авторизуйтесь

Вы должны быть зарегистрированным пользователем, чтобы оставить комментарий

Создать учетную запись

Зарегистрируйтесь в нашем сообществе.

Зарегистрироваться

Войти

Уже есть аккаунт? Войти в систему.

Войти

Или войти с помощью одного из сервисов



  • Наши рекомендации

    • Как построить теплый дом, не тратя лишних денег
      Строительство гостевого дома решил выделить в отдельную тему, так будет меньше путаницы.


        • Спасибо
        • Нравится
      • 255 ответов
    • Газовые котлы: эффективное, экономичное и экологичное решение для отопления вашего дома
      В современном мире, где комфорт и устойчивость стали ключевыми аспектами повседневной жизни, выбор правильного источника отопления дома становится особенно актуальным. Газовые котлы, сочетая в себе преимущества эффективности, экономичности и экологичности, представляют собой одно из наиболее популярных решений для обеспечения комфортной температуры в жилых и коммерческих помещениях.

      • 0 ответов
    • Аккумуляторные пилы  SCW и  SCM  22-A
      После того как провёл тесты, приступил к самому главному. Поменять диски местами, и проверить, как инструмент на это отреагирует, ведь они внешнее и походу внутренне практически одинаковые, пила по дереву конечно более навороченее, есть настройки угла наклона и можно на шину посадить через адаптер.

      • 4 ответа
    • Подходы к ремонту старых домов в России
      В России сотни тысяч старых домов, многие из которых являются не только свидетельством исторического наследия, но и отражением уникальной культуры и традиций страны. Эти дома, будь то деревянные избы или старинные каменные постройки, сохраняют в себе дух времени и рассказывают историю поколений.

      • 0 ответов
    • Кажись всё или строительный пылесос с тройной мультициклонной ступенью очистки
      Кажись всё или строительный пылесос с тройной мультициклонной ступенью очистки

        • Нравится
      • 16 ответов
    • Вторая жизнь дивана: искусство ремонта мягкой мебели своими руками
      В эпоху беспрерывного потребления и стремления к новизне, ремонт старой мягкой мебели своими руками приобретает не просто практическое, но и глубоко философское значение. Это действие как знак уважения к труду мастеров, которые вложили свое мастерство в создание диванов, кресел и пуфов, и как воплощение идеи устойчивого потребления. С каждым возвращенным к жизни предметом мебели, мы не только сохраняем историю и уникальность каждого изделия, но и противостоим бездумному обновлению интерьера за счет экологии и рационального использования ресурсов.

        • Нравится
      • 0 ответов
    • Люк для кошек своими руками
      Разумеется давно придуманы и продаются специальные лючки для кошек, которые можно врезать в дверь, но мы ведь не ищем легких путей . Да и по зоомагазинам я не хожу, а "гугление" показало, что такие люки для кошек стоят относительно не дешево. В то же время под рукой были два "копеечных" сантехнических пластиковых лючка для ГКЛ. Все что оставалось, так это обломать фиксаторы крышек, что бы они открывались в обе стороны, ровно выпилить отверстие в двери, да вклеить симметрично эти лючки.

      То, что получилось видно на фото. Разумеется это не для тех, у кого "дизайнерский ремонт", но для обыкновенной квартиры вполне подходит. Недостатков не замечено, животных и людей всё устраивает .


      Реакцию форумчан на этот люк можно узнать в этой теме https://homemasters.ru/...me/?p=330637

        • Ого
      • 6 ответов
    • Дома из сруба: идеальное сочетание уюта и прочности.
      Строительство собственного дома является важной вехой в жизни любого человека, поскольку оно знаменует собой важное событие. Выбор строительных материалов имеет огромное значение для создания теплого и функционального жилища. На протяжении всей древней истории древесина была распространенным материалом для строительства домов, что отразилось на различных культурах мира.

      • 0 ответов
×
×
  • Создать...

Важная информация

Мы разместили cookie-файлы на ваше устройство, чтобы помочь сделать этот сайт лучше. Вы можете изменить свои настройки cookie-файлов, или продолжить без изменения настроек.