Перейти к содержанию
Форумы о ремонте и строительстве

Нужна помощь в расстановке

Оценить эту тему:


Рекомендуемые сообщения

мне вот как спланировали....кухня -нормально-только с нишей..в комнате кровать не надо.ну и сан уз.тож переделали

post-98042-0-30715900-1421152434_thumb.jpg

мне вот как спланировали....кухня -нормально-только с нишей..в комнате кровать не надо.ну и сан уз.тож переделали

По-моему очень даже здорово. Я так понял, проблема в том, что это уже частично не реализуемо?

да.согласен.интересно.но без кровати.сегодня сниму точные размеры сан узла.ну и соответственно нишу в кухне.

ещё надо будет определиться с освещением...замерил проём между кух и комнатой=1.5м. не широко ли?

замерил проём между кух и комнатой=1.5м. не широко ли?

А вы сами подумайте, нужна ли вам возможность этот проем закрывать (дверь раздвижная, например) и насколько в вашем случае реально такую (1,5 метра) дверь (или двери) разместить. Оставлять проем открытым? По мне, так если он выходит в комнату, то по утрам, тот, кто встанет раньше, разбудит того, что ещё спит. Кухня - все-таки шумное место. Вы бы разместили план того, что сейчас есть, отметили на нем то, что можно снести и что нельзя, а то все время какие-то новые вводные.

кухня .  Нормально размещается всё,нет причин урезать функциональность до минимума (а то смотрю там на планах уже до двухкомфорочной варочной дошли...)

post-11625-0-21370400-1421310980_thumb.jpg

post-11625-0-26479300-1421310982_thumb.jpg

post-11625-0-39547400-1421310984_thumb.jpg

кухня .  Нормально размещается всё,нет причин урезать функциональность до минимума (а то смотрю там на планах уже до двухкомфорочной варочной дошли...)

А в чем это нарисовано?

Над холодильником пространство тоже можно задействовать.

Проблема топикстартера в том, что он не хочет стандартной расстановки, насколько я понял

А в чем это нарисовано?

3ds max

не хочет стандартной расстановки

желание сделать что-то оригинальное не должно расходиться со здравым смыслом,иначе получится полная ерунда.

3ds max

желание сделать что-то оригинальное не должно расходиться со здравым смыслом,иначе получится полная ерунда.

Здорово смотрится! Неужели это так быстро создается? 

На счет здравого смысла согласен

спасибо за вариант.в 3dmax нужно быть опытным пользователем чтоб так быстро накидать. у меня быстрей на листке в клетку получается быстрей чем в программе :lol: .

у меня ситуация такая:квартира идёт с полной отделкой и до сдачи я не могу изменить скажем санузел или кухню.а после сдачи уже по чистому придётся начинать заново.вот и надо хотя бы сейчас подготовить трубы под сантехнику и эл.разводку.а план он вот такой будет позле завершения :noddle:

post-98042-0-46781300-1421328687.png

post-98042-0-61736600-1421328893_thumb.png

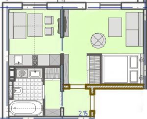
добрый день. -розетка по левой стене 1м от входа.и подводка труб до края мойки.и вот не знаю -может подвести провода за мойку??????пока установят штатную раковину будут торчать провода-НЕХОРОШО! сделать типа бра или делать розеткой-опять же на какой высоте.потом ведь шкаф-комод запитывать нужно.пока маюсь.или подключусь к этой розетке.

1 клетка 10см

post-98042-0-76736700-1422171585_thumb.png

привет жители форума!в комнате такое расположение как Вам?

Вполне. Мест для хранения хватит? Один двустворчатый шкаф на всю квартиру. То место, где знак вопроса - не задумывайтесь о нем. Сделайте ремонт и поймете, стоит туда что-то ставить и будет ли в этом необходимость.

другого места для хранения нет.как вариант поменять местами тв и купе.и увеличить длину стены.но мне не оч нравится тв и инет рядом.а где вопрос пока неясно.просто место для чего то....полки...ниши...просто цветок.но я думаю потом подберём по по стилю.обоям.цвету...

post-98042-0-80294200-1422645925_thumb.jpeg

  • 3 недели спустя...

привет жители форума!в комнате такое расположение как Вам?

теперь надо продумать освещение.управляю двумя клавишами(если надо то можно добавить третью) в центре скорее люстра.что еще?

post-98042-0-18914300-1424502685_thumb.jpeg

около дивана хорошо бы бру или парочку, около компьютера настольная лампа. я бы еще на балкон вывела фонарик.

правда я не поняла про 2 клавиши.

  • 2 недели спустя...
Гриша

Лучше связатся с дизайнером в вашем городе,он сделает раз и навсегда..и будете довольны.


Лучше связатся с дизайнером в вашем городе,он сделает раз и навсегда..и будете довольны.

Вполне. Мест для хранения хватит? Один двустворчатый шкаф на всю квартиру. То место, где знак вопроса - не задумывайтесь о нем. Сделайте ремонт и поймете, стоит туда что-то ставить и будет ли в этом необходимость.

мне кажется в случае необходимости можно сделать доп.место для хранения на балконе

Для публикации сообщений создайте учётную запись или авторизуйтесь

Вы должны быть зарегистрированным пользователем, чтобы оставить комментарий

Создать учетную запись

Зарегистрируйтесь в нашем сообществе.

Зарегистрироваться

Войти

Уже есть аккаунт? Войти в систему.

Войти

Или войти с помощью одного из сервисов



  • Наши рекомендации

    • Как построить теплый дом, не тратя лишних денег
      Строительство гостевого дома решил выделить в отдельную тему, так будет меньше путаницы.


        • Спасибо
        • Нравится
      • 259 ответов
    • Подходы к ремонту старых домов в России
      В России сотни тысяч старых домов, многие из которых являются не только свидетельством исторического наследия, но и отражением уникальной культуры и традиций страны. Эти дома, будь то деревянные избы или старинные каменные постройки, сохраняют в себе дух времени и рассказывают историю поколений.

      • 0 ответов
    • Дома из сруба: идеальное сочетание уюта и прочности.
      Строительство собственного дома является важной вехой в жизни любого человека, поскольку оно знаменует собой важное событие. Выбор строительных материалов имеет огромное значение для создания теплого и функционального жилища. На протяжении всей древней истории древесина была распространенным материалом для строительства домов, что отразилось на различных культурах мира.

      • 0 ответов
    • Кажись всё или строительный пылесос с тройной мультициклонной ступенью очистки
      Кажись всё или строительный пылесос с тройной мультициклонной ступенью очистки

        • Нравится
      • 16 ответов
    • Аккумуляторные пилы  SCW и  SCM  22-A
      После того как провёл тесты, приступил к самому главному. Поменять диски местами, и проверить, как инструмент на это отреагирует, ведь они внешнее и походу внутренне практически одинаковые, пила по дереву конечно более навороченее, есть настройки угла наклона и можно на шину посадить через адаптер.

      • 4 ответа
    • Люк для кошек своими руками
      Разумеется давно придуманы и продаются специальные лючки для кошек, которые можно врезать в дверь, но мы ведь не ищем легких путей . Да и по зоомагазинам я не хожу, а "гугление" показало, что такие люки для кошек стоят относительно не дешево. В то же время под рукой были два "копеечных" сантехнических пластиковых лючка для ГКЛ. Все что оставалось, так это обломать фиксаторы крышек, что бы они открывались в обе стороны, ровно выпилить отверстие в двери, да вклеить симметрично эти лючки.

      То, что получилось видно на фото. Разумеется это не для тех, у кого "дизайнерский ремонт", но для обыкновенной квартиры вполне подходит. Недостатков не замечено, животных и людей всё устраивает .


      Реакцию форумчан на этот люк можно узнать в этой теме https://homemasters.ru/...me/?p=330637

        • Ого
      • 6 ответов
    • Газовые котлы: эффективное, экономичное и экологичное решение для отопления вашего дома
      В современном мире, где комфорт и устойчивость стали ключевыми аспектами повседневной жизни, выбор правильного источника отопления дома становится особенно актуальным. Газовые котлы, сочетая в себе преимущества эффективности, экономичности и экологичности, представляют собой одно из наиболее популярных решений для обеспечения комфортной температуры в жилых и коммерческих помещениях.

      • 0 ответов
    • Вторая жизнь дивана: искусство ремонта мягкой мебели своими руками
      В эпоху беспрерывного потребления и стремления к новизне, ремонт старой мягкой мебели своими руками приобретает не просто практическое, но и глубоко философское значение. Это действие как знак уважения к труду мастеров, которые вложили свое мастерство в создание диванов, кресел и пуфов, и как воплощение идеи устойчивого потребления. С каждым возвращенным к жизни предметом мебели, мы не только сохраняем историю и уникальность каждого изделия, но и противостоим бездумному обновлению интерьера за счет экологии и рационального использования ресурсов.

        • Нравится
      • 0 ответов
×
×
  • Создать...

Важная информация

Мы разместили cookie-файлы на ваше устройство, чтобы помочь сделать этот сайт лучше. Вы можете изменить свои настройки cookie-файлов, или продолжить без изменения настроек.