Перейти к содержанию
Форумы о ремонте и строительстве

Планировка 1-к квартиры 7*6 М

Оценить эту тему:


Рекомендуемые сообщения

Опубликовано

Приветствую всех!

Есть 1-к квартира, периметр без балкона - 7 на 6 метров, соответственно, есть желание ее распланировать. Вот понарисовал несколько вариантов, пока в основном, контуры стен.

Вариант № 1.

Мне он меньше всего нравится - узкий коридор, длинная и узкая комната получается.

post-19951-0-92935700-1446323902.pngpost-19951-0-79877200-1446323987_thumb.png

Вариант №2.

Особенности: здесь получился просторный коридор 2*3 метра, 2 балкона (один остекленный, другой нет), более-менее пропорциональная большая комната.

post-19951-0-51941900-1446324069_thumb.pngpost-19951-0-90441100-1446324090.png

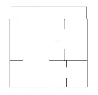
Вариант №3

И третий вариант, - почти такой же, как и второй, отличается тем, что половина балкона в нем присоединена к жилой площади. Мне он больше всего нравится.

post-19951-0-76366100-1446324513_thumb.pngpost-19951-0-41466600-1446324491.pngpost-19951-0-81946100-1446324479.png

Что тут еще можно придумать, посоветуйте. Пока дальше сильно ничего прорисовывать не стал.

я за то чтобы уменьшить площадь коридора,  но тут надо смотреть,  владелец может заядлый рыбак  или спортсмен  и ему надо где то хранить свой инвентарь

или любой случай  что то в этом духе, коляска, мешки картошки, велосипед и пр

а так 3 вариант  но с меньшим коридором

Подписываемся на тему День за днём, моя работа https://homemasters.ru/...esta-raboty/ и на мой инстарам https://www.instagram.c...gda35remont/

Принимаю заказы на мебель из слэбов

 

Если уменьшить в одну сторону, то будет узкий и длинный, а если в другую, то в комнате будет аппендикс в углу. А так, я в этот коридор планировал диван поставить, и как-бы комната для гостей получилась бы.

в коридор диван, чтобы там сидеть и газеты читать   и часто вы гостей в коридоре держите ))

лично я выбирая между коридором или комнатой, выбираю всю полезную нагрузку на комнату,  у себя дома  не смог решить этот вопрос и теперь у меня длинный узкий коридор,  и так и сяк его обдумывал

Подписываемся на тему День за днём, моя работа https://homemasters.ru/...esta-raboty/ и на мой инстарам https://www.instagram.c...gda35remont/

Принимаю заказы на мебель из слэбов

 

лично я выбирая между коридором или комнатой, выбираю всю полезную нагрузку на комнату, у себя дома не смог решить этот вопрос и теперь у меня длинный узкий коридор, и так и сяк его обдумывал

Я раньше тоже так считал - коридор по минимуму, но недавно в отпуске снимал квартиру, там был такой большой коридор с диваном, вот мне идея и понравилась. Одно смущает, вентиляцию наверное там придется делать, - спать наверное душно там будет.

там был такой большой коридор с диваном, вот мне идея и понравилась

прямо как у вас большой ? :)

Одно смущает, вентиляцию наверное там придется делать, - спать наверное душно там будет.

а меня смущает где будет дверь в санузел,  если на жилой половине то гость будет ходить через неё,  если с коридора то ходить через гостя и во всё другое время через коридор

Подписываемся на тему День за днём, моя работа https://homemasters.ru/...esta-raboty/ и на мой инстарам https://www.instagram.c...gda35remont/

Принимаю заказы на мебель из слэбов

 

у нас очень похожая квартира, только 6 на 6 грубо без лоджии. и как раз гостевой диванчик в т.н. холле. посмотрите может понравится. у нас сделано так примерно

post-59909-0-90448300-1446330255_thumb.jpg

диванчик в торце холла поперек, там как раз ширина 2 с хвостиком и диванчик влезает. он не мешает ходить. двери в комнате двойные раздвижные, по умолчанию открыты, проемы большие и пространство едино.

хочу обратить ваше внимание на вход в кухню именно из комнаты по большой стене - очень удобно, т.к. ходить из комнаты в кухню надо намного чаще чем из прихожей.


а меня смущает где будет дверь в санузел, если на жилой половине то гость будет ходить через неё, если с коридора то ходить через гостя

Саня, при таких площадях не до реверансов, было бы куда голове упасть)

во всё другое время через коридор

разве это не стандартная конструкция?

с длинным залом - маленьким коридором:

почти копия того что у нас было до перепланировки. не нравилось. вообще длинные узкие помещения неудобны ни с т.з. перемещения по ним, ни размещения мебели.

вы принципиально хотите кухню изолированную? размещение мебели в ней получается несравнимо удобнее если вход с длинной стороны. если вход с торца - то размещение только в длинный ряд и снование вдоль него туда-сюда

Привет всем участникам!

Что тут еще можно придумать, посоветуйте. Пока дальше сильно ничего прорисовывать не стал.
 Вы рисуете планировку без учета габаритов и расположения будущей мебели? Это ошибка. Для хорошего планировочного решения нужен план помещения со всеми(!) размерами. Координаты вентканалов на кухне и в санузле. Точки подвода воды, расположение канализационного стояка. Далее хотелось бы понимать целевое назначение квартиры. Она под сдачу или под постоянное проживание? Сколько человек планируется к проживанию в квартире? Наличие домашних животных: кошек, собак, птиц, аквариумов, террариумов, серпентариев, прочее. Если что-то из конструкций уже имеется, то указать габариты. Перечислить, что из бытовой техники и др. элементов интерьера обязательно должно и будет присутствовать. К примеру, велотренажер, кресло-качалка, пианино, спортивная стенка, барабанная установка, прочее (указать габариты), посудомоечная машина, двухдверный Liebherr, прочее (указать модели). Если не подойти к планировке квартиры серьезно на первом этапе, то потом весь ремонт вплоть до заказа мебели превратится в бесконечную работу над ошибками. И не факт, что в итоге результат порадует и будет удобен в эксплуатации.
И третий вариант, - почти такой же, как и второй, отличается тем, что половина балкона в нем присоединена к жилой площади. Мне он больше всего нравится.

Еще бы! :) В нем Вы замахнулись снести несущую стену. Довольно смелое решение, однако, небезопасное и с трудом согласуемое. Вас не затруднит указать, какие сейчас проемы в наружной несущей стене? Не наружное остекление, а там, где у Вас в толстой стене балконные блоки. И какой это этаж сколькиэтажного дома? 

  • 1 месяц спустя...

Помоему с кладовкой и гардеробом - это будет лучший вариант. Но вначале лучше всего определиться с возможностью согласования такой перепланировки.

Для публикации сообщений создайте учётную запись или авторизуйтесь

Вы должны быть зарегистрированным пользователем, чтобы оставить комментарий

Создать учетную запись

Зарегистрируйтесь в нашем сообществе.

Зарегистрироваться

Войти

Уже есть аккаунт? Войти в систему.

Войти

Или войти с помощью одного из сервисов



  • Наши рекомендации

    • Люк для кошек своими руками
      Разумеется давно придуманы и продаются специальные лючки для кошек, которые можно врезать в дверь, но мы ведь не ищем легких путей . Да и по зоомагазинам я не хожу, а "гугление" показало, что такие люки для кошек стоят относительно не дешево. В то же время под рукой были два "копеечных" сантехнических пластиковых лючка для ГКЛ. Все что оставалось, так это обломать фиксаторы крышек, что бы они открывались в обе стороны, ровно выпилить отверстие в двери, да вклеить симметрично эти лючки.

      То, что получилось видно на фото. Разумеется это не для тех, у кого "дизайнерский ремонт", но для обыкновенной квартиры вполне подходит. Недостатков не замечено, животных и людей всё устраивает .


      Реакцию форумчан на этот люк можно узнать в этой теме https://homemasters.ru/...me/?p=330637

        • Ого
      • 6 ответов
    • Дома из сруба: идеальное сочетание уюта и прочности.
      Строительство собственного дома является важной вехой в жизни любого человека, поскольку оно знаменует собой важное событие. Выбор строительных материалов имеет огромное значение для создания теплого и функционального жилища. На протяжении всей древней истории древесина была распространенным материалом для строительства домов, что отразилось на различных культурах мира.

      • 0 ответов
    • Вторая жизнь дивана: искусство ремонта мягкой мебели своими руками
      В эпоху беспрерывного потребления и стремления к новизне, ремонт старой мягкой мебели своими руками приобретает не просто практическое, но и глубоко философское значение. Это действие как знак уважения к труду мастеров, которые вложили свое мастерство в создание диванов, кресел и пуфов, и как воплощение идеи устойчивого потребления. С каждым возвращенным к жизни предметом мебели, мы не только сохраняем историю и уникальность каждого изделия, но и противостоим бездумному обновлению интерьера за счет экологии и рационального использования ресурсов.

        • Нравится
      • 0 ответов
    • Кажись всё или строительный пылесос с тройной мультициклонной ступенью очистки
      Кажись всё или строительный пылесос с тройной мультициклонной ступенью очистки

        • Нравится
      • 16 ответов
    • Газовые котлы: эффективное, экономичное и экологичное решение для отопления вашего дома
      В современном мире, где комфорт и устойчивость стали ключевыми аспектами повседневной жизни, выбор правильного источника отопления дома становится особенно актуальным. Газовые котлы, сочетая в себе преимущества эффективности, экономичности и экологичности, представляют собой одно из наиболее популярных решений для обеспечения комфортной температуры в жилых и коммерческих помещениях.

      • 0 ответов
    • Подходы к ремонту старых домов в России
      В России сотни тысяч старых домов, многие из которых являются не только свидетельством исторического наследия, но и отражением уникальной культуры и традиций страны. Эти дома, будь то деревянные избы или старинные каменные постройки, сохраняют в себе дух времени и рассказывают историю поколений.

      • 0 ответов
    • Как построить теплый дом, не тратя лишних денег
      Строительство гостевого дома решил выделить в отдельную тему, так будет меньше путаницы.


        • Спасибо
        • Нравится
      • 256 ответов
    • Аккумуляторные пилы  SCW и  SCM  22-A
      После того как провёл тесты, приступил к самому главному. Поменять диски местами, и проверить, как инструмент на это отреагирует, ведь они внешнее и походу внутренне практически одинаковые, пила по дереву конечно более навороченее, есть настройки угла наклона и можно на шину посадить через адаптер.

      • 4 ответа
×
×
  • Создать...

Важная информация

Мы разместили cookie-файлы на ваше устройство, чтобы помочь сделать этот сайт лучше. Вы можете изменить свои настройки cookie-файлов, или продолжить без изменения настроек.