Перейти к содержанию
Форумы о ремонте и строительстве

Оценить эту тему:


Den_Ce

Рекомендуемые сообщения

Каденциря

Ну чтож про кадецию своё имхо :)

Просто вылез чел, наделал шороху в смысле пропиарил себя

выдал чушь типа что за день научит штукатурить в идеал

про плитку промолчу

хочет денег за учебу, когда спросил что за учеба то оказалась банальные 10м2 по маячкам на отдельном участке стены и типа утром ученик а вечером уже штукатур-профи (я бесплатно могу этому научить на расстояние)

Если, не сложно-бесплатно, подскажите как, получить такой результат, как здесь http://www.cadensia.ru/tech.html

то кадециязнакомые фотки я их   видел, ну и что, 3метровое правило поставили к потолку и ровно, думаете это фантастическая точностьвот если вы в 5 квартирах по 100м2 зальёте полы с перепадом 1мм в реально-нормальные сроки а не за пятилетку (заметьте это вы сами говорили на том форуме что на 500м2 - 1мм) тогда я первый скажу что кадеция это супер про сами измерения на том форуме всё обсудили про скорость- так она достигается за счёт штукатурных станций типа ritmo (на это форуме есть человек которых их использует) так что 50м2 в день это не вопрособучение от 10мин до 1часа и новичок профи, не смешите людей за меньшие деньги чем 7000$ я смогу купить станцию, нивелир лазерник от хилти, полный набор ручного инструмента для бригады

Подписываемся на тему День за днём, моя работа https://homemasters.ru/...esta-raboty/ и на мой инстарам https://www.instagram.c...gda35remont/

Принимаю заказы на мебель из слэбов

 

то кадеция знакомые фотки я их   видел, ну и что, 3метровое правило поставили к потолку и ровно, думаете это фантастическая точность вот если вы в 5 квартирах по 100м2 зальёте полы с перепадом 1мм в реально-нормальные сроки а не за пятилетку (заметьте это вы сами говорили на том форуме что на 500м2 - 1мм) тогда я первый скажу что кадеция это супер про сами измерения на том форуме всё обсудили про скорость- так она достигается за счёт штукатурных станций типа ritmo (на это форуме есть человек которых их использует) так что 50м2 в день это не вопрос обучение от 10мин до 1часа и новичок профи, не смешите людей за меньшие деньги чем 7000$ я смогу купить станцию, нивелир лазерник от хилти, полный набор ручного инструмента для бригады

с трудом верится что идеально ровно в любом углу квартиры или дома,а если бюджет меньше что кривее делают?

с трудом верится что идеально ровно в любом углу квартиры или дома,а если бюджет меньше что кривее делают?

вопрос можно вот так поставить, на кой ... такая точность нужна , заказчика что ли удивить, так тут всё просто, за его (заказчика) деньги любой каприз , а то что его разводят как лоха так не надо на замануху вестись в виде (яко бы) абсолютного качествапросто пиар

Подписываемся на тему День за днём, моя работа https://homemasters.ru/...esta-raboty/ и на мой инстарам https://www.instagram.c...gda35remont/

Принимаю заказы на мебель из слэбов

 

к такой штукатурке ещё бы автомобильную шпаклёвку и покраску :) хотя сремиться по мере возможности к идеалу надо наверно в любом деле.

вопрос можно вот так поставить, на кой ... такая точность нужна , заказчика что ли удивить, так тут всё просто, за его (заказчика) деньги любой каприз , а то что его разводят как лоха так не надо на замануху вестись в виде (яко бы) абсолютного качествапросто пиар

Посмотрел этот сайт!Чушь собачья!Гаврила с правилом ведет показ гипрочных стен!?И что тут особенного?! А вот написаное это эксклюзив!!!! :):ph34r: Постеснялись бы такую чушь писать!!! Люди всю жизнь работают и каждый раз,что-то новое узнаешь! А тут за 10 минут штукатур готовый :) Чего только не придумают,что бы бабки с лапухов состричь! :ph34r:

к такой штукатурке ещё бы автомобильную шпаклёвку и покраску :) хотя сремиться по мере возможности к идеалу надо наверно в любом деле.

ну тогда проще-дешевле будет натяжной натянуть :)

Подписываемся на тему День за днём, моя работа https://homemasters.ru/...esta-raboty/ и на мой инстарам https://www.instagram.c...gda35remont/

Принимаю заказы на мебель из слэбов

 

БЭЗНИКИЙ

Всем доброго времени суток.Почитал.Да уж :( .Ребята может ко мне приедете на помощь,ведь лучше один раз увидеть,...Вот собираюсь,как говорят в народе обделать лоджию (правда бы чего не натворить :) ),возникают разные вопросы и сомнения.А вот что первей-стяжка или штукатурка,а ритрический вопрос,про маячки,вроде всё понятно,а зачем от потолка надо оставлять расстояние,а от пола не надо оставлять,а вот если над оконными проёмами расстояние 33 см,там надо маячки ставить.Извините за мою вот такую дебильность :( .

А вот что первей-стяжка или штукатурка

В данной ситуации лучше стяжка. Вот только не надо забывать, что это лоджия. Это я про нагрузку.

Не забываем установить аватар, заполнить профиль, и создать свой блог

https://homemasters.ru/

БЭЗНИКИЙ

В данной ситуации лучше стяжка. Вот только не надо забывать, что это лоджия. Это я про нагрузку.

Плита лежит 16 см,с перекосом по длине в 2 см,старую стяжку я убрал,так как процентов на 80 лежала на хорошей подсыпке из строительного мусора,толщина новой-убрать перекос и сантиметра 1,5\2 равномерным слоем.Ребята,помогите с маячками разобраться.

Всем доброго времени суток.Почитал.Да уж :( .Ребята может ко мне приедете на помощь,ведь лучше один раз увидеть,...Вот собираюсь,как говорят в народе обделать лоджию (правда бы чего не натворить :) ),возникают разные вопросы и сомнения.А вот что первей-стяжка или штукатурка,а ритрический вопрос,про маячки,вроде всё понятно,а зачем от потолка надо оставлять расстояние,а от пола не надо оставлять,а вот если над оконными проёмами расстояние 33 см,там надо маячки ставить.Извините за мою вот такую дебильность :( .

если не хватает длинны -правило- между двух маяков установленых по краям оконного проёма то маячки нужно ставить и над оконным проёмомв каком смысле про расстояние от потолка и не оставлять от пола?

Подписываемся на тему День за днём, моя работа https://homemasters.ru/...esta-raboty/ и на мой инстарам https://www.instagram.c...gda35remont/

Принимаю заказы на мебель из слэбов

 

БЭЗНИКИЙ

если не хватает длинны -правило- между двух маяков установленых по краям оконного проёма то маячки нужно ставить и над оконным проёмомв каком смысле про расстояние от потолка и не оставлять от пола?

Где то я здесь прочитал,что маячки устанавливаются друг от друга на расстоянии 1-1,5 м,от углов 10 см,от потолка 10 см.Так вот зачем от потолка их отрывать на 10 см,а от пола не надо?KGB,а почему в данном случае первой надо заливать стяжку?SANO,а если я вышлю развёртку лоджии ты поможешь скорректировать установку маячков?Блин,а вот если штукатурить,что надо первым сделать,откосы или стену,а потом откосы?Ну я и дубалом :blink: .

Где то я здесь прочитал,что маячки устанавливаются друг от друга на расстоянии 1-1,5 м,от углов 10 см,от потолка 10 см.Так вот зачем от потолка их отрывать на 10 см,а от пола не надо?KGB,а почему в данном случае первой надо заливать стяжку?SANO,а если я вышлю развёртку лоджии ты поможешь скорректировать установку маячков?Блин,а вот если штукатурить,что надо первым сделать,откосы или стену,а потом откосы?Ну я и дубалом :blink: .

Могу, укажи какой длинны есть -правило- в наличиисначало стены

Подписываемся на тему День за днём, моя работа https://homemasters.ru/...esta-raboty/ и на мой инстарам https://www.instagram.c...gda35remont/

Принимаю заказы на мебель из слэбов

 

БЭЗНИКИЙ
Sano сказал(а):

Могу, укажи какой длинны есть -правило- в наличиисначало стены

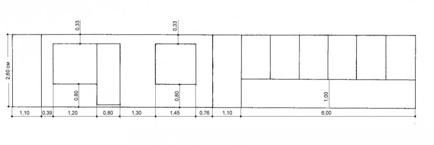
Посмотрел в магазинах,минимальное правило 2 метра.Вот лоджия на картинке.

________

от углов отступаем примерно 10смесли длина правило 2м то расстояние между маяками 1.8-1.9м для выравнивания торцевых стенок (1.1м) можно отпилить(если не жалко) от -правило- лишниие 95см т.е. укоротить правило на ширину стены и -5см , ессно предварительно выравнять длинные стены

__

Подписываемся на тему День за днём, моя работа https://homemasters.ru/...esta-raboty/ и на мой инстарам https://www.instagram.c...gda35remont/

Принимаю заказы на мебель из слэбов

 

На вашем форуме я человек новый, да и с соседней страны.Теперь по поводу маячков.(Все страницы этой темы я не читал).Что бы было проще определитесь какие вас устраивают углы(имею ввиду под 90 гр или устроят какие есть,далее промеряйте плоскость стен тех где имеются дверные и оконные проемы,от того какая разница правого и левого откоса проема от этого и пойдет вся плоскостьстены.Первый вопрос,какие маячки используете?Заводского изготовления или нет?Могу подбросить вариант изготовления маячков(но это при наличии хорошего ровного дюралиевого правила).Когда определились каким должно быть направления стен,там где имеются проемы,просмотрите в каком состоянии по ровности эти стены по отношению коткосам найдите точки от которых и будете плясать(опять таки от равных растояний откосов).Киньте на пол уровень от этих точек и малярным шнурком по полу пробейте линию которая должна пройти через эти точки(от угла до угла)так определите направление всей плоскости стены.А далее правилом по отношении этой линии при помощи уровня выставите вертикальные уровни маяков(если конечно верха на завалены в комнату).Так поступите и с остальными стенами.И желательно маяки ставить на том растоянии чтобы правило перекрывало своей плоскостью три маяка иначе плоскость может уйти.Ну а если заинтересуетесь насчет самодельных маячков сообщите.

У нас дюралиевые правила есть и 1-1.5-2-2.5-3 метра(только не всегда новые ровные)

БЭЗНИКИЙ

SANO,я понял,большое спасибо.Сегодня нашёл правило 1,5 м,если отпиливать то меньше жалко будет :) .Использую маячки заводского изготовления.Svat,а можно поподробнее,желательно с рисунком,я этим делом не занимался никогда,да вот не очень богатая жизнь заставила :) ,а может оно и к лучшему.А почему наши штукатуры берут,к примеру 300 рэ\м2,а с маячками 350 рэ за м2,ведь с маячками штукатурить легче,как здесь говорилось,это что установка маячков с наценкой в 50 рэ идёт?А ещё они говорят,что силикатный кирпич плохо штукатурится,что надо ставить сетку,у меня штукатурка "Крепс Мастер",там об сетке и силикатном ни гу-гу.Спросил у них про грунт,в смысле,а что если им помазать,уж как то они неохотно ответили "мооожно попробовать",то ли не слыхали об этом,то ли у них корыстные цели задуманы-запугать и обчистить :) .

SANO,я понял,большое спасибо.Сегодня нашёл правило 1,5 м,если отпиливать то меньше жалко будет :) .Использую маячки заводского изготовления.Svat,а можно поподробнее,желательно с рисунком,я этим делом не занимался никогда,да вот не очень богатая жизнь заставила :) ,а может оно и к лучшему.А почему наши штукатуры берут,к примеру 300 рэ\м2,а с маячками 350 рэ за м2,ведь с маячками штукатурить легче,как здесь говорилось,это что установка маячков с наценкой в 50 рэ идёт?А ещё они говорят,что силикатный кирпич плохо штукатурится,что надо ставить сетку,у меня штукатурка "Крепс Мастер",там об сетке и силикатном ни гу-гу.Спросил у них про грунт,в смысле,а что если им помазать,уж как то они неохотно ответили "мооожно попробовать",то ли не слыхали об этом,то ли у них корыстные цели задуманы-запугать и обчистить :) .

По поводу изготовления маячков(без проблем!) .Все очень просто!Небольшом колличестве воды разведи немного цемента затем добавь шпаклевку финиш(пропорция такая если взять цемента и финишки 1к 1 эта смесь схватиться примерно минут через десять пятнадцать)чем больше цемента тем быстрее схватывается смесь.Смесь должнна быть не жидкой.Первым делом проклей малярной лентой плоский торец правила,прочерти карандашем линию где у тебя будет маячек,если удаление от стены небольшое тогда можно приготовить немного указанной смеси и шпателем нанеси по разметки такую дорожку из этой смеси шириной такой как торец правила,толщину слоя чуть больше чем необходимое удаления маяка от стены.Затем поставиш правила на условную линию плоскости стени и придавливая торец правила на нанесеную смесь выставь по вертикальному уровню как только выставиш уровень ,все что вылезло из под правила удали шпателем и дай застыть.После отвердивания можно смело снимать правило.Если правило ровное то увидиш что и маячек будет практически идеальным.Затем можно ставить следующий,После высыхания можно равнять стены но учитывай что это всетаки на метал!!!.В принцыпе по своей работе мы уже давно отказались от металических маяков.Так же можно и ставить и на пол.Тем более таким маякам нестрашна корозия металла из за отсутствия такового
(изменено)

Здравствуйте. Собираюсь штукатурить стены (стены из кирпича и пенобетона).

Вот возникло несколько вопросов.

1. Какой оптимальный состав ЦПС (решил сэкономить и делать смесь сам)? Какие доступные добавки можно применять для улучшения качества?

2. Можно ли при толщине слоя штукатурки 10мм класть раствор одним слоем?

3. Можно ли обойтись шлифованием поверхности или нужно шпатлевать?

4. Что первей нужно делать: стяжку пола или сначала штукатурка?

Спасибо.

Изменено пользователем SumMrak

Для публикации сообщений создайте учётную запись или авторизуйтесь

Вы должны быть зарегистрированным пользователем, чтобы оставить комментарий

Создать учетную запись

Зарегистрируйтесь в нашем сообществе.

Зарегистрироваться

Войти

Уже есть аккаунт? Войти в систему.

Войти

Или войти с помощью одного из сервисов



  • Наши рекомендации

    • Как построить теплый дом, не тратя лишних денег
      Строительство гостевого дома решил выделить в отдельную тему, так будет меньше путаницы.


        • Спасибо
        • Нравится
      • 257 ответов
    • Люк для кошек своими руками
      Разумеется давно придуманы и продаются специальные лючки для кошек, которые можно врезать в дверь, но мы ведь не ищем легких путей . Да и по зоомагазинам я не хожу, а "гугление" показало, что такие люки для кошек стоят относительно не дешево. В то же время под рукой были два "копеечных" сантехнических пластиковых лючка для ГКЛ. Все что оставалось, так это обломать фиксаторы крышек, что бы они открывались в обе стороны, ровно выпилить отверстие в двери, да вклеить симметрично эти лючки.

      То, что получилось видно на фото. Разумеется это не для тех, у кого "дизайнерский ремонт", но для обыкновенной квартиры вполне подходит. Недостатков не замечено, животных и людей всё устраивает .


      Реакцию форумчан на этот люк можно узнать в этой теме https://homemasters.ru/...me/?p=330637

        • Ого
      • 6 ответов
    • Дома из сруба: идеальное сочетание уюта и прочности.
      Строительство собственного дома является важной вехой в жизни любого человека, поскольку оно знаменует собой важное событие. Выбор строительных материалов имеет огромное значение для создания теплого и функционального жилища. На протяжении всей древней истории древесина была распространенным материалом для строительства домов, что отразилось на различных культурах мира.

      • 0 ответов
    • Аккумуляторные пилы  SCW и  SCM  22-A
      После того как провёл тесты, приступил к самому главному. Поменять диски местами, и проверить, как инструмент на это отреагирует, ведь они внешнее и походу внутренне практически одинаковые, пила по дереву конечно более навороченее, есть настройки угла наклона и можно на шину посадить через адаптер.

      • 4 ответа
    • Кажись всё или строительный пылесос с тройной мультициклонной ступенью очистки
      Кажись всё или строительный пылесос с тройной мультициклонной ступенью очистки

        • Нравится
      • 16 ответов
    • Газовые котлы: эффективное, экономичное и экологичное решение для отопления вашего дома
      В современном мире, где комфорт и устойчивость стали ключевыми аспектами повседневной жизни, выбор правильного источника отопления дома становится особенно актуальным. Газовые котлы, сочетая в себе преимущества эффективности, экономичности и экологичности, представляют собой одно из наиболее популярных решений для обеспечения комфортной температуры в жилых и коммерческих помещениях.

      • 0 ответов
    • Подходы к ремонту старых домов в России
      В России сотни тысяч старых домов, многие из которых являются не только свидетельством исторического наследия, но и отражением уникальной культуры и традиций страны. Эти дома, будь то деревянные избы или старинные каменные постройки, сохраняют в себе дух времени и рассказывают историю поколений.

      • 0 ответов
    • Вторая жизнь дивана: искусство ремонта мягкой мебели своими руками
      В эпоху беспрерывного потребления и стремления к новизне, ремонт старой мягкой мебели своими руками приобретает не просто практическое, но и глубоко философское значение. Это действие как знак уважения к труду мастеров, которые вложили свое мастерство в создание диванов, кресел и пуфов, и как воплощение идеи устойчивого потребления. С каждым возвращенным к жизни предметом мебели, мы не только сохраняем историю и уникальность каждого изделия, но и противостоим бездумному обновлению интерьера за счет экологии и рационального использования ресурсов.

        • Нравится
      • 0 ответов
×
×
  • Создать...

Важная информация

Мы разместили cookie-файлы на ваше устройство, чтобы помочь сделать этот сайт лучше. Вы можете изменить свои настройки cookie-файлов, или продолжить без изменения настроек.