Перейти к содержанию
Форумы о ремонте и строительстве

Планировка квартиры - за 2 месяца до ремонта

Оценить эту тему:


Рекомендуемые сообщения

Опубликовано

Добрый вечер!

Давно хотел завести аккаунт на тематическом форуме.

С нетерпением ждем сдачи дома строителями и пока обдумываем планировки, хотелось бы услышать советы, предложения и критику.

Нами было куплено две квартиры, которые планируется объединить в одну.

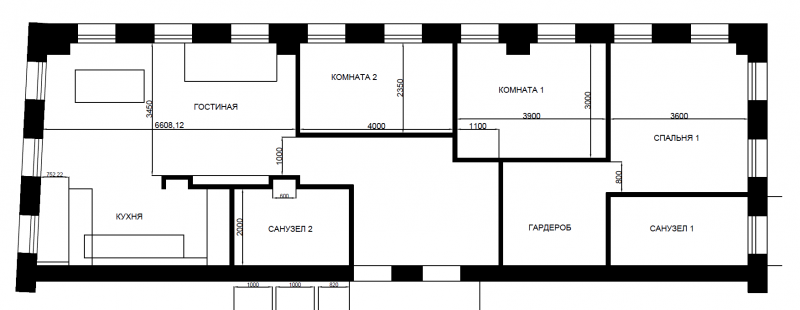
Начальная планировка:

post-106743-0-19778900-1476196192_thumb.jpg

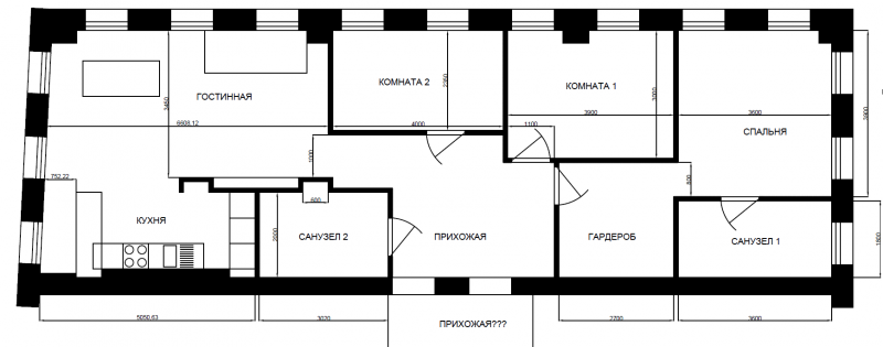
Что планируется сделать:

post-106743-0-20137100-1476199853_thumb.png

Кроме того есть небольшой спор внутри семьи по поводу расположения кухонного гарнитура,

три варианта расположения шкафов в пространстве:

post-106743-0-92229000-1476200746.png

Буду рад услышать ваши мнения

Гардероб вместо санузла, а как трубы протянете от стояков?

Подписываемся на тему День за днём, моя работа https://homemasters.ru/...esta-raboty/ и на мой инстарам https://www.instagram.c...gda35remont/

Принимаю заказы на мебель из слэбов

 

по поводу расположения кухонного гарнитура, три варианта расположения шкафов в пространстве:

Как понять ваш эскиз? Откуда вид? Сверху? Что значит - стандартный шкаф? А что - стол/столешница? Это типо барной стойки? Холодильник где жить будет? Размеры второй стены есть, а то только короткую вижу, что там 2000мм.

Вы там планируете убрать несущую стену?

(изменено)

@Sano,

Гардероб вместо санузла, а как трубы протянете от стояков?

Там рядом еще и кухня, так что трубы тянуть не придется.

Как понять ваш эскиз? Откуда вид? Сверху? Что значит - стандартный шкаф? А что - стол/столешница? Это типо барной стойки? Холодильник где жить будет? Размеры второй стены есть, а то только короткую вижу, что там 2000мм.

Вы там планируете убрать несущую стену?

Спасибо за ответ.

Несущих стен внутри двух помещений нет, обычные пеноблоки в два ряда установлены.

По кухне - да, вид сверху.

Стол-столешница - правильно, барная стойка.

Стандартные шкафы - это кухонный гарнитур высотой 80см, высокие - это во всю высоту стены, туда и планируется встроенный холодильник с техникой поставить.

Размер длинной стены 4.8 примерно, а короткой даже не 2.0, а 1.8 скорее - уменьшение за счет стояков на стене.

Изменено пользователем marat18
Справа кухни нет

Сань,есть там всё, это же вторая квартира

. Компоновка конечно не фонтан,но с таким "вагоном" много и не напланируешь. Кухню с гостиной я бы по-другому  развел,гостиная слишком "проходная" так получается

три варианта
Из предложенных вами, боле менее лучший №3. Но барная стойка не айс. Если только повернуть ее, как в №2, 

Что из техники еще планируется? Посудомойка, стиралка?

Но что то ваш план какой то недоделок. Расставьте двери и обозначьте их открывание. Думаю многое сразу прояснится. Мне он (ваш план) не нравится. Это мое внутреннее чувство.

@Alef,

Судя по плану стояк там как раз в гардеробную уходит и до нового санузла перегородки с дверным разрывом

:)

Подписываемся на тему День за днём, моя работа https://homemasters.ru/...esta-raboty/ и на мой инстарам https://www.instagram.c...gda35remont/

Принимаю заказы на мебель из слэбов

 

Судя по плану стояк там как раз в гардеробную уходит и до нового санузла перегородки с дверным разрывом

ну уходит -то недалеко,а про перегородки и дверь не очень понял в каком месте...

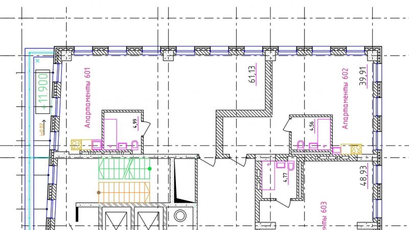
post-11625-0-62117000-1476339039_thumb.jpg

Тьфу ты нуты, я то думал что и площадь справа внизу также к квартире относится , а его только три окна справа :)

Автор нужно выкладывать чертежи только того что нужно менять, а не соседних квартир, а то мы и им перепланировку сбацаем

Новая планировка на мой взгляд неудачная, двери надо было добавить

Подписываемся на тему День за днём, моя работа https://homemasters.ru/...esta-raboty/ и на мой инстарам https://www.instagram.c...gda35remont/

Принимаю заказы на мебель из слэбов

 

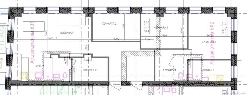
Прорисовал двери, как и просили

post-106743-0-42234700-1476466822_thumb.png

Еще раз повторюсь - стена между квартирами не несущая.

Согласен, что квартира узковата - всего 5.5м для того чтобы развернуться, но ведь всегда бывают какие-то ограничения и суть перепланировок как раз минимизировать недостатки)

С гостинной и кухней пытался продумать возможные варианты, но пока только этот получается. Иные варианты расположения выходили не очень.

На кухне только посудомойка планируется, без стиралки.

В принципе всегда есть стандартный вариант - классическая угловая кухня буквой Г, но хочется уж поставить высокие шкафы в кухонный гарнитур, да и места в них гораздо больше для всяких круп, тарелок и тд.

Еще на схеме обозначил пространство в самом низу "ПРИХОЖАЯ???" - это общий коридор, который есть в планах присоединить к квартире, но пока переговоры с застройщиком толком и не начаты, поэтому планировка пока эту площадь не учитывает.

Пока понял что на взгляд форумчан в планировке есть недостатки, но хотелось бы услышать и предложения как их устранить?

  • 2 недели спустя...

Я может, чего-то не поняла, но куда делась несущая стена межквартирная?

стена НЕ несущая,это видно и по обозначению на плане,и об этом говорится выше в обсуждении

стена НЕ несущая,это видно и по обозначению на плане,и об этом говорится выше в обсуждении

Простите за назойливость, но за счет чего в таком случае толщина стены образовалась? Мне это просто интересно.

Простите за назойливость, но за счет чего в таком случае толщина стены образовалась? Мне это просто интересно.

Ну прочтите же тему,сам автор пишет

Несущих стен внутри двух помещений нет, обычные пеноблоки в два ряда установлены.

Для публикации сообщений создайте учётную запись или авторизуйтесь

Вы должны быть зарегистрированным пользователем, чтобы оставить комментарий

Создать учетную запись

Зарегистрируйтесь в нашем сообществе.

Зарегистрироваться

Войти

Уже есть аккаунт? Войти в систему.

Войти

Или войти с помощью одного из сервисов



  • Наши рекомендации

    • Как построить теплый дом, не тратя лишних денег
      Строительство гостевого дома решил выделить в отдельную тему, так будет меньше путаницы.


        • Спасибо
        • Нравится
      • 258 ответов
    • Вторая жизнь дивана: искусство ремонта мягкой мебели своими руками
      В эпоху беспрерывного потребления и стремления к новизне, ремонт старой мягкой мебели своими руками приобретает не просто практическое, но и глубоко философское значение. Это действие как знак уважения к труду мастеров, которые вложили свое мастерство в создание диванов, кресел и пуфов, и как воплощение идеи устойчивого потребления. С каждым возвращенным к жизни предметом мебели, мы не только сохраняем историю и уникальность каждого изделия, но и противостоим бездумному обновлению интерьера за счет экологии и рационального использования ресурсов.

        • Нравится
      • 0 ответов
    • Газовые котлы: эффективное, экономичное и экологичное решение для отопления вашего дома
      В современном мире, где комфорт и устойчивость стали ключевыми аспектами повседневной жизни, выбор правильного источника отопления дома становится особенно актуальным. Газовые котлы, сочетая в себе преимущества эффективности, экономичности и экологичности, представляют собой одно из наиболее популярных решений для обеспечения комфортной температуры в жилых и коммерческих помещениях.

      • 0 ответов
    • Люк для кошек своими руками
      Разумеется давно придуманы и продаются специальные лючки для кошек, которые можно врезать в дверь, но мы ведь не ищем легких путей . Да и по зоомагазинам я не хожу, а "гугление" показало, что такие люки для кошек стоят относительно не дешево. В то же время под рукой были два "копеечных" сантехнических пластиковых лючка для ГКЛ. Все что оставалось, так это обломать фиксаторы крышек, что бы они открывались в обе стороны, ровно выпилить отверстие в двери, да вклеить симметрично эти лючки.

      То, что получилось видно на фото. Разумеется это не для тех, у кого "дизайнерский ремонт", но для обыкновенной квартиры вполне подходит. Недостатков не замечено, животных и людей всё устраивает .


      Реакцию форумчан на этот люк можно узнать в этой теме https://homemasters.ru/...me/?p=330637

        • Ого
      • 6 ответов
    • Подходы к ремонту старых домов в России
      В России сотни тысяч старых домов, многие из которых являются не только свидетельством исторического наследия, но и отражением уникальной культуры и традиций страны. Эти дома, будь то деревянные избы или старинные каменные постройки, сохраняют в себе дух времени и рассказывают историю поколений.

      • 0 ответов
    • Аккумуляторные пилы  SCW и  SCM  22-A
      После того как провёл тесты, приступил к самому главному. Поменять диски местами, и проверить, как инструмент на это отреагирует, ведь они внешнее и походу внутренне практически одинаковые, пила по дереву конечно более навороченее, есть настройки угла наклона и можно на шину посадить через адаптер.

      • 4 ответа
    • Кажись всё или строительный пылесос с тройной мультициклонной ступенью очистки
      Кажись всё или строительный пылесос с тройной мультициклонной ступенью очистки

        • Нравится
      • 16 ответов
    • Дома из сруба: идеальное сочетание уюта и прочности.
      Строительство собственного дома является важной вехой в жизни любого человека, поскольку оно знаменует собой важное событие. Выбор строительных материалов имеет огромное значение для создания теплого и функционального жилища. На протяжении всей древней истории древесина была распространенным материалом для строительства домов, что отразилось на различных культурах мира.

      • 0 ответов
×
×
  • Создать...

Важная информация

Мы разместили cookie-файлы на ваше устройство, чтобы помочь сделать этот сайт лучше. Вы можете изменить свои настройки cookie-файлов, или продолжить без изменения настроек.