Перейти к содержанию
Форумы о ремонте и строительстве

Перепланировка и дизайн квартиры

Оценить эту тему:


Рекомендуемые сообщения

Опубликовано

Добрый день!
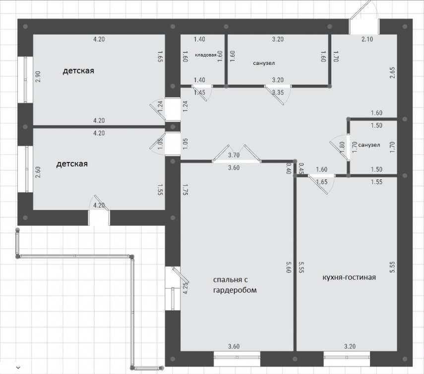
Застройщик предлагает нам следующую планировку квартиру площадь 90 кв.м.
В плане заложены две детские, два санузла, кладовка, большая спальня с гардеробной, кухня и очень большой проходной коридор. Просим помощи в планировке квартиры. Все стенки, кроме несущих, могут двигаться.
Заранее спасибо!!

План-схема -надписи.jpg

23 минуты назад, KGB сказал:

Ну а чем вариант от застойщика не устраивает? Вполне оптимально.

Я согласна, что он неплохой, но совершенно не получается расставить мебель.
Планировалось сделать спальню с выделенной зоной гардероба, тогда он получается проходным, мне кажется это не очень удобно.
Кухня-гостиная - нужно зонирование: рабочая зона, столовая и зона отдыха (желательно с диваном). Я конечно понимаю, что совершенно не специалист, но стол не влезает, либо оказывается в проходе.
Поэтому хочу рациональный взгляд со стороны

0-02-05-1ce7e23845fe8c00e9b0f8241aa48cd69bd5586a7fef6acd04ee5fd47e0b4714_full.jpg

Мне не нравится как дверь в с/у расположена. Дверь в дверь с кухней. Я бы ее перенес. Дверь в гостиную тоже не практично. 

На плане перепланировки на кухне неудачно расположен уголок - прямо возле варочной пов-ти (будет пачкаться жиром), или это мойка? Тогда будет забрызгиваться водой. Я бы угол кухни развернул по стене с/у, будет практичнее и места свободного на кухне будет больше. Но это мое имхо. Не знаю, что-то смотрю на расстановку мебели, и понимаю что мне все не нравится. Но жить то вам.

13 часа назад, Дмитрий 78 сказал:

Мне не нравится как дверь в с/у расположена. Дверь в дверь с кухней. Я бы ее перенес. Дверь в гостиную тоже не практично. 

На плане перепланировки на кухне неудачно расположен уголок - прямо возле варочной пов-ти (будет пачкаться жиром), или это мойка? Тогда будет забрызгиваться водой. Я бы угол кухни развернул по стене с/у, будет практичнее и места свободного на кухне будет больше. Но это мое имхо. Не знаю, что-то смотрю на расстановку мебели, и понимаю что мне все не нравится. Но жить то вам.

Именно поэтому я и обратилась за помощью, тк все не нравится. 
Уголок кухни - это был первоначальный вариант, потом я его пыталась развернуть буквой П, еще был вариант с островом, но в любом случае обеденный стол и диван не помещается.

Ищу идею от чего оттолкнуться
 

я бы выкусила верхний правый угол спальни, отдав его холлу, в левом верхнем углу тогда гардероб, и не ставила бы стенок между холлом и гостиной.

размеры спальни и гардероба сделала бы минимально достаточными, остальное холлу. кровать можно поставить изголовьем к правой стене, тогда ширина 3.60 не нужна, 3 метров хватит.

еще лучше конечно поменять местами спальню и гостиную, но коммуникации через всю спальню тянуть

гардеробная мамина/папина, вход из спальни(дверь в гардеробную раздвижная) Если нужна гардеробная для всех, то вход из коридора. Кухня/столовая/гостиная на 16-ти с половиной метрах это из разряда недостижимых хотелок. Все возможно только в очень компактном виде. Однако стол 90на140 см,диван 200-230 см встают на свои места неплохо. 

90.thumb.jpg.5af678e49848ec8678a877300181eea0.jpg

В малом с/у я бы отрезал наружный угол под углом 45 град. И в эту скошеной стену вставил дверь. И входить отопления всюду удобнее и холл больше. Кровать как Кваки сказала хочется поставить изголовьем к правой стене. Если дверь в ком. возле кухни сместить в сторону кухни, то слева можно сделать достаточно большую гардеробную. Кухню сделал бы углом вдоль с/у и правой стены. Стол бы поставил в левом углу у окна. С уголком действительно проблема, видимо, ограничился бы стульями. 

Пысы. Пока писал, Алеф выставил неплохой вариант. Но в этом случае холл превращается в коридор - это плохо.

10 минут назад, Alef сказал:

гардеробная мамина/папина, вход из спальни(дверь в гардеробную раздвижная) Если нужна гардеробная для всех, то вход из коридора. Кухня/столовая/гостиная на 16-ти с половиной метрах это из разряда недостижимых хотелок. Все возможно только в очень компактном виде. Однако стол 90на140 см,диван 200-230 см встают на свои места неплохо. 

90.thumb.jpg.5af678e49848ec8678a877300181eea0.jpg

Да, такой план по гардеробу тоже был, но расширить его в коридор не подумала, появляется лишний угол, но выглядит вроде неплохо.
По кухне, так  примерно и получается, ищу еще варианты, потому что при такой большой площади, место где проводишь больше всего времени получается через чур компактное. Может за счет переноса стен ситуацию изменить?

1 час назад, Дмитрий 78 сказал:

холл превращается в коридор - это плохо

холл -очень громкое слово  в данном случае. Я согласен на холл,когда это действительно эстетически оправданное помещение.Но в данном случае называть холлом помещение,куда выходят двери санузлов и комнат ,считаю неправильным.Это именно коридор,сидеть там на банкетке в окружении статУи и фикусов никто не будет. Ширина коридора при таком "захвате" в пользу гардеробной составит 1,5 метра,что более чем достаточно.

12 минуты назад, Дмитрий 78 сказал:

В малом с/у я бы отрезал наружный угол под углом 45 град. И в эту скошеной стену вставил дверь. И входить отопления всюду удобнее и холл больше. Кровать как Кваки сказала хочется поставить изголовьем к правой стене. Если дверь в ком. возле кухни сместить в сторону кухни, то слева можно сделать достаточно большую гардеробную. Кухню сделал бы углом вдоль с/у и правой стены. Стол бы поставил в левом углу у окна. С уголком действительно проблема, видимо, ограничился бы стульями. 

Пысы. Пока писал, Алеф выставил неплохой вариант. Но в этом случае холл превращается в коридор - это плохо.

А такое большое пространство холла жалко превращать в пустующий коридор. По кухне рассматривала вариант стола у окна. 
примерно так, появляется гостиная, пропадает гардероб

eb6058f0ff75264791819bb7d5b5de77.jpg

3 минуты назад, Alef сказал:

холл -очень громкое слово  в данном случае. Я согласен на холл,когда это действительно эстетически оправданное помещение.Но в данном случае называть холлом помещение,куда выходят двери санузлов и комнат ,считаю неправильным.Это именно коридор,сидеть там на банкетке в окружении статУи и фикусов никто не будет. Ширина коридора при таком "захвате" в пользу гардеробной составит 1,5 метра,что более чем достаточно.

"Холл" на планах кажется большим пространством которое жалко терять, но при расширении кухни в его пользу получается комната без окон - не лучший способ + отсутствие гардероба.
Вариант выложила ниже

решать конечно Вам,но в плане эстетики и комфорта Вы стремительно уноситесь в "-"  .Планировку так уж сильно перехитрить не удастся. Да и не нужно. Этот пресловутый "вид сверху" всех постоянно вводит в заблуждение- "вот мы сейчас подвигаем всё тут,тут срежем,тут у нас кроватка- и будет нам счастье" .  НЕт.Так это не работает. Вместо гостиной получаете большой проходной коридор с диваном , телеком и житейскими "радостями" в виде туалетов ,которые не где-то там далеко,а в полутора метрах от сидящих в "гостиной".

Вот,можно от спальни "отломить" 2 кв м в пользу гостиной.Немного,но визуальное восприятие пространства здорово изменится в лучшую сторону.

90_2.thumb.jpg.df9be5801ebd892d7afc54de08606526.jpg

10 минут назад, Alef сказал:

Вот,можно от спальни "отломить" 2 кв м в пользу гостиной.Немного,но визуальное восприятие пространства здорово изменится в лучшую сторону.

Визуально стало хорошо. 
Какая оптимальная ширина коридора? не получиться что он состоит из углов и узких проходов?

я выше написал ,ширина при таком щедром расположении гардеробной составит 1,5 метра . Просто походите по имеющемуся коридору, замерьте ширину, почувствуйте как оно вообще...Больше никаких радикальных перемен я и не предлагал.Вход в спальню становится более интимным,по моему скромному мнению,это только в плюс ,Собственно,больше я ничего и не двигал никуда.

Как уже выше отметили,изначальная планировка очень даже неплохая,квартира логичная и имеющая хороший потенциал в совершенствовании. Главное - не увлекаться ;)

10 часов назад, Natalia сказал:

получается комната без окон

а мне очень понравился этот ваш вариант. если в комнате преимущественно смотреть телек, то отсутствие окон только в плюс.

двери туалетов - не проблема когда все свои. а гостей можно посадить в столовую, около окна, там туалетов нет.

а что если компактную спальню переместить на место столовой? грубо сюда

eb6058f0ff75264791819bb7d5b5de77.jpg.ac8640888c9fe31637eb0410f286b1ef.jpg.6bca3dec35261a88cfa92cfda49d7784.jpg

аппендикс-кухня, в комнате появляется свет и выход на балкон

1 час назад, kvaky сказал:

а что если компактную спальню переместить на место столовой? грубо сюда

задумалась об этом варианте, хорошая идея, но думаю тогда надо рабочую зону кухни переносить в коридор. Интересно, возможно ли такое согласовать

да почему в коридор? какие получаются размеры апендикса?

в коридор можно вынести холодильник и обеденный стол

Для публикации сообщений создайте учётную запись или авторизуйтесь

Вы должны быть зарегистрированным пользователем, чтобы оставить комментарий

Создать учетную запись

Зарегистрируйтесь в нашем сообществе.

Зарегистрироваться

Войти

Уже есть аккаунт? Войти в систему.

Войти

Или войти с помощью одного из сервисов



  • Наши рекомендации

    • Подходы к ремонту старых домов в России
      В России сотни тысяч старых домов, многие из которых являются не только свидетельством исторического наследия, но и отражением уникальной культуры и традиций страны. Эти дома, будь то деревянные избы или старинные каменные постройки, сохраняют в себе дух времени и рассказывают историю поколений.

      • 0 ответов
    • Как построить теплый дом, не тратя лишних денег
      Строительство гостевого дома решил выделить в отдельную тему, так будет меньше путаницы.


        • Спасибо
        • Нравится
      • 256 ответов
    • Аккумуляторные пилы  SCW и  SCM  22-A
      После того как провёл тесты, приступил к самому главному. Поменять диски местами, и проверить, как инструмент на это отреагирует, ведь они внешнее и походу внутренне практически одинаковые, пила по дереву конечно более навороченее, есть настройки угла наклона и можно на шину посадить через адаптер.

      • 4 ответа
    • Вторая жизнь дивана: искусство ремонта мягкой мебели своими руками
      В эпоху беспрерывного потребления и стремления к новизне, ремонт старой мягкой мебели своими руками приобретает не просто практическое, но и глубоко философское значение. Это действие как знак уважения к труду мастеров, которые вложили свое мастерство в создание диванов, кресел и пуфов, и как воплощение идеи устойчивого потребления. С каждым возвращенным к жизни предметом мебели, мы не только сохраняем историю и уникальность каждого изделия, но и противостоим бездумному обновлению интерьера за счет экологии и рационального использования ресурсов.

        • Нравится
      • 0 ответов
    • Кажись всё или строительный пылесос с тройной мультициклонной ступенью очистки
      Кажись всё или строительный пылесос с тройной мультициклонной ступенью очистки

        • Нравится
      • 16 ответов
    • Люк для кошек своими руками
      Разумеется давно придуманы и продаются специальные лючки для кошек, которые можно врезать в дверь, но мы ведь не ищем легких путей . Да и по зоомагазинам я не хожу, а "гугление" показало, что такие люки для кошек стоят относительно не дешево. В то же время под рукой были два "копеечных" сантехнических пластиковых лючка для ГКЛ. Все что оставалось, так это обломать фиксаторы крышек, что бы они открывались в обе стороны, ровно выпилить отверстие в двери, да вклеить симметрично эти лючки.

      То, что получилось видно на фото. Разумеется это не для тех, у кого "дизайнерский ремонт", но для обыкновенной квартиры вполне подходит. Недостатков не замечено, животных и людей всё устраивает .


      Реакцию форумчан на этот люк можно узнать в этой теме https://homemasters.ru/...me/?p=330637

        • Ого
      • 6 ответов
    • Газовые котлы: эффективное, экономичное и экологичное решение для отопления вашего дома
      В современном мире, где комфорт и устойчивость стали ключевыми аспектами повседневной жизни, выбор правильного источника отопления дома становится особенно актуальным. Газовые котлы, сочетая в себе преимущества эффективности, экономичности и экологичности, представляют собой одно из наиболее популярных решений для обеспечения комфортной температуры в жилых и коммерческих помещениях.

      • 0 ответов
    • Дома из сруба: идеальное сочетание уюта и прочности.
      Строительство собственного дома является важной вехой в жизни любого человека, поскольку оно знаменует собой важное событие. Выбор строительных материалов имеет огромное значение для создания теплого и функционального жилища. На протяжении всей древней истории древесина была распространенным материалом для строительства домов, что отразилось на различных культурах мира.

      • 0 ответов
×
×
  • Создать...

Важная информация

Мы разместили cookie-файлы на ваше устройство, чтобы помочь сделать этот сайт лучше. Вы можете изменить свои настройки cookie-файлов, или продолжить без изменения настроек.