Перейти к содержанию
Форумы о ремонте и строительстве

Как положить новую электропроводку

Оценить эту тему:


pazl78

Рекомендуемые сообщения

Опубликовано (изменено)

всем здравствуйте.я на вашем форуме первый день.прочитал почти все темы по электрике(голова кругом),но так ничего не понял(ну почти ничего,кое что отложилось).итак по порядку.сейчас живу в квартире,в которой раньше жила бабуля(лет 40-50),ремонта электрики,как я понял,небыло.хотелось бы проложить новую проводку от щитка.post-35200-1258397560_thumb.jpg это собственно сам щиток.подскажите,есть ли тут заземление(если можно понять по фото)на что поменять эти допотопные автоматы,сколько ставить автоматов(ну на стиралку отдельный это понятно).или свои автоматы завести в квартиру в отделььный ящик(потому как в этом места для еще 1-2 места нет)post-35200-1258397577_thumb.jpg.и по проводам подсскажите плиз маркировку(ВВГ 3-х жильный 2,5 квадрата пойдет на розетки и на стиралку,вернее есть такая маркировка или я чего то напутал?).заранее спасибо.остальные вопросы будут позже(если матом меня не покроете за такие вопросы).и еще чем отличаются вот эти кабели?какой брать для проводки в квартире?ВВГ 3х2.5 19,38 18,53ВВГ 3х2.5 1кВ 27,33 26,13ВВГ 3х2.5+0 31,31 29,94ВВГ 3х2.5+0 1кВ 32,83 31,39

post-35200-1258397585_thumb.jpg

Изменено пользователем pazl78

я на вашем форуме первый день

учмтывая это и вот это

прочитал почти все темы по электрике

вы титан - я за 3 года еще не все осилил :)

подскажите,есть ли тут заземление

на фото не вижу - я изначально - плита газ?

на что поменять эти допотопные автоматы,сколько ставить

зависит от того что хотите в итоге

чем отличаются вот эти кабели?какой брать для проводки в квартире?ВВГ 3х2.5 19,38 18,53ВВГ 3х2.5 1кВ 27,33 26,13ВВГ 3х2.5+0 31,31 29,94ВВГ 3х2.5+0 1кВ 32,83 31,39

первые 2 - трехпроводные, вторые четырёх, где приписка 1кВ изоляция усиленная на напряжение в 1000 вольт (их откидываем - зачем переплачивать)итог первая строчка по 19,38 который

ну на счет всех тем по электрике это я заггнул(вернее неправильно высказался)прочитал те,которые подходят по названию темы)))).на счет плиты-газ.что хочу:пару розеток за холодильник(собственно для холодильника и микроволновки.еще пару тройку для пароварки,кофеварки и телека.одну розетку,как и была,в корридоре с выключателем света в ванной и кухне.ну и в комнату для компа,телека,кинотеатра,увлажнителя,муз.центра,пылесоса.просто как сделать:одну розетку в стене и от нее тройник удлинитель?по безопастности как лучше?

Проводка внутриквартирная, я так понимаю, алюминий?

Да она и в щитке алюминиевая, а в квартире - и подавно.

я подозреваю что алюминиевая

ну тогда дело за малым - осталось решить готовы ли вы проводку менять или оставите существующую, добавив что то?

(изменено)

тут подсчиитал,мне надо 70 метров силового кабеля в однокомнатную квартиру :o :o :oконечно менять буду,а то стиралку включаю через удлинитель в ту розетку которая в корридоре у ванны и провод греется :huh: правда стиралка покаа ВЯТКА автомат на 5 квт,и от пароварки греется тоже,а про проточный нагреватель включенный во время профилактических работ летом я уж промолчу))))уже пару тройников сгорело.стремно становитьсятут у электрика поинтересовался сколько будет стоить провести розетку для стиралки и замена автоматов в щитке без разводки в квартиру,он сказал 3500 с моими материалом.как думаете перебор или недобор?а чтобы с проводкой кабеля так это надо сказать ему сейчас где,сколько,чего будет включено и в какие розетки.а я пока не определился.ну розеток 10 будет точно а где пока не ясно.поэтому и хочу делать сам,без электрика(с помощью отца)и сложно ли поменять самому автоматы в щитке.чисто теоретически я думаю что нет(открутить и прикрутить на место я думаю справлюсь))))ИМХО3500 конечно деньги не большие,но если можно самому,соблюдая все меры предосторожности(перчатки,резиновая обувь и т.д (смешно наверно буду выглядеть в таком обмундировании)) то можно и мороженного себе накупить на спасеные деньги)))

Изменено пользователем pazl78

в идеале хотелось бы автоматы себе в квартиру завести,а счетчик можно и там оставить.возможно такое(правда тут без электрика не обойтись)или кого-нибудь из форумчан попросить кто в Москве живет.ведь такое навернор тоже возможно)))?

стиралка покаа ВЯТКА автомат на 5 квт

Рисковый вы парень... B) 2,5 мм2 алюминия да по 7 ампер на каждый 1 мм2 да 220 вольт - это в лучшем случае 4 кВт. А еще и провода небось крошиться начали, и скрутки обугливаются понемногу, и винтики в розетках ослабли...

ну на счет обугленных проводов я не знаю,не рабирал.а винтики наверно ослабли,потому как включаешь и там немного искрит,из за плохого контакта я так полагаю)))

  • 2 месяца спустя...
(изменено)

наконец то вспомнил пароль))))).вопрос выше все еще в силе.раюоты с электрикой еще не производились.сегодня-завтра хотим с супругой скататься за материалом.подскажите,с проводом вроде подсказали ВВГ 3х2.5.а вот на счет автоматов я вообще ничего не понимаю.и такой провод пускать от счетчика до автоматов(ящик с автоматами хотим завести в квартиру) или можно этот провод пустить на всю разводку ко всем розеткам(не только к стиралке).и еще.приходил электрик и сказал что нужен провод 3*1,5 к стиралке и 2*1,5 к розеткам. так розетки получаются без заземления-зануления.а я хотел сделать с заземлением-занулением.это он так сказал,потому что ему так легче или так и надо?

Изменено пользователем pazl78
Аникей Сковородкин

сказал что нужен провод 3*1,5 к стиралке и 2*1,5 к розеткам. так розетки получаются без заземления-зануления.а я хотел сделать с заземлением-занулением.это он так сказал,потому что ему так легче или так и надо?

Он так сказал, потому что, как и я, не видит надобности занулять комнатные розетки.Раз собрался все менять, то лучше ИМХО внести счетчик в хату, какой-нить красивый пластиковый щиточек, а то мало ли там что в подъезде делается. Иначе провод, идущий к счетчику будет органичителем по нагрузке. А так можно медь 3х4мм2 сразу с фазного и нулевого провода снять (через яйца, там же алюминий наверняка). к стиралке возьми всё ж 3х2,5мм2 полторашка для 5кВт маловато будет.3500 руб. за объявленный работы - крута! я такое за 2000 сделаю, а друганам за 1500. :)

наконец то вспомнил пароль))))).вопрос выше все еще в силе.раюоты с электрикой еще не производились.сегодня-завтра хотим с супругой скататься за материалом.подскажите,с проводом вроде подсказали ВВГ 3х2.5.а вот на счет автоматов я вообще ничего не понимаю.и такой провод пускать от счетчика до автоматов(ящик с автоматами хотим завести в квартиру) или можно этот провод пустить на всю разводку ко всем розеткам(не только к стиралке).и еще.приходил электрик и сказал что нужен провод 3*1,5 к стиралке и 2*1,5 к розеткам. так розетки получаются без заземления-зануления.а я хотел сделать с заземлением-занулением.это он так сказал,потому что ему так легче или так и надо?

С автоматами все не так сложно: по возможности обходите стороны "бренды" ИЭК, номиналы автоматов - на освещение 10 или 13А, на розетки - 16А, на стиралку, водогрей и электроплиту - 25 или 32 (естественно, что что в этом случае кабель надо брать не 3*2,5, а толще). Насчет УЗО наверняка уже читали. От счетчика до автоматов сечение должно быть не меньше того, которое приходит от общего стояка на счетчик. У электрика поинтересуйтесь датой его последней переквалификации, так как уже давно вся электрика должна прокладываться с заземлением :) Не уверен, что ему легче работать с двужильным кабелем, да и ему выгоднее подороже материалы использовать - оплата-то поди идет процентом от стоимости материалов? :)А вот насчет 3*1,5 к стиралке и 2*1,5 к розеткам - это он смело заявил. Глупо, но смело. Особенно 3*1,5. Не менее 2,5 на розетки.

да и ему выгоднее подороже материалы использовать - оплата-то поди идет процентом от стоимости материалов

С чего это вдруг. Чем хуже (дешевле) материал, тем дороже работа. Всегда накидываю за долботню с навозом.

и еще один вопрос.что такое зануление?зануление идет куда?все-равно надо штырь в землю забивать?или зануление идет как то на автомат?

что такое зануление?зануление идет куда?

как куда, из слова понятно что на ноль, только гусей не гони - плита какая в квартире???
(изменено)
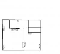
post-35200-1266177077_thumb.jpg это собственно что мне надо.1,2-муз.центр,ноут.3,4-ночник,пылесос5,6,7,8,9,-комп,светильник,колонки,монитор,принтер(возможны варианты,но пароварку сюда включать не буду)10-на всякий случай(максимум пылесос)11,12-стиралка,телевизор13,14,15-холодильник,микроволновка,и одна на что-нибудь(может придется сюда воткнуть пароварку)16,17,18-кофеварка,кофемолка,пароварка или миксер19,20,21-телевизор,телефон,видикхочу 1,2,3,4,19,20,21 посадить на автомат 5,6,7,8,9,10 посадить второй автомат 11 стиралку на третий автомат 12,13,14,15 на четвертый автомат 16,17,18 на пятый автоматкак вам такой расклад?корректировки принимаются.если все нормально,то попрошу расписать мощность автоматов,узо,и всего что надо.провода 3*2,5 на все розетки. автоматы в квартире,счетчик в общем корридоре.от автоматов до счетчика провод сечением 4мм2.про плиту писал выше.плита газовая Изменено пользователем pazl78

про плиту писал выше.плита газовая

да мне спросить проще чем заново всё каждый раз перечитыватьтак как газовая пока о земле забываем, провод тянем но не подключаем

С чего это вдруг. Чем хуже (дешевле) материал, тем дороже работа. Всегда накидываю за долботню с навозом.

Я просто предположил, по аналогии с гастами у нас на даче, что за работу берут процент от стоимости материала. За забор запросили 30 или 40% стоимости сетки, цемента, щебенки и столбов. Может электрики так же поступают. А лишних трудностей с работой 2*1,5 вместо 3*2,5 не вижу :) Одно удовольствие :)

Для публикации сообщений создайте учётную запись или авторизуйтесь

Вы должны быть зарегистрированным пользователем, чтобы оставить комментарий

Создать учетную запись

Зарегистрируйтесь в нашем сообществе.

Зарегистрироваться

Войти

Уже есть аккаунт? Войти в систему.

Войти

Или войти с помощью одного из сервисов



  • Наши рекомендации

    • Люк для кошек своими руками
      Разумеется давно придуманы и продаются специальные лючки для кошек, которые можно врезать в дверь, но мы ведь не ищем легких путей . Да и по зоомагазинам я не хожу, а "гугление" показало, что такие люки для кошек стоят относительно не дешево. В то же время под рукой были два "копеечных" сантехнических пластиковых лючка для ГКЛ. Все что оставалось, так это обломать фиксаторы крышек, что бы они открывались в обе стороны, ровно выпилить отверстие в двери, да вклеить симметрично эти лючки.

      То, что получилось видно на фото. Разумеется это не для тех, у кого "дизайнерский ремонт", но для обыкновенной квартиры вполне подходит. Недостатков не замечено, животных и людей всё устраивает .


      Реакцию форумчан на этот люк можно узнать в этой теме https://homemasters.ru/...me/?p=330637

        • Ого
      • 6 ответов
    • Подходы к ремонту старых домов в России
      В России сотни тысяч старых домов, многие из которых являются не только свидетельством исторического наследия, но и отражением уникальной культуры и традиций страны. Эти дома, будь то деревянные избы или старинные каменные постройки, сохраняют в себе дух времени и рассказывают историю поколений.

      • 0 ответов
    • Газовые котлы: эффективное, экономичное и экологичное решение для отопления вашего дома
      В современном мире, где комфорт и устойчивость стали ключевыми аспектами повседневной жизни, выбор правильного источника отопления дома становится особенно актуальным. Газовые котлы, сочетая в себе преимущества эффективности, экономичности и экологичности, представляют собой одно из наиболее популярных решений для обеспечения комфортной температуры в жилых и коммерческих помещениях.

      • 0 ответов
    • Вторая жизнь дивана: искусство ремонта мягкой мебели своими руками
      В эпоху беспрерывного потребления и стремления к новизне, ремонт старой мягкой мебели своими руками приобретает не просто практическое, но и глубоко философское значение. Это действие как знак уважения к труду мастеров, которые вложили свое мастерство в создание диванов, кресел и пуфов, и как воплощение идеи устойчивого потребления. С каждым возвращенным к жизни предметом мебели, мы не только сохраняем историю и уникальность каждого изделия, но и противостоим бездумному обновлению интерьера за счет экологии и рационального использования ресурсов.

        • Нравится
      • 0 ответов
    • Как построить теплый дом, не тратя лишних денег
      Строительство гостевого дома решил выделить в отдельную тему, так будет меньше путаницы.


        • Спасибо
        • Нравится
      • 262 ответа
    • Дома из сруба: идеальное сочетание уюта и прочности.
      Строительство собственного дома является важной вехой в жизни любого человека, поскольку оно знаменует собой важное событие. Выбор строительных материалов имеет огромное значение для создания теплого и функционального жилища. На протяжении всей древней истории древесина была распространенным материалом для строительства домов, что отразилось на различных культурах мира.

      • 0 ответов
    • Кажись всё или строительный пылесос с тройной мультициклонной ступенью очистки
      Кажись всё или строительный пылесос с тройной мультициклонной ступенью очистки

        • Нравится
      • 16 ответов
    • Аккумуляторные пилы  SCW и  SCM  22-A
      После того как провёл тесты, приступил к самому главному. Поменять диски местами, и проверить, как инструмент на это отреагирует, ведь они внешнее и походу внутренне практически одинаковые, пила по дереву конечно более навороченее, есть настройки угла наклона и можно на шину посадить через адаптер.

      • 4 ответа
×
×
  • Создать...

Важная информация

Мы разместили cookie-файлы на ваше устройство, чтобы помочь сделать этот сайт лучше. Вы можете изменить свои настройки cookie-файлов, или продолжить без изменения настроек.