Перейти к содержанию
Форумы о ремонте и строительстве

Перепланировка 2 комнатной квартиры

Оценить эту тему:


Piven_ruslan

Рекомендуемые сообщения

Опубликовано

Хочу сделать перепланировку квартирыЦели:1 сделать побольше кухню2 оставить 2 не походных комнаты детская и комната родителей3 в ванной оставить ванную и мойку и туалетМогу перенести кухню в соседнюю комнату, :D так даже будет лучше потому что эта комната угловая и холодная как спальня не очень :angry: . Хотя окна не меняли может и нормально будет ;) .Выложу первый рисунок как есть, второй как хочу сделать. Критикуйте, ругайте, предлагайте. Жду ответов. :rolleyes:

post-37845-1264711903_thumb.png

post-37845-1264712054_thumb.png

Если официально делать - хрен вам разрешат перенести кухню (особенно если плита газовая). Так что в эту сторону думайте только шепотом, а лучше вообще на этом нюансе поставить крест

Piven_ruslan

Плита електрическая, только вывод вытяжки хочу сделать в стене прямо наулицу, или не стоит и морочится а проложить плоский воздухоканал в подвесном потолке

Плита електрическая, только вывод вытяжки хочу сделать в стене прямо наулицу, или не стоит и морочится а проложить плоский воздухоканал в подвесном потолке

Все равно скорее всего не разрешат. Равно как и долбить стену на улицу.

А про слив из мойки в канализацию Вы подумали ,на плане там довольно приличное расстояние надо учитывать уклон, а он на таком расстоянии получится мягко говоря некислый.Хотя вариант с сани-насосом (помоему так его называют) имеет право на жизнь если нормально "переносит" горячую воду и жир ,правда лично я в жизни никогда не сталкивался с таким насосом ,насколько оправдано сказать не могу.

Piven_ruslan

Про канализацию думал. Уклон нужен 2-3см на метр погонный. Растояние там 11,46 м, 11,46м * 3см= 34,38 см, помоему нормально. Но есть много НО - Вытяжку нада вести в подвесном потолке, а при етом уменшается высота кухни.- Получается проходная комнато что не желательно- Даже представить скбе не могу как будет батарея под окном, что она там будет греть ящики с посудой :blink::huh:

Piven_ruslan

Можна и отказатся от такой планировки, в пользу такой, и как всегда проблемы:- Обведено красным кружком то что не нравится- Неудачно стоит холодильник- Проход с коридора в правую угловую комнату 444 мм МАЛО!!!

post-37845-1264791430_thumb.png

Про канализацию думал. Уклон нужен 2-3см на метр погонный. Растояние там 11,46 м, 11,46м * 3см= 34,38 см, помоему нормально.

Пардон не совсем понял ,а каким образом вести собираетесь ну по стенам понятно ,а вот через коридор и ванную ведь в полу же, а там с уклоном как? Стяжку неимоверной толщины ? Причём во всей квартире? :blink:А по последней схемке непонятно как попасть в гостинную?

- Даже представить скбе не могу как будет батарея под окном, что она там будет греть ящики с посудой :blink::huh:

А сдесь можно поставить решётки чтобы холодный воздух снизу проходил к батарее ,атеплый воздух проходил на верх ,а батарею теплоизолировать от мебели(закрыть) с сделать как бы колорифер с естественной конвекцией ( где то на форуме подобное решение вроде видел)
Piven_ruslan
(изменено)

Можна по стенке пустить с постоянным уклоном с кухни в проходную комнату потом в ваную. Но я все ближе к мысли отказатся от такой планировки. Очень сложно делать, нужно все переносить канализацию, водопровод, вентиляцию. силовую розытку для плиты (но это не проблема). вентиляцыю только в подвесном потолке делать нада плюс хочу сделать в кухне теплый пол ето уровеньнада подымать 3-8 см получится очент низко. Пока все решал открылось несколько проблем. Купили бойлер не знаю как подключить шлангами или расчитать трубы под пайку и через американку скрутить. ИМХО шланги вроде проще но надежность намного меньше

Изменено пользователем Piven_ruslan
Piven_ruslan

Появилась новая идея B) , точнее не новая а модернизированная старая :D . Излагаю в графическом виде. В этом варианте вроде все устраивает только покажу завтра жене может и ей понравится. Интересно и Ваше мнение так что ругайте, хвалите, предлагайте, ...

post-37845-1264895193_thumb.jpg

(изменено)

На мой взгляд - перепланировка не плохая. Только мне кажется коридор в метр шириной ни к чему можно сделать и 80-90 см. а санузел пошире. И кстати такой санузел можно сделать раздельным если постараться между унитазом и раковиной воткнуть перегородку. А в спальне место от стены до тумбочку уходит под шкаф купе? Кстати подскажи прогу в которой планировку делал плиз.

Изменено пользователем Nenorma
Piven_ruslan
Програма Microsoft Office Visio 2007 на работе постоянно в ней рисуем, нолько не планы а схемы спязи, в Укртелекоме я работаю.
  • 4 недели спустя...

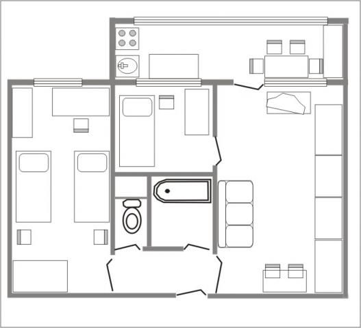
Имеется двушка, хрущевка с балконом 1,5х6 Обстановка в ней сейчас такая post-3882-1267017016_thumb.jpg Хочется перепланировать для комфорной жизни для двоих, с учетом в будущем для одного ребенка. У кого есть какие варианты с перепланированием помещением, знаю что здесь вариантов мало, но все таки если у кого есть опыт, был бы рад услышать перед предстоящим ремонтом. Пока что думаю над таким вариантом В нежилых помещениях хочется сделать плиткой, а в жилых ламинатом. двери сделать купэшные. post-3882-1267017297_thumb.jpg

- Вытяжку нада вести в подвесном потолке, а при етом уменшается высота кухни.

Сделайте короб вдоль одной стены и туда воздуховод и подсветку заодно, либо плоским пластиковым коробом 55*210мм

mmxdesign , ай, кухня на балконе - моя мечта :rolleyes: Как это вообще, удобно?

А насчет перепланировки: думаю, да, это ваш единственный и действительно неплохой вариант!

А насчет перепланировки: думаю, да, это ваш единственный и действительно неплохой вариант!

Только вот простенок между балконом и комнатой не стоит убирать + увеличенная нагрузка на балкон за счет плитки на полу, а я так понимаю, в этом и состоит перепланировка.
Piven_ruslan

1. Не нашел холодильника2. Не нравится как стоит диван, не удобно ходить на кухню, может его лучше в угол, телевизор на стенку напротив дивана и диван лучше не угловой а прямой3. Как будут отрываться двери в ванну и туалет одновременно?4. Когда ходить с большой спальни в гостиную будет вся грязь переноситься с ногами от входной двери, сам с таким коридором жил 12 лет.5. И может соединить ванну и туалет

Если стырить метры у ближней комнаты, можно поставить ровную стену правее, вход ближней комнаты сделать справа, кровать к другой стене, напротив повесить телик (или поставить на камод, если влезет). Дверь с кухни в смежную комнату - раздвижную, чтоб не нагромождать. Ванную выдвигаем, при желании можно замутить и раздельно. На стенку ванной вешаем жк панель, напротив стол, слева кухонный гарнитур.По хорошему, детская должна быть ближней комнатой, а родительская спальня примыкать к кухне

post-23066-1267867531_thumb.jpg

а в какой программе вы делаете эскиз квартиры?

Piven_ruslan

Читай форум там уже задавали этот вопрос. Програма Microsoft Office Visio 2007 на работе постоянно в ней рисуем, нолько не планы а схемы спязи, в Укртелекоме я работаю.

Если стырить метры у ближней комнаты, можно поставить ровную стену правее, вход ближней комнаты сделать справа, кровать к другой стене, напротив повесить телик (или поставить на камод, если влезет). Дверь с кухни в смежную комнату - раздвижную, чтоб не нагромождать. Ванную выдвигаем, при желании можно замутить и раздельно. На стенку ванной вешаем жк панель, напротив стол, слева кухонный гарнитур.По хорошему, детская должна быть ближней комнатой, а родительская спальня примыкать к кухне

Так получается, что я уменьшаю и вторую комнату, а мне не хочется ее уменьшать, да и ванную больше делать незачем. Не выгодный обмен выходит жилую площадь на не жилую, Вы мне возразите, что я делаю тоже самое увеличивая кухню за счет комнаты, но я могу возразить ведь на кухне собирается вся семья, беседует, принимает решения, принимает гостей, если их не много. Ну а если много, то можно и в гостиную комнату пойти, а она будет там, где сейчас спальня. Вот мое виденье перепланировки. Вставить рисунок не могу потому, что пишу с роботы а тут заблокирована передача файлов. Приду домой выложу новую перепланировку.

Для публикации сообщений создайте учётную запись или авторизуйтесь

Вы должны быть зарегистрированным пользователем, чтобы оставить комментарий

Создать учетную запись

Зарегистрируйтесь в нашем сообществе.

Зарегистрироваться

Войти

Уже есть аккаунт? Войти в систему.

Войти

Или войти с помощью одного из сервисов



  • Наши рекомендации

    • Кажись всё или строительный пылесос с тройной мультициклонной ступенью очистки
      Кажись всё или строительный пылесос с тройной мультициклонной ступенью очистки

        • Нравится
      • 16 ответов
    • Как построить теплый дом, не тратя лишних денег
      Строительство гостевого дома решил выделить в отдельную тему, так будет меньше путаницы.


        • Спасибо
        • Нравится
      • 259 ответов
    • Газовые котлы: эффективное, экономичное и экологичное решение для отопления вашего дома
      В современном мире, где комфорт и устойчивость стали ключевыми аспектами повседневной жизни, выбор правильного источника отопления дома становится особенно актуальным. Газовые котлы, сочетая в себе преимущества эффективности, экономичности и экологичности, представляют собой одно из наиболее популярных решений для обеспечения комфортной температуры в жилых и коммерческих помещениях.

      • 0 ответов
    • Люк для кошек своими руками
      Разумеется давно придуманы и продаются специальные лючки для кошек, которые можно врезать в дверь, но мы ведь не ищем легких путей . Да и по зоомагазинам я не хожу, а "гугление" показало, что такие люки для кошек стоят относительно не дешево. В то же время под рукой были два "копеечных" сантехнических пластиковых лючка для ГКЛ. Все что оставалось, так это обломать фиксаторы крышек, что бы они открывались в обе стороны, ровно выпилить отверстие в двери, да вклеить симметрично эти лючки.

      То, что получилось видно на фото. Разумеется это не для тех, у кого "дизайнерский ремонт", но для обыкновенной квартиры вполне подходит. Недостатков не замечено, животных и людей всё устраивает .


      Реакцию форумчан на этот люк можно узнать в этой теме https://homemasters.ru/...me/?p=330637

        • Ого
      • 6 ответов
    • Вторая жизнь дивана: искусство ремонта мягкой мебели своими руками
      В эпоху беспрерывного потребления и стремления к новизне, ремонт старой мягкой мебели своими руками приобретает не просто практическое, но и глубоко философское значение. Это действие как знак уважения к труду мастеров, которые вложили свое мастерство в создание диванов, кресел и пуфов, и как воплощение идеи устойчивого потребления. С каждым возвращенным к жизни предметом мебели, мы не только сохраняем историю и уникальность каждого изделия, но и противостоим бездумному обновлению интерьера за счет экологии и рационального использования ресурсов.

        • Нравится
      • 0 ответов
    • Аккумуляторные пилы  SCW и  SCM  22-A
      После того как провёл тесты, приступил к самому главному. Поменять диски местами, и проверить, как инструмент на это отреагирует, ведь они внешнее и походу внутренне практически одинаковые, пила по дереву конечно более навороченее, есть настройки угла наклона и можно на шину посадить через адаптер.

      • 4 ответа
    • Дома из сруба: идеальное сочетание уюта и прочности.
      Строительство собственного дома является важной вехой в жизни любого человека, поскольку оно знаменует собой важное событие. Выбор строительных материалов имеет огромное значение для создания теплого и функционального жилища. На протяжении всей древней истории древесина была распространенным материалом для строительства домов, что отразилось на различных культурах мира.

      • 0 ответов
    • Подходы к ремонту старых домов в России
      В России сотни тысяч старых домов, многие из которых являются не только свидетельством исторического наследия, но и отражением уникальной культуры и традиций страны. Эти дома, будь то деревянные избы или старинные каменные постройки, сохраняют в себе дух времени и рассказывают историю поколений.

      • 0 ответов
×
×
  • Создать...

Важная информация

Мы разместили cookie-файлы на ваше устройство, чтобы помочь сделать этот сайт лучше. Вы можете изменить свои настройки cookie-файлов, или продолжить без изменения настроек.