Перейти к содержанию
Форумы о ремонте и строительстве

Нужно толково распланировать мансарду.

Оценить эту тему:


Рекомендуемые сообщения

Alef, выкладываю ещё фоток вент. короба в туалете -

post-15106-1301928791_thumb.jpg

post-15106-1301928834_thumb.jpg

post-15106-1301928891_thumb.jpg

post-15106-1301928939_thumb.jpg

post-15106-1301928960_thumb.jpg

post-15106-1301928976_thumb.jpg

Крайняя труба моя. Я её буду наверх задирать. Для вентиляции этих санузлов. Так что короб можно будет сделать покороче. Не вижу как это поможет, но вдруг.
П.С. Не ругайся если поздно выложил :biggi: 

Alef, а может всё-таки снесём раковину в душевой? Она там не очень нужна, а вот гардеробную, если сделать стену напрямую от двери к бане, можно будет существенно увеличить.

а это пока тебе ,Bagis,должно быть виднее "как и что".Если на расположение сантехники не влияет,то какие проблемы?Там уже вопрос эстетики,как обыграть в отделке . Думайте пока на семейном совете,ищите,считайте.Я лишь показал как можно сделать.Более тщательно проработать всё это(а также детскую и спальню) смогу,но придётся немного подождать,мне всё-таки иногда ещё работать приходится :)  Так что пока думаем,делимся мыслями всякими... :) 
А насчёт раковины-решать вам,хозяевам.Не нужна-так не нужна...

Спасибо, Александр, за то что ты делаешь. Делай когда тебе удобно. Мне не горит. Главное с перегородкой между детской и кладовкой определились и пол в детской я могу собирать.

ну так вроде до следующих выходных "не горит" как я понял? Тебе же ещё надо электрику продумать и под полом бросить,разве не так?А для этого нужно с планировкой детской определиться,а потом уже пол...

Нет, в следующие выходные один день точно вылетает. Так что останется только один день. Точно пол не успею закрыть. Да и мне главное было местонахождение перегородки, а в детской я под полом провода пока прокину к ближнему окну, а уже окончательно буду разводить под полом второго уровня (понятно написал?). Так что как сможешь, так и нормально.П.С. А раковину сносим :)

Я тут на месте прикинул ширину кладовки. Даже с моими далеко не богатырскими плечами она мне показалась тесноватой. Сейчас по плану что-то около 850 мм. Может "украсть" у детской сантиметров 10? Что думаете?

Э нет, Вы предлагали за счёт детской, через кладовку, С/У расширить :)  Я точно помню. И это, по настойчивее надо быть :)  Я легко поддаюсь чужому влиянию :biggrin: Нет, правда, в такую узкую уже по длинным стенкам никаких полок будет не сделать. А их всегда не хватает. Тем-более, при такой маленькой длине, этой стены я и "уварую-то" 0.2-0.3 м2

 
А почему вход в детскую не сделать на стене перпендикулярно нынешнему, тогда бы она открывалась на стену смежную с лестницей.
Помещение между дущевой и детской можно несколько расширить, в сторону детской, сократив его длину.
А со стороны детской, в образовавшуюся нишу встроить шкаф.

И только потом, когда Вы с Alef, надавали мне по рукам, я изрёк это, наступая на горло своей песне.

 
Когда я говорил про расширение, то имел ввиду последовательность, при которой после расширения кладовки, будет возможность расширить смежное с ней помешение и так далее. Там стены позволяют.
Так что кладовка останется в своём размере, а её смешение позволит расширить туалет или душевую (как вам будет нужно)
Ну нет, так нет.

Каюсь, что смалодушничал.

Bagis,дело конечно хозяйское,но я ещё раз повторюсь,ни сантиметра бы не отдал от детской. Ты хочешь "украсть" эти сантиметры для чего? По стене пустить полки и иметь возможность передвигаться вдоль них? Понятное желание,но большая часть полезной площади кладовки будет "съедена" проходом...Я бы вовсе максимально ужал кладовку-вошёл,на стене эл.щит,перед тобой ........то,что перед тобой,видно на картинке. Три независимых друг от друга секции "карусели",диаметром около 85 см .У двери на стене я бы разместил маленькую складную стремянку .

post-11625-1302593927_thumb.jpg

Alef, кремЕнь.

Карусель, это то что доктор прописал.

И детская цела и доступ есть.

Снимаю шляпу.

Alef, кремЕнь.
Карусель, это то что доктор прописал.
И детская цела и доступ есть.
Снимаю шляпу.

Просто в "моём" проекте детской основная задача максимально освободить пространство для детей,причём не только по ширине-длине,но и по высоте!Дети вырастут,и очень быстро :)  ,и такой момент,как постоянное отслеживание "положения головы относительно потолка"( :)  ) нужно исключить непременно.И хоть я это преподнёс в шутливой форме,всё серьёзно на самом деле.Bagis,через пару дней -более подробно всё.

Ну всё, всё, больше на детскую не покушаюсь :laugh: 
Alef, смотрю кладовка и правда "сморщилась" :)  Что, при использовании карусели, очень даже оправдано. С нетерпением жду твоего видения детской.

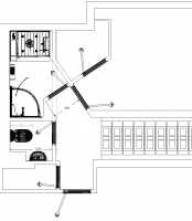
Alef, то есть кладовка примерно так получается? post-15106-1302982800_thumb.jpg А как, по твоему, использовать место за ней? Там, до стены к соседям, около метра получается. (Завтра хочу брус под эту перегородку ставить и пол зашивать.)
  • 3 недели спустя...

Я полы уже полностью разобрал во второй половине и выяснилось, то что балка проходит на расстоянии 1290 мм от той стены что за унитазом. А учитывая, то что полы в С/У и в остальных помещениях буду собирать отдельно и из разных "бутербродов" перегородки нужно чуток подвинуть, так чтоб на эту балку попали. По полу сегодня примерно досочки раскладывал, вроде всё получается, но есть сомнения. Во общем, Alef, если у тебя найдется нужное на это количество свободного времени, до следующих выходных, может сдвинешь стеночки :)  На твоих картинках дорисовал то как я это вижу -

post-15106-1304877219_thumb.jpg

post-15106-1304877233_thumb.jpg

Красным я двери изобразил.

Bagis,ты лучше на своём плане изобрази желаемое положение стен .1290-это от стены до "осевой" балки ? Ширину балки укажи .Дверь в кладовку на месте остаётся ? Двери открывающиеся наружу-не айс.........
 
1290-это от стены до "осевой" балки?

Нет, это уже до дальнего края. Балка 120. Саму балку я под профиль смогу "наростить" и пустить профиль по краю так чтоб помещения получились около 1250. Это нужно чтоб "мечта" влезла.

 
ты лучше на своём плане изобрази желаемое положение стен

Я отталкивался от твоих набросков. Вот что примерно получилось -post-15106-1304890573_thumb.jpgВ про 100 я толком углы выставить не могу, потому так корявенько получилось

 
Дверь в кладовку на месте остаётся?

Да, кладовку я больше не трогаю :)  Появилась идея поставить в неё дверь гармошку. Чтоб место не крала.

 
Двери открывающиеся наружу-не айс.........

При таком варианте внутрь им вроде как и некуда открываться. Та что в туалет, в открытом состоянии, по идее не должна перекрывать дверь в кладовку. Та что в душ, если и будет выступать за стенку, то совсем чуть-чуть.На твоих картинках всё выглядит гораздо нагляднее, потому и пристаю :)

Bagis,ты круто габариты унитаза "завернул",от стены вся "композиция с бачком " отстоит на 600-665(как на моём эскизе) мм обычно.Дверь (600мм) открывается внутрь очень даже успешно(посмотри в теме "умывальник в туалете"-там более чем реальный туалЭт ,да ещё с умывальничком на стенке,а у тебя так и вовсе проблем никаких со входом-выходом быть не должнО ) Поспрашивай у уважаемых сантехников здесь-уж они-то повидали санузлов :)  В душевой и вовсе не вижу проблем...Просто я давно уже привык (здесь) к тому что двери в санузлы открываются внутрь...
post-11625-1304943088_thumb.png
post-11625-1304943125_thumb.jpg

Да я шаблонный унитаз вставил :)  Там всего один был. Если двери влезают - вообще замечательно!
Смотрю на получившийся выступ кладовки, как-то он тут не в кассу. Надо наверное и кладовку "задвинуть". Но с этим я уже и сам справлюсь :) 
Alef, большое спасибо!

А можно немного критики?.Alef'у огромное спасибо, что руки дошли нарисовать все (мне вот жутко лениво), но есть очень много непродуманностей в этом проекте. Если никто на меня не обидится, то могу вечером расписать..

Для публикации сообщений создайте учётную запись или авторизуйтесь

Вы должны быть зарегистрированным пользователем, чтобы оставить комментарий

Создать учетную запись

Зарегистрируйтесь в нашем сообществе.

Зарегистрироваться

Войти

Уже есть аккаунт? Войти в систему.

Войти

Или войти с помощью одного из сервисов



  • Наши рекомендации

    • Люк для кошек своими руками
      Разумеется давно придуманы и продаются специальные лючки для кошек, которые можно врезать в дверь, но мы ведь не ищем легких путей . Да и по зоомагазинам я не хожу, а "гугление" показало, что такие люки для кошек стоят относительно не дешево. В то же время под рукой были два "копеечных" сантехнических пластиковых лючка для ГКЛ. Все что оставалось, так это обломать фиксаторы крышек, что бы они открывались в обе стороны, ровно выпилить отверстие в двери, да вклеить симметрично эти лючки.

      То, что получилось видно на фото. Разумеется это не для тех, у кого "дизайнерский ремонт", но для обыкновенной квартиры вполне подходит. Недостатков не замечено, животных и людей всё устраивает .


      Реакцию форумчан на этот люк можно узнать в этой теме https://homemasters.ru/...me/?p=330637

        • Ого
      • 6 ответов
    • Подходы к ремонту старых домов в России
      В России сотни тысяч старых домов, многие из которых являются не только свидетельством исторического наследия, но и отражением уникальной культуры и традиций страны. Эти дома, будь то деревянные избы или старинные каменные постройки, сохраняют в себе дух времени и рассказывают историю поколений.

      • 0 ответов
    • Как построить теплый дом, не тратя лишних денег
      Строительство гостевого дома решил выделить в отдельную тему, так будет меньше путаницы.


        • Спасибо
        • Нравится
      • 259 ответов
    • Кажись всё или строительный пылесос с тройной мультициклонной ступенью очистки
      Кажись всё или строительный пылесос с тройной мультициклонной ступенью очистки

        • Нравится
      • 16 ответов
    • Газовые котлы: эффективное, экономичное и экологичное решение для отопления вашего дома
      В современном мире, где комфорт и устойчивость стали ключевыми аспектами повседневной жизни, выбор правильного источника отопления дома становится особенно актуальным. Газовые котлы, сочетая в себе преимущества эффективности, экономичности и экологичности, представляют собой одно из наиболее популярных решений для обеспечения комфортной температуры в жилых и коммерческих помещениях.

      • 0 ответов
    • Дома из сруба: идеальное сочетание уюта и прочности.
      Строительство собственного дома является важной вехой в жизни любого человека, поскольку оно знаменует собой важное событие. Выбор строительных материалов имеет огромное значение для создания теплого и функционального жилища. На протяжении всей древней истории древесина была распространенным материалом для строительства домов, что отразилось на различных культурах мира.

      • 0 ответов
    • Вторая жизнь дивана: искусство ремонта мягкой мебели своими руками
      В эпоху беспрерывного потребления и стремления к новизне, ремонт старой мягкой мебели своими руками приобретает не просто практическое, но и глубоко философское значение. Это действие как знак уважения к труду мастеров, которые вложили свое мастерство в создание диванов, кресел и пуфов, и как воплощение идеи устойчивого потребления. С каждым возвращенным к жизни предметом мебели, мы не только сохраняем историю и уникальность каждого изделия, но и противостоим бездумному обновлению интерьера за счет экологии и рационального использования ресурсов.

        • Нравится
      • 0 ответов
    • Аккумуляторные пилы  SCW и  SCM  22-A
      После того как провёл тесты, приступил к самому главному. Поменять диски местами, и проверить, как инструмент на это отреагирует, ведь они внешнее и походу внутренне практически одинаковые, пила по дереву конечно более навороченее, есть настройки угла наклона и можно на шину посадить через адаптер.

      • 4 ответа
×
×
  • Создать...

Важная информация

Мы разместили cookie-файлы на ваше устройство, чтобы помочь сделать этот сайт лучше. Вы можете изменить свои настройки cookie-файлов, или продолжить без изменения настроек.