Перейти к содержанию
Форумы о ремонте и строительстве

установка раковины

Оценить эту тему:


Рекомендуемые сообщения

Опубликовано

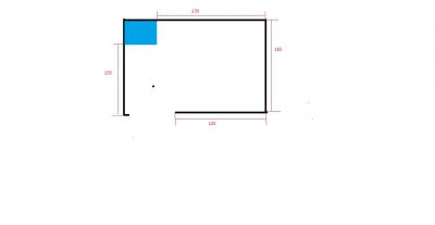
между кухней и ванной между стена вентиляционная шахта.  вопрос в следующем: можно ли установить на эту стену раковину со столешницей? и желательно под раковинку стиральную машинку (если это возможно)

может это и глупый вопрос, но совершенно нет места другого. санузел 3.5. квадрата всего

помогите пожалуйста с советиками

post-103924-0-98024300-1455047951_thumb.jpg

Померяйте рулеткой стены санузла и напишите где какая. Похоже если сдвинуть дверной проем ближе к ванне, то можно на стене смежной с кухней установить раковину

санузел 3.5. квадрата всего

Многие могли бы даже позавидовать )

ИМХО заметно удобнее в плане эффективного использования места угловые унитазы и раковины.

Унитазы всем хороши (кроме цены и процедуры подбора - выбор небольшой), раковины несколько неудобны в плане небольшого объёма (особо не поплескаешься).

Но "в лобовую" их тут не поставишь, либо перепланировку делать, либо короба-стенки городить.

чот горшок далековато утащил, прикинь сотку до стояка тащить :). Под ножками ванны не пролезет. А если ванна акриловая на рамке будет? вааще трубу не протянешь.

чот горшок далековато утащил
Некоторые умудряются чуть ли не в соседнюю комнату утаскивать. :)   Ну а в общем,места там достаточно,но надо от размеров хотелок отталкиваться.

Ну можно конечно и в другую комнату, поставить насос или сделать подиум :). Ну вобщем то проблема может быть в другом.

post-35955-0-44913300-1455201909_thumb.jpg

 в том месте где желтый кружочек, может срывать гидрозатвор ванны. Отрезок слива ванной 50 или 40-ой трубы короткий и пролетая с унитаза ведро воды по сотой трубе легко может выдернуть гидрозатвор с сифона. В общем то конечно это ведро уже растечется дойдя до той точки, из-за пройденного расстояния. Не факт что так получиться, но вероятность такая есть.

 Похоже если сдвинуть дверной проем ближе к ванне, то можно на стене смежной с кухней установить раковину

 Вот кстати,  можно и стиралку туда загнать.

ничего себе! всем большое спасибо! очень здорово, что вы мне помогатете)))))))) только вот страшно унитаз так далеко тащить, там никаких засоров не будет в трубе!?)))))) уж слишком долгий путь будет...)

а вообще значит реально поставить раковину у стены к кухне..? 

вообще супер. я прям очень рада!!!спасибо! вы мне очень помогли 


вот вопрос только в том как установить инсталляцию для подвесного унитаза в стояк!? странновато получится, или я просто не знаю возможностей труб

под раковину стиралку и установлю. 


наверное придется стояк заделать кирпичами или чем-то там что бы на нее уже крепить инсталляцию или как..не знаю даже. её ж надо к стене

ничего себе! всем большое спасибо! очень здорово, что вы мне помогатете)))))))) только вот страшно унитаз так далеко тащить, там никаких засоров не будет в трубе!?)))))) уж слишком долгий путь будет...)

вот вопрос только в том как установить инсталляцию для подвесного унитаза в стояк!? странновато получится, или я просто не знаю возможностей труб

под раковину стиралку и установлю. 

наверное придется стояк заделать кирпичами или чем-то там что бы на нее уже крепить инсталляцию или как..не знаю даже. её ж надо к стене

 Засоров в трубе от унитаза быть не должно при соблюдении уклонов и углов поворота, но проблема может быть в обходе ножек ванны, какая ванна будет? какой тип ножек или рамы? просто в углу придется ставить два угла по 45*, а это не мало места занимает на 110-й трубе.

Инсталяцию в районе стояка можно поставить, возможно надо сместить трубу холодную(?) выходящую из пола, возможно поколдовать с тройником в стояке канализации, возможно маленько подрубить угол ниши. Если уж настроились на инсталяцию, тогда надо там поточнее всё прикинуть, возможно надо взять инстал с более узким бачком, возможно влезет в нишу и тогда, о чудо, горшок будет торчать из плоскости стены, без всяких коробов. Инсталяцию не обязательно крепить прям в стену, её можно раскрепить хоть в метре от стены, с использованием отрезной шпильки.  Нишу можно зашить вровень со стеной с усилением под навеску болера.

 Стиралку под раковину :) Хм. Надо еще найти такие вещи :) На картинках красиво, а в реальности, либо не найти, либо ценник будет заоблачный.

п.с. что то не пойму у Вас стояк в нише находиться или просто по фоткам так кажется, и кста в схеме тоже нет размеров.

Для публикации сообщений создайте учётную запись или авторизуйтесь

Вы должны быть зарегистрированным пользователем, чтобы оставить комментарий

Создать учетную запись

Зарегистрируйтесь в нашем сообществе.

Зарегистрироваться

Войти

Уже есть аккаунт? Войти в систему.

Войти

Или войти с помощью одного из сервисов



  • Наши рекомендации

    • Подходы к ремонту старых домов в России
      В России сотни тысяч старых домов, многие из которых являются не только свидетельством исторического наследия, но и отражением уникальной культуры и традиций страны. Эти дома, будь то деревянные избы или старинные каменные постройки, сохраняют в себе дух времени и рассказывают историю поколений.

      • 0 ответов
    • Вторая жизнь дивана: искусство ремонта мягкой мебели своими руками
      В эпоху беспрерывного потребления и стремления к новизне, ремонт старой мягкой мебели своими руками приобретает не просто практическое, но и глубоко философское значение. Это действие как знак уважения к труду мастеров, которые вложили свое мастерство в создание диванов, кресел и пуфов, и как воплощение идеи устойчивого потребления. С каждым возвращенным к жизни предметом мебели, мы не только сохраняем историю и уникальность каждого изделия, но и противостоим бездумному обновлению интерьера за счет экологии и рационального использования ресурсов.

        • Нравится
      • 0 ответов
    • Аккумуляторные пилы  SCW и  SCM  22-A
      После того как провёл тесты, приступил к самому главному. Поменять диски местами, и проверить, как инструмент на это отреагирует, ведь они внешнее и походу внутренне практически одинаковые, пила по дереву конечно более навороченее, есть настройки угла наклона и можно на шину посадить через адаптер.

      • 4 ответа
    • Кажись всё или строительный пылесос с тройной мультициклонной ступенью очистки
      Кажись всё или строительный пылесос с тройной мультициклонной ступенью очистки

        • Нравится
      • 16 ответов
    • Как построить теплый дом, не тратя лишних денег
      Строительство гостевого дома решил выделить в отдельную тему, так будет меньше путаницы.


        • Спасибо
        • Нравится
      • 256 ответов
    • Люк для кошек своими руками
      Разумеется давно придуманы и продаются специальные лючки для кошек, которые можно врезать в дверь, но мы ведь не ищем легких путей . Да и по зоомагазинам я не хожу, а "гугление" показало, что такие люки для кошек стоят относительно не дешево. В то же время под рукой были два "копеечных" сантехнических пластиковых лючка для ГКЛ. Все что оставалось, так это обломать фиксаторы крышек, что бы они открывались в обе стороны, ровно выпилить отверстие в двери, да вклеить симметрично эти лючки.

      То, что получилось видно на фото. Разумеется это не для тех, у кого "дизайнерский ремонт", но для обыкновенной квартиры вполне подходит. Недостатков не замечено, животных и людей всё устраивает .


      Реакцию форумчан на этот люк можно узнать в этой теме https://homemasters.ru/...me/?p=330637

        • Ого
      • 6 ответов
    • Газовые котлы: эффективное, экономичное и экологичное решение для отопления вашего дома
      В современном мире, где комфорт и устойчивость стали ключевыми аспектами повседневной жизни, выбор правильного источника отопления дома становится особенно актуальным. Газовые котлы, сочетая в себе преимущества эффективности, экономичности и экологичности, представляют собой одно из наиболее популярных решений для обеспечения комфортной температуры в жилых и коммерческих помещениях.

      • 0 ответов
    • Дома из сруба: идеальное сочетание уюта и прочности.
      Строительство собственного дома является важной вехой в жизни любого человека, поскольку оно знаменует собой важное событие. Выбор строительных материалов имеет огромное значение для создания теплого и функционального жилища. На протяжении всей древней истории древесина была распространенным материалом для строительства домов, что отразилось на различных культурах мира.

      • 0 ответов
×
×
  • Создать...

Важная информация

Мы разместили cookie-файлы на ваше устройство, чтобы помочь сделать этот сайт лучше. Вы можете изменить свои настройки cookie-файлов, или продолжить без изменения настроек.