Перейти к содержанию
Форумы о ремонте и строительстве

Профессиональные консультации по дизайну интерьеров

Оценить эту тему:


Рекомендуемые сообщения

Добрый день!

Вопрос такой, квартира студия 35 кв.м,я сама придумываю расстановку мебели. 

Для экономии пространства кухню хочу именно прямую, не большую , так как большая не требуется, просто расположить вдоль стены.

НО на кухне есть вентиляционная шахта , получается одна часть кухни будет выступать.

Я не понимаю можно ли так делать и как это будет выглядеть 

Добрый день! Спасибо за ответ, на плане нарисовала как думаю расставить мебель, но есть сомнения по поводу кровати, фото кровати прилагаю, ее цвет в цвет потолка, точнее скатов крыши, также прилагаю фото интерьеров, которые симпатичны

post-109175-0-20497000-1493215938_thumb.jpg

post-109175-0-43802000-1493215952_thumb.jpg

post-109175-0-07785700-1493215977_thumb.png

post-109175-0-72550700-1493216004_thumb.png

post-109175-0-01160300-1493216027_thumb.png

post-109175-0-26401900-1493216048_thumb.png

  • 3 недели спустя...
Гость

Подскажите, пожалуйста, как сделать раскладку плитки. Есть проект с расстановкой мебели, но плитку хочу другую положить- коричнево-бежевую Niki Paradiz. Есть два варианта, но оба мне не очень нравятся. С горизонтальной раскладкой слишком банальный. С вертикальной темноватый получился. 

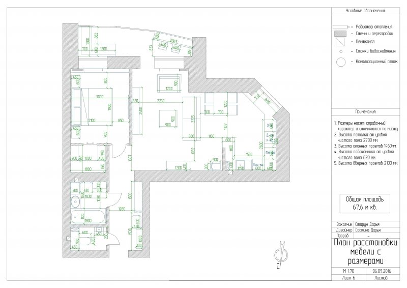
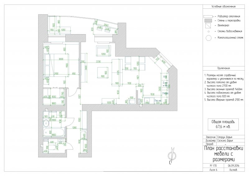
6 План расстановки мебели с размерами.jpg

Ванна 4 Вид 1.jpg

Ванна 4 Вид 2.jpg

Ванна 4 Вид 3.jpg

Ванная 1.jpg

Ванная 3.jpg

Ванная 3,1.jpg

Ванная 2,2.jpg

Гость
(изменено)

Владимир, подскажите как правильно сделать раскладку плитки. Хотелось бы вертикальную раскаладку, но в нашем варианте получается темновато. 

Ванная 1.jpg

Ванная 3.jpg

Ванная 2,2.jpg

Ванная 3,1.jpg

6 План расстановки мебели с размерами.jpg

Ванна 4 Вид 1.jpg

Ванна 4 Вид 2.jpg

Ванна 4 Вид 3.jpg

Изменено пользователем Волжана
  • 3 недели спустя...
В 14.05.2017 в 16:40, Vladimir Lamfadel сказал:

вам нужно спросить у своего дизайнера

Так вы вроде же даете советы по дизайну? Или только для тех, кто еще не нашел дизайнера?

Если вы работаете со специалистом, которому платите деньги - вопросы нужно задавать ему. Если вы недовольны работой нанятого человека и прервали все финансовые отношения - добро пожаловать!

Работы коллег, находящиеся в процессе, не подлежат обсуждению без их согласия.

  • 3 недели спустя...
В 05.06.2017 в 15:09, Vladimir Lamfadel сказал:

Работы коллег, находящиеся в процессе, не подлежат обсуждению без их согласия.

У вас прямо врачебная этика ... Да и кто согласится, чтобы его работу обсуждали, ведь везде, особенно в дизайне, всегда есть что покритиковать.

Пользователи форума хотят получить бесплатный профессиональный совет. :)

Все правильно. Пользователи, которые наняли дизайнера, уже получили профессиональные советы. Получили советы от специалиста, который днями и ночами вникал в их пожелания, изучал и анализировал предпочтения, прорабатывал варианты… как не ему лучше знать что хочет клиент? Не так ли? Правило "со стороны виднее" тут не работает"… ну или очень редко…

Полностью поддерживаю коллегу! Если вы уже работаете с дизайнером, то вам лучше с ним обговорить все нюансы. Возможно, вы что-то не донесли до него или он не понял ваши предпочтения. 

  • 2 недели спустя...

Доброго времени суток! Прошу помогите с цветовым решением для кухни. Всю голову сломала)) стиль минимализм. Не могу понять как оформить стены, прилегающие к кухне и определиться с цветовым решением. Цвета, которые хочу видеть в кухне: чёрный, дерево, белый, металлик (можно). Хочется, чтобы чёрный присутствовал на фасадах или пенала под встроенный холодильник и духовку или по всем фасадам или наоборот был по нижним фасадам, а пенал под дерево)). В зависимости от этого, стены.. толи белые, толи под дерево, толи с элементами металл мозаики. Дело в том, что это кухня -гостиная на противоположной стороне будет телевизор и камин. Хочется одну из стен отделать ламинатом. Так вот надо, чтобы все это сочеталось, чтобы цвета из кухни было несложно перенести в часть гостиной. Кухня без верхних шкафов по одной стороне и не понятно: делать фон до потолка или до вытяжки или до куда??)) на картинке форма кухни примерно такая, расположение ящичков немного другое. Хочется, чтобы все помещение было светлое и стильное, но при этом присутствовал чёрный цвет. Подумываю о деревянной столешнице.. на картинках то, что нравится, только не нравится, когда слишком темно, тёмные стены -не мой вариант, наверно. помогите, пожалуйста, советом)

IMG_0685.JPG

5 часов назад, PolinaU сказал:

Доброго времени суток! Прошу помогите с цветовым решением для кухни. Всю голову сломала)) стиль минимализм. Не могу понять как оформить стены, прилегающие к кухне и определиться с цветовым решением. 

Добрый день!

Все очень просто. В стиле минимализм стены не нуждаются в оформлении. Просто красите белой краской.

Ламинат не применяется в данном стиле. На стене можно разместить натуральную доску.

Над кухней надо работать. Фасады неправильно разбиты ящиками. Нужно приводить все в единую линию. Ручки встроенные.

  • 5 недель спустя...

Добрый день, Владимир.

Планирую кухню в стиле жёсткого минимализма с двумя столами - для готовки и  для еды, но жена хочет, чтобы было ещё и уютно. Очень нравится сочетание белого цвета и натурального дерева. Но вопрос в другом. Посоветуйте, что можно сделать с нишей 880 на 255 мм.

Заранее спасибо.

14-08-2017 22-16-23.png

520x0resize_interior73766_31_1447077504.jpg

520x0resize_interior77427_50_1450184482.jpg

Добрый день!

во-первых термина "жесткий минимализм" не существует. Минимализм либо есть, либо его нет.

во-вторых ваши примеры к минимализму не имеют даже отдаленного отношения…

в-третьих, прежде чем думать как использовать нишу, нужно сделать функциональную расстановку мебели и возможно, при проработке композиционных решений вопрос решиться сам собой.

  • 1 месяц спустя...

Здравствуйте.

Маленькая квартира студия 28 кв.м. Расстановка мебели уже окончательная. В классическом стиле будет. Хочется - белую мебель и двери, высокие белые плинтуса, допускается также частично серая мебель в коридоре (комод из Икеа РАСТ и напротив него зеркало в рост). 

В интерьере вижу цвета: желтый, серый, белый.

На картинках обои в клетку. Год назад очень сильно хотелось, потом перехотелось. Сейчас желтый обои интересуют. Только, всю квартиру не хочется обклеивать, а как-то стены выборочно. Вот и возник вопрос: как лучше сделать? Какие акценты подобрать?

Будут в центре раздвижные двери.

1.jpg

11.jpg

15.jpg

23.jpg

Фото1-1.jpg

Добрый день! Помогите с цветовым решением кухни. Черная мебель, холодный беж пол и стол со стульями из натурального дерева.  Не устраивает цвет печи-камина из кирпича (терракот). В какой цвет перекрасить печь и какого цвета подобрать настенную плитку в рабочую зону около печи?

10 часов назад, smua сказал:

Добрый день! Помогите с цветовым решением кухни. Черная мебель, холодный беж пол и стол со стульями из натурального дерева.  Не устраивает цвет печи-камина из кирпича (терракот). В какой цвет перекрасить печь и какого цвета подобрать настенную плитку в рабочую зону около печи?

Делайте пожалуйста коллаж из имеющихся материалов и выкладывайте сюда. Так же фото помещения с этой печью. Пока ничего не понятно…

Здравствуйте, Владимир!

Вопрос касается прихожей. Уже сломала голову:) При входе в квартиру нет места, чтобы разуться комфортно, узкий коридор и ещё и проходной, и все связанные с этим неудобства... есть второй санузел рядом, но не хочется им жертвовать во имя гардероба. Вощможно, ещё могут быть варианты обустройства места для раздевания в коридоре? Да, стен пока нет, только перегородки низкие, можно планировку варьировать:)
Спасибо большое!

IMG_7607.PNG

Анастасия, я бы сделал гардероб вместо туалета. На такую маленькую квартиру 2 туалета на мой взгляд лишнее.

Можно немного уменьшить комнату, которая 20 квадратов, но если выбирать, то лучше избавиться от второго санузла... Какая ширина коридора?

58 минут назад, Vladimir Lamfadel сказал:

Анастасия, я бы сделал гардероб вместо туалета. На такую маленькую квартиру 2 туалета на мой взгляд лишнее.

Можно немного уменьшить комнату, которая 20 квадратов, но если выбирать, то лучше избавиться от второго санузла... Какая ширина коридора?

Владимир, спасибо большое за ответ! Ширина около метра, чуть больше, наверное... к сожалению, на плане не указаны точные цифры.

я тоже думаю, что идеально убрать санузел в пользу гардеробной, но есть пожелания оставить его все же, поэтому смотрю варианты с его сохранением:) и, например, если появится четвероногий друг то будет очень даже гигиенично сразу заводить его туда и мыть лапы:) в общем, есть причины)) но в крайнем случае, конечно, будем убирать санузел.

с тем, что можно забрать немного площади от комнаты напротив тоже были мысли, как вариант. В идеале же отгородить часть площадки перед входом в квартиру и разуваться хотя бы там. Но не знаю, везде ли это разрешается... 

Для публикации сообщений создайте учётную запись или авторизуйтесь

Вы должны быть зарегистрированным пользователем, чтобы оставить комментарий

Создать учетную запись

Зарегистрируйтесь в нашем сообществе.

Зарегистрироваться

Войти

Уже есть аккаунт? Войти в систему.

Войти

Или войти с помощью одного из сервисов



  • Наши рекомендации

    • Кажись всё или строительный пылесос с тройной мультициклонной ступенью очистки
      Кажись всё или строительный пылесос с тройной мультициклонной ступенью очистки

        • Нравится
      • 16 ответов
    • Как построить теплый дом, не тратя лишних денег
      Строительство гостевого дома решил выделить в отдельную тему, так будет меньше путаницы.


        • Спасибо
        • Нравится
      • 259 ответов
    • Дома из сруба: идеальное сочетание уюта и прочности.
      Строительство собственного дома является важной вехой в жизни любого человека, поскольку оно знаменует собой важное событие. Выбор строительных материалов имеет огромное значение для создания теплого и функционального жилища. На протяжении всей древней истории древесина была распространенным материалом для строительства домов, что отразилось на различных культурах мира.

      • 0 ответов
    • Подходы к ремонту старых домов в России
      В России сотни тысяч старых домов, многие из которых являются не только свидетельством исторического наследия, но и отражением уникальной культуры и традиций страны. Эти дома, будь то деревянные избы или старинные каменные постройки, сохраняют в себе дух времени и рассказывают историю поколений.

      • 0 ответов
    • Люк для кошек своими руками
      Разумеется давно придуманы и продаются специальные лючки для кошек, которые можно врезать в дверь, но мы ведь не ищем легких путей . Да и по зоомагазинам я не хожу, а "гугление" показало, что такие люки для кошек стоят относительно не дешево. В то же время под рукой были два "копеечных" сантехнических пластиковых лючка для ГКЛ. Все что оставалось, так это обломать фиксаторы крышек, что бы они открывались в обе стороны, ровно выпилить отверстие в двери, да вклеить симметрично эти лючки.

      То, что получилось видно на фото. Разумеется это не для тех, у кого "дизайнерский ремонт", но для обыкновенной квартиры вполне подходит. Недостатков не замечено, животных и людей всё устраивает .


      Реакцию форумчан на этот люк можно узнать в этой теме https://homemasters.ru/...me/?p=330637

        • Ого
      • 6 ответов
    • Вторая жизнь дивана: искусство ремонта мягкой мебели своими руками
      В эпоху беспрерывного потребления и стремления к новизне, ремонт старой мягкой мебели своими руками приобретает не просто практическое, но и глубоко философское значение. Это действие как знак уважения к труду мастеров, которые вложили свое мастерство в создание диванов, кресел и пуфов, и как воплощение идеи устойчивого потребления. С каждым возвращенным к жизни предметом мебели, мы не только сохраняем историю и уникальность каждого изделия, но и противостоим бездумному обновлению интерьера за счет экологии и рационального использования ресурсов.

        • Нравится
      • 0 ответов
    • Аккумуляторные пилы  SCW и  SCM  22-A
      После того как провёл тесты, приступил к самому главному. Поменять диски местами, и проверить, как инструмент на это отреагирует, ведь они внешнее и походу внутренне практически одинаковые, пила по дереву конечно более навороченее, есть настройки угла наклона и можно на шину посадить через адаптер.

      • 4 ответа
    • Газовые котлы: эффективное, экономичное и экологичное решение для отопления вашего дома
      В современном мире, где комфорт и устойчивость стали ключевыми аспектами повседневной жизни, выбор правильного источника отопления дома становится особенно актуальным. Газовые котлы, сочетая в себе преимущества эффективности, экономичности и экологичности, представляют собой одно из наиболее популярных решений для обеспечения комфортной температуры в жилых и коммерческих помещениях.

      • 0 ответов
×
×
  • Создать...

Важная информация

Мы разместили cookie-файлы на ваше устройство, чтобы помочь сделать этот сайт лучше. Вы можете изменить свои настройки cookie-файлов, или продолжить без изменения настроек.