Перейти к содержанию
Форумы о ремонте и строительстве

Межкомнатная перегородка из пеноблоков

Оценить эту тему:


Рекомендуемые сообщения

Опубликовано

Доброго времени суток всем форумчанам. Задумал я изолировать зал в 3-х комнатной хрущевке. Перекрытие решил делать из пеноблоков т.к. не доверяю перегородкам из гипсокартона. С целью экономии кладку из пеноблоков решил делать сам. От сюда у меня несколько вопросов: выдержит ли бетонное перекрытие мою перегородку т.к. дом уже не новый ? Как правильно положить кладку из пеноблоков, чтоб она не завалилась в будущем ? Как в будущем,когда перегородка с отвермтием под дверь будет сделана, как в ней закрепить лучше дверную раму по скольку пеноблоки сами по себе сыпятся при сверлении и т.д. ? И на какю поверхность её лучше класть на бетонную плиту или уже на готовую стяжку? Вот собственно эти вопросы меня болше всего волнуют. Жду Ваших советов...

Перекрытия выдержат. Нарисовал б ты план помещения с перегородкой, размероми, было б легче ориентироваться. Класть можно на ЦПС, можно и на плиточный клей. В стены крепить закладные в каждый ряд. Над дверной коробкой заложить уголок, или деревянный брус толщиной от 50 мм. Дверную коробку крепить на пену. Такая мелочовка, как заркала, картины и бра держатся в пеноблоках замечательно на обычных пластмассовых дюбелях, только отверстия высверливать (не долбить перфоратором!). Я б делал бы с гипсокартона.

Нарисовать план квартиры и выложить его сюда тяжеловато для меня. Постараюсь сегодня найти план квартиры, если повезёт то выложу. По поводу деревянного бруса над дверной коробкой - хорошая идея. Я бы ещё по бокам коробки поставил вертикальные брусья и закрепил бы их уголками к полу и потолку, к тому же в них можно врезать арматуру, которая будет прокладываться между пеноблоками. Или последнее - это уже лишнее? По поводу перегородки из гипсокартона я тоже долго думал, но мне не внушает она доверие, мне кажется она не такая прочная получится как из пеноблоков и на мой взгляд шумоизоляция у перегородки из гипсокартона (даже если проложить между листами минвату) не такая как у перегородки из пеноблоков. Может я ошибаюсь...

Может я ошибаюсь...

Ошибаетесь. Пеноблоки не так уж хороши по качеству звукоизоляции. А учитывая наличие дверного проёма, Вы, скорее всего, разницы с перегородкой из гкл даже не заметите. Какая максимально допустимая толщина перегородки?

Я думаю не толще дверной коробки. Не хочется потом доборный брус ставить. Может и правда из гипсокартона сделать, меньше грязи будет, А опять же как дверную коробку крепить в такой перегородке. Тоже на пену?

Перекрытия выдержат. Нарисовал б ты план помещения с перегородкой, размероми, было б легче ориентироваться. Класть можно на ЦПС, можно и на плиточный клей. В стены крепить закладные в каждый ряд. Над дверной коробкой заложить уголок, или деревянный брус толщиной от 50 мм. Дверную коробку крепить на пену. Такая мелочовка, как заркала, картины и бра держатся в пеноблоках замечательно на обычных пластмассовых дюбелях, только отверстия высверливать (не долбить перфоратором!). Я б делал бы с гипсокартона.

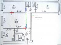
Вот план квартиры...

post-79327-1324542266_thumb.jpg

Я конечно могу ошибаться, но пеноблоки идут от 100мм. + толщина штукатурки, величина пока не известная, так как неизвестна кривизна получившейся перегородки :) Стандартов коробки наверняка несколько, тут Alice Tracy может подсказать точно, у меня вроде 80мм.

Тоже на пену?

Можно только на пену. Можно ещё и саморезов добавить.

ИМХО такая перегородка из ГКЛ легче, чище и качественнее получится.на форуме вся информация по технологии есть

Понятно, по поводу кипсокаротона или пеноблоков буду думать, кончно приятнее работать с гипсокартоном, а кто-нибудь подскажет как правильно вырубить дверной проём в уже в имеющейся (старой) перегородке.

как правильно вырубить дверной проём в уже в имеющейся (старой) перегородке

Разметить и вырезать сабельной пилой. :)

как правильно вырубить дверной проём в уже в имеющейся (старой) перегородке

Это смотря из чего перегородка сделана.

Для публикации сообщений создайте учётную запись или авторизуйтесь

Вы должны быть зарегистрированным пользователем, чтобы оставить комментарий

Создать учетную запись

Зарегистрируйтесь в нашем сообществе.

Зарегистрироваться

Войти

Уже есть аккаунт? Войти в систему.

Войти

Или войти с помощью одного из сервисов



  • Наши рекомендации

    • Кажись всё или строительный пылесос с тройной мультициклонной ступенью очистки
      Кажись всё или строительный пылесос с тройной мультициклонной ступенью очистки

        • Нравится
      • 16 ответов
    • Дома из сруба: идеальное сочетание уюта и прочности.
      Строительство собственного дома является важной вехой в жизни любого человека, поскольку оно знаменует собой важное событие. Выбор строительных материалов имеет огромное значение для создания теплого и функционального жилища. На протяжении всей древней истории древесина была распространенным материалом для строительства домов, что отразилось на различных культурах мира.

      • 0 ответов
    • Как построить теплый дом, не тратя лишних денег
      Строительство гостевого дома решил выделить в отдельную тему, так будет меньше путаницы.


        • Спасибо
        • Нравится
      • 259 ответов
    • Аккумуляторные пилы  SCW и  SCM  22-A
      После того как провёл тесты, приступил к самому главному. Поменять диски местами, и проверить, как инструмент на это отреагирует, ведь они внешнее и походу внутренне практически одинаковые, пила по дереву конечно более навороченее, есть настройки угла наклона и можно на шину посадить через адаптер.

      • 4 ответа
    • Газовые котлы: эффективное, экономичное и экологичное решение для отопления вашего дома
      В современном мире, где комфорт и устойчивость стали ключевыми аспектами повседневной жизни, выбор правильного источника отопления дома становится особенно актуальным. Газовые котлы, сочетая в себе преимущества эффективности, экономичности и экологичности, представляют собой одно из наиболее популярных решений для обеспечения комфортной температуры в жилых и коммерческих помещениях.

      • 0 ответов
    • Вторая жизнь дивана: искусство ремонта мягкой мебели своими руками
      В эпоху беспрерывного потребления и стремления к новизне, ремонт старой мягкой мебели своими руками приобретает не просто практическое, но и глубоко философское значение. Это действие как знак уважения к труду мастеров, которые вложили свое мастерство в создание диванов, кресел и пуфов, и как воплощение идеи устойчивого потребления. С каждым возвращенным к жизни предметом мебели, мы не только сохраняем историю и уникальность каждого изделия, но и противостоим бездумному обновлению интерьера за счет экологии и рационального использования ресурсов.

        • Нравится
      • 0 ответов
    • Люк для кошек своими руками
      Разумеется давно придуманы и продаются специальные лючки для кошек, которые можно врезать в дверь, но мы ведь не ищем легких путей . Да и по зоомагазинам я не хожу, а "гугление" показало, что такие люки для кошек стоят относительно не дешево. В то же время под рукой были два "копеечных" сантехнических пластиковых лючка для ГКЛ. Все что оставалось, так это обломать фиксаторы крышек, что бы они открывались в обе стороны, ровно выпилить отверстие в двери, да вклеить симметрично эти лючки.

      То, что получилось видно на фото. Разумеется это не для тех, у кого "дизайнерский ремонт", но для обыкновенной квартиры вполне подходит. Недостатков не замечено, животных и людей всё устраивает .


      Реакцию форумчан на этот люк можно узнать в этой теме https://homemasters.ru/...me/?p=330637

        • Ого
      • 6 ответов
    • Подходы к ремонту старых домов в России
      В России сотни тысяч старых домов, многие из которых являются не только свидетельством исторического наследия, но и отражением уникальной культуры и традиций страны. Эти дома, будь то деревянные избы или старинные каменные постройки, сохраняют в себе дух времени и рассказывают историю поколений.

      • 0 ответов
×
×
  • Создать...

Важная информация

Мы разместили cookie-файлы на ваше устройство, чтобы помочь сделать этот сайт лучше. Вы можете изменить свои настройки cookie-файлов, или продолжить без изменения настроек.