Перейти к содержанию
Форумы о ремонте и строительстве

Стык перегородки с капитальной стеной

Оценить эту тему:


Рекомендуемые сообщения

Эта разделительная лента применяется только если стена отличная от гкл т.е. там где гкл примыкает к гкл и не важно на каркасе гкл или приклеен на перлфикс пусть даже к такой же монолитной стене этой ленты нету получается что подвижек скольженией и прочего на стыках стен завернутых в гкл не бывает

Подписываемся на тему День за днём, моя работа https://homemasters.ru/...esta-raboty/ и на мой инстарам https://www.instagram.c...gda35remont/

Принимаю заказы на мебель из слэбов

 

а если не перегородка а а угол ( внешняя - отделаная гк, а перегородка -штукатурка) тоже клеить разделительную ленту или серпянка пойдет?

получается что подвижек скольженией и прочего на стыках стен завернутых в гкл не бывает

Подвижки о которых вы говорите можно устранить качеством монтажа и последующей обработки поверхностей (шпатлёвка, герметизирование и так далее)А вот разный коэффициент расширения предсказать нельзя, для этого и необходима разделительная лента.

примыкание к окну, разный коэфф , примыкание к дверям такое же

post-2-1326028590_thumb.jpg

Подписываемся на тему День за днём, моя работа https://homemasters.ru/...esta-raboty/ и на мой инстарам https://www.instagram.c...gda35remont/

Принимаю заказы на мебель из слэбов

 

Герметик, неплохая замена разделительной ленте, впрочем как и потолочный плинтус, уголок и т. д.Вы упорно не хотите признать удобство и практичность разделительной ленты. :D

Вы упорно не хотите признать удобство и практичность разделительной ленты. biggrin.png

не надо придумывать, и про упертость тоже, я перенимаю в работу всё и сразу что мне понятно или есть положительный отзыв от старших (в мастерстве) товарищей :)

я за ленту, но за ленту универсальную, никакую то там скользкую как сопля , а именно для деформаций и для подвижек и для сжатия-разрыв и для того чтоб шпаклевка не намазывалась на ненужные поверхности

эта разделительная слишком тонкая и не эластичная , любая мм.-вая подвижка сожмет шпаклевку так что она треснет или наоборот разрыв образует трещину

это очевидные вещи, они не требуют лабораторных доказательств

в качестве универсальной имхо очень хорошо подходит та же Дихтунгсбанд

уже давно применяю её на различных стыках типа входные железные двери-штукатурные откосы

Герметик, неплохая замена разделительной ленте, впрочем как и потолочный плинтус, уголок и т. д.

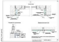
это не мой чертеж, это чертеж лучезарного поднебесного кнауфа :)

Подписываемся на тему День за днём, моя работа https://homemasters.ru/...esta-raboty/ и на мой инстарам https://www.instagram.c...gda35remont/

Принимаю заказы на мебель из слэбов

 

Как хорошо в Пензе. Нет здесь ни Дихтунгсбанд, ни Бандусгрунт, ни Грунтусхрент. Есть малярный скотч и Фугенфюллер. А у Вас такие загоны.

Сано, ну а по штукатурным откосам с деревянными дверями. Дерево гуляет, герметик рвётся, особено МДФ(гамно) коробки. Там то как примкнуть?

Малярный скотч, я настаиваю. :)

Там то как примкнуть?

в качестве универсальной имхо очень хорошо подходит та же Дихтунгсбанд

в общем то ответ :) или

Малярный скотч, я настаиваю. smile.png

:D

Подписываемся на тему День за днём, моя работа https://homemasters.ru/...esta-raboty/ и на мой инстарам https://www.instagram.c...gda35remont/

Принимаю заказы на мебель из слэбов

 

Воинствующая безграмотность

я за ленту, но за ленту универсальную

Флаг Вам в руки, но такой ленты нет.Вы спорите о вкусе бананов с теми кто их ел.Вы меня разозлили. Пользуйтесь своей универсальной лентой сами и пребывайте в неведении, но если Вы будете советовать её (универсальную) другим, оставляю за собой право каждый раз отговаривать от этого шага вопрошающих.Мне с Вами спорить надоело.

Флаг Вам в руки, но такой ленты нет.

вот и плохо что нету

Вы меня разозлили.

я не виноват что кроме вашего мнения может быть другое :)а вообще я всегда хотел узнать кое что , можно ?

Подписываемся на тему День за днём, моя работа https://homemasters.ru/...esta-raboty/ и на мой инстарам https://www.instagram.c...gda35remont/

Принимаю заказы на мебель из слэбов

 

Да пробовал я и скотч, и ленту, и акрил один фиг трещина появляется. Ещё вот МСный полимер не пробывал, не было пока, надеюсь что он более эластичный, чем акрил.

а вообще я всегда хотел узнать кое что , можно ?

Теперь нет.Подождите, когда я перестану кипеть.

хорошо собственно у меня два вопроса один по теме , другой наверное все таки лучше в личке спросить

Подписываемся на тему День за днём, моя работа https://homemasters.ru/...esta-raboty/ и на мой инстарам https://www.instagram.c...gda35remont/

Принимаю заказы на мебель из слэбов

 

Да пробовал я и скотч, и ленту, и акрил один фиг трещина появляется.

Паш, ты ж с Мироком общаешься. Вот так же еще можно:

http://www.architector.dp...do-dveri.htm

Дим, отштукатурить не вопрос, проблема в том что коробки обычно зимой усаживаются, а летом разбухают и если откос крашенный получается не красиво, примыкание трескается, под обоями то не видно, стеклохолст в какой то мере помогаент но не так как хотелось бы. Понятно, что проблема в деревяхе или МДФ-е, вот интересно в ваших климатах тоже такая фигня? и как сней бороться?

Такая же фигня. И как с ней бороться, я не знаю. Я в этой теме вообще просто болтаю, т.к. посоветовать умного не смогу. Хотя читая, понял, что парни загнались и уже выпутаться сложно. Как по мне, так, что ГКЛ к ГКЛ, что ГКЛ к стене, что стена к ГКЛ, что дерево к штукатурке, что наоборот, никто не выдаст способ 100 % избежать трещин. Максимально близок к "технологическому совершенству" в этом вопросе мне видится Влад. Кнауф же в своих листовках иногда такие перлы выдает, что с кресла падаю. Их нельзя сравнивать. У Кнауфа задача как можно больше впихнуть на рынок хрени (читай "продать"), под видом суперпрорыва технологии, чтобы привлечь клиентов. У Влада сделать и не накосорезить. А потому у него больше шансов приблизится к истине.

Для публикации сообщений создайте учётную запись или авторизуйтесь

Вы должны быть зарегистрированным пользователем, чтобы оставить комментарий

Создать учетную запись

Зарегистрируйтесь в нашем сообществе.

Зарегистрироваться

Войти

Уже есть аккаунт? Войти в систему.

Войти

Или войти с помощью одного из сервисов



  • Наши рекомендации

    • Подходы к ремонту старых домов в России
      В России сотни тысяч старых домов, многие из которых являются не только свидетельством исторического наследия, но и отражением уникальной культуры и традиций страны. Эти дома, будь то деревянные избы или старинные каменные постройки, сохраняют в себе дух времени и рассказывают историю поколений.

      • 0 ответов
    • Люк для кошек своими руками
      Разумеется давно придуманы и продаются специальные лючки для кошек, которые можно врезать в дверь, но мы ведь не ищем легких путей . Да и по зоомагазинам я не хожу, а "гугление" показало, что такие люки для кошек стоят относительно не дешево. В то же время под рукой были два "копеечных" сантехнических пластиковых лючка для ГКЛ. Все что оставалось, так это обломать фиксаторы крышек, что бы они открывались в обе стороны, ровно выпилить отверстие в двери, да вклеить симметрично эти лючки.

      То, что получилось видно на фото. Разумеется это не для тех, у кого "дизайнерский ремонт", но для обыкновенной квартиры вполне подходит. Недостатков не замечено, животных и людей всё устраивает .


      Реакцию форумчан на этот люк можно узнать в этой теме https://homemasters.ru/...me/?p=330637

        • Ого
      • 6 ответов
    • Дома из сруба: идеальное сочетание уюта и прочности.
      Строительство собственного дома является важной вехой в жизни любого человека, поскольку оно знаменует собой важное событие. Выбор строительных материалов имеет огромное значение для создания теплого и функционального жилища. На протяжении всей древней истории древесина была распространенным материалом для строительства домов, что отразилось на различных культурах мира.

      • 0 ответов
    • Аккумуляторные пилы  SCW и  SCM  22-A
      После того как провёл тесты, приступил к самому главному. Поменять диски местами, и проверить, как инструмент на это отреагирует, ведь они внешнее и походу внутренне практически одинаковые, пила по дереву конечно более навороченее, есть настройки угла наклона и можно на шину посадить через адаптер.

      • 4 ответа
    • Кажись всё или строительный пылесос с тройной мультициклонной ступенью очистки
      Кажись всё или строительный пылесос с тройной мультициклонной ступенью очистки

        • Нравится
      • 16 ответов
    • Как построить теплый дом, не тратя лишних денег
      Строительство гостевого дома решил выделить в отдельную тему, так будет меньше путаницы.


        • Спасибо
        • Нравится
      • 245 ответов
    • Газовые котлы: эффективное, экономичное и экологичное решение для отопления вашего дома
      В современном мире, где комфорт и устойчивость стали ключевыми аспектами повседневной жизни, выбор правильного источника отопления дома становится особенно актуальным. Газовые котлы, сочетая в себе преимущества эффективности, экономичности и экологичности, представляют собой одно из наиболее популярных решений для обеспечения комфортной температуры в жилых и коммерческих помещениях.

      • 0 ответов
    • Вторая жизнь дивана: искусство ремонта мягкой мебели своими руками
      В эпоху беспрерывного потребления и стремления к новизне, ремонт старой мягкой мебели своими руками приобретает не просто практическое, но и глубоко философское значение. Это действие как знак уважения к труду мастеров, которые вложили свое мастерство в создание диванов, кресел и пуфов, и как воплощение идеи устойчивого потребления. С каждым возвращенным к жизни предметом мебели, мы не только сохраняем историю и уникальность каждого изделия, но и противостоим бездумному обновлению интерьера за счет экологии и рационального использования ресурсов.

        • Нравится
      • 0 ответов
×
×
  • Создать...

Важная информация

Мы разместили cookie-файлы на ваше устройство, чтобы помочь сделать этот сайт лучше. Вы можете изменить свои настройки cookie-файлов, или продолжить без изменения настроек.