Перейти к содержанию
Форумы о ремонте и строительстве

Посоветуйте планировку 1ой квартиры

Оценить эту тему:


Рекомендуемые сообщения

Опубликовано (изменено)

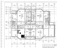
Здравствуйте, очень понравилась эта ветка, особенно решения некоторых людей, которые предлагают совершенно неординарный подход к планирке, надеюсь ваши советы помогут и мне, поэтому решила обратиться к вам и вынести на общественное обсуждение свой вариант.И так, есть однокомнатная квартира по своим хотелкам хотелось бы сделать ее более функциональной с кухней, спальней и зоной отдыха. В прикрепленном файле есть мои немного корявые зарисовки так как мне бы хотелось, поэтому хочется спросить у профессионалов возможно ли такая планировка и какие могут проблемы с преносом зон.В прикрепленном файле видна индентичная квартира в зеркальном отражении.Заранее спасибо за комментарии...

post-81880-1336741093_thumb.gif

Изменено пользователем irina_iriskin

я так понимаю,перенести санузел Вам никто не позволит однозначно,да и несерьёзно это,даже если бы и было возможно,в реале там только кукольный санузел разместится,так же впрочем как и кухня.Не в масштабе всё,поэтому вроде кажется что чудесным образом помещается,но это самообман. Это однушка.Не надо пытаться превратить её в двухкомнатную квартиру.Чудес не бывает. Кухню оставьте в покое и санузел тоже.Всё внимание на комнату. Зонировать её на "спальню" и "гостиную" вполне возможно. А уж определиться с тем,каким быть спальному месту -трансформером или постоянным -Ваша задача.

(изменено)

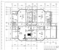
так толпы норода не будет чтобы тереться в ванной друг об друга, вообще хочется получить нормальное спальное место, а не диван, который каждый день туда сюда раскладывать нужно будет, вот размеры... по моим прикидкам вполне нормальная ванна может получиться и на объекте сказали что пренеска кухни и ванной вполне возможна.

post-81880-1336743450_thumb.jpg

Изменено пользователем irina_iriskin

эти "на объекте сказали" документально готовы всё оформить?картинка мелкая,ничего не разглядеть.

(изменено)

нда, как-то безжизненно, или всё так плохо?! просто действительно не могу позволить себе дизайнера, буду заниматься всем сама, слава богу со вкусом все нормально, может все думают, что типа все всё хотят бесплатно...

Изменено пользователем irina_iriskin

если позволите, выскажу своё мнение. Для меня пока очевидно одно - Ваши намерения в отношении кухни-санузла ошибочны.Это неправильный путь.Насколько законны такие переделки -я объективно судить не могу,задал Вам вопрос про это,но Вам он не интересен видимо. Про комнату-можно сделать интересно,свежо,комфортно ,при этом всё будет на своих местах. Есть что обсудить-посмотреть -подумать ,но пока совершенно непонятно чего Вы хотите от форума,если не готовы слушать и слышать ...

irina_iriskin, Ну допустим перенесете куфню в санузел, там есть стояки, есть вентиляция. Но как перенести санузел в коридор? Вентиляции нет, значит надо тянуть её в будущюю комнату, далее канализационный стояк какого диаметра? 110 или 75? В кухоной каналье не всегда стоит 110 труба, если у вас к примеру 75 труба на стояке, то каким образом пользоваться унитазом? Ну и правильно Вам Alef говорит, начиная с того что перенос "мокрых" зон над "сухими" запрещен.

(изменено)

Alef, ну, допустим вопроса я не увидела, там его вообще нет... больше похоже как выражение мнения, я его услышала, поэтому и хочется услышать мнение людей которые в этом понимают и могут практически доказать что так нельзя сделать или можно, так-то так-то, потому-то потому-то...это пока мои идеи, если нельзя значит нельзя, буду думать дальше...

Изменено пользователем irina_iriskin

ок,принимается замечание,но в данном случае именно вопрос,совершенно серьёзный и открытый.Я далеко,у нас тут свои реалии,поэтому при всём желании кардинальных перемен я лично не имею права мечтать "с размахом",без оглядки на проект в том виде,в каком он есть сейчас .

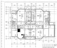
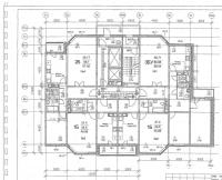
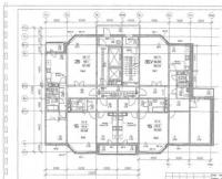
документов пока нет никаких, дом еще не введен и не сдан, какие должны быть документы чтобы точно можно было сказать на 100% что этого делать нельзя... на втором рисунке где кухня разве не мокрая зона и стояки?

post-81880-1336814672_thumb.jpg

Так то да, территория кухни. ограничена стенами. За стеной коридор- сухая зона. Не подумайте что мы такие упёртые и буквоеды, просто Вас хотят предостеречь от некоторых шагов, которые в последствии могут принести вам лишние проблемы с оформлением квартиры в БТИ и подобных конторах. Вам так хочется, Вам так удобней, но чиновников разных уровней это не колышет ваапще ни как. Придут, бумажку напишут и таскайтесь по судам и конторам, доказывайте что и как, а им пофигу, нельзя и точка, переделывайте взад :). А это опять деньги и не маленькие.

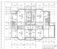
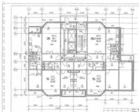
Ну, не собираюсь я пока ничего делать, а только провожу разведку, хочу взвесить все за и против, мне то же не нужны лишние проблемы, мне очень интересно мнение таких людей как вы... наверняка если бы мне было все равно поверьте подобный вопрос здесь не стоял...Хорошо, если отказаться от этой темы переноса, сделать из большой комнаты спальню и гостинную... в этой комнате эркер - большое окно, делить ее на части каким образом?! если бы можно было еще дверной проем перести другое дело. Ближе к окну сделать гостинную в другой части спальное место, но это несущие стены дверной проем нельзя трогать, делать где эркер спальное место в другой части гостинную бессмыленно...

irina_iriskin, в вашем варианте плана. не всё так гладко.

Кроме того что уже сказано. можно ешё добавить пару пунктов.

1. То что на родном плане помечено зашивается гипсом, это вероятно короб со стояками, а вы его в своём варианте снесли на фиг.

2. В вашем варианте нет совсем прихожки и места для того чтобы раздеться и переобуться. Как же без этого.

просто действительно не могу позволить себе дизайнера, буду заниматься всем сама,

Вот это и есть ключевая фраза к невозможности сделать так как вам хочется. В этом вопросе деньги решают всё.

С деньгами можно и зоны поменять и капитальную стену снести практически полностью. Есть технологии и есть у дома запас прочности.

С деньгами можно и зоны поменять и капитальную стену снести практически полностью. Есть технологии и есть у дома запас прочности.

Только для начала всё же с деньгами и квартиру приобретают более соответствующую запросам... ;) А что касается организации спальни-гостиной -есть варианты.Не надо так буквально воспринимать разделение.Стены ставить никто не предлагает,это смешно. Есть решения,причём не диванные,а с полноценными кроватями.
(изменено)

Вот немного переделала, и немного подумала как может выглядеть комната без перепланировки, но эти идеи не совсем интересны на мой взгляд, подскажите от чего можно хотя бы оттолкнуться?!

post-81880-1337001649_thumb.jpg

post-81880-1337001653_thumb.jpg

post-81880-1337001666_thumb.jpg

post-81880-1337001675_thumb.jpg

Изменено пользователем irina_iriskin

не торопитесь с выводами.Всё может быть совсем не так плохо,как может показаться. Подумаем вместе.

post-11625-1337014047_thumb.jpgpost-11625-1337014064_thumb.jpgpost-11625-1337014079_thumb.jpgpost-11625-1337014092_thumb.jpgpost-11625-1337014106_thumb.jpgможно выбрать любое из решений , изменить и подогнать под имеющуюся площадь и сделать не просто интересно,а и стильно ,изящно,оригинально.
(изменено)

Вот немного порыскала в инете посмотрела варианты гостинная - спальняВот последний ... классный дизайн, только по цвету скучновато...

post-81880-1337066704_thumb.jpg

post-81880-1337066709_thumb.jpg

post-81880-1337066715_thumb.jpg

post-81880-1337066722_thumb.jpg

post-81880-1337066727_thumb.jpg

post-81880-1337067506_thumb.jpg

Изменено пользователем irina_iriskin

Для публикации сообщений создайте учётную запись или авторизуйтесь

Вы должны быть зарегистрированным пользователем, чтобы оставить комментарий

Создать учетную запись

Зарегистрируйтесь в нашем сообществе.

Зарегистрироваться

Войти

Уже есть аккаунт? Войти в систему.

Войти

Или войти с помощью одного из сервисов



  • Наши рекомендации

    • Подходы к ремонту старых домов в России
      В России сотни тысяч старых домов, многие из которых являются не только свидетельством исторического наследия, но и отражением уникальной культуры и традиций страны. Эти дома, будь то деревянные избы или старинные каменные постройки, сохраняют в себе дух времени и рассказывают историю поколений.

      • 0 ответов
    • Аккумуляторные пилы  SCW и  SCM  22-A
      После того как провёл тесты, приступил к самому главному. Поменять диски местами, и проверить, как инструмент на это отреагирует, ведь они внешнее и походу внутренне практически одинаковые, пила по дереву конечно более навороченее, есть настройки угла наклона и можно на шину посадить через адаптер.

      • 4 ответа
    • Дома из сруба: идеальное сочетание уюта и прочности.
      Строительство собственного дома является важной вехой в жизни любого человека, поскольку оно знаменует собой важное событие. Выбор строительных материалов имеет огромное значение для создания теплого и функционального жилища. На протяжении всей древней истории древесина была распространенным материалом для строительства домов, что отразилось на различных культурах мира.

      • 0 ответов
    • Газовые котлы: эффективное, экономичное и экологичное решение для отопления вашего дома
      В современном мире, где комфорт и устойчивость стали ключевыми аспектами повседневной жизни, выбор правильного источника отопления дома становится особенно актуальным. Газовые котлы, сочетая в себе преимущества эффективности, экономичности и экологичности, представляют собой одно из наиболее популярных решений для обеспечения комфортной температуры в жилых и коммерческих помещениях.

      • 0 ответов
    • Как построить теплый дом, не тратя лишних денег
      Строительство гостевого дома решил выделить в отдельную тему, так будет меньше путаницы.


        • Спасибо
        • Нравится
      • 238 ответов
    • Люк для кошек своими руками
      Разумеется давно придуманы и продаются специальные лючки для кошек, которые можно врезать в дверь, но мы ведь не ищем легких путей . Да и по зоомагазинам я не хожу, а "гугление" показало, что такие люки для кошек стоят относительно не дешево. В то же время под рукой были два "копеечных" сантехнических пластиковых лючка для ГКЛ. Все что оставалось, так это обломать фиксаторы крышек, что бы они открывались в обе стороны, ровно выпилить отверстие в двери, да вклеить симметрично эти лючки.

      То, что получилось видно на фото. Разумеется это не для тех, у кого "дизайнерский ремонт", но для обыкновенной квартиры вполне подходит. Недостатков не замечено, животных и людей всё устраивает .


      Реакцию форумчан на этот люк можно узнать в этой теме https://homemasters.ru/...me/?p=330637

        • Ого
      • 6 ответов
    • Кажись всё или строительный пылесос с тройной мультициклонной ступенью очистки
      Кажись всё или строительный пылесос с тройной мультициклонной ступенью очистки

        • Нравится
      • 16 ответов
    • Вторая жизнь дивана: искусство ремонта мягкой мебели своими руками
      В эпоху беспрерывного потребления и стремления к новизне, ремонт старой мягкой мебели своими руками приобретает не просто практическое, но и глубоко философское значение. Это действие как знак уважения к труду мастеров, которые вложили свое мастерство в создание диванов, кресел и пуфов, и как воплощение идеи устойчивого потребления. С каждым возвращенным к жизни предметом мебели, мы не только сохраняем историю и уникальность каждого изделия, но и противостоим бездумному обновлению интерьера за счет экологии и рационального использования ресурсов.

        • Нравится
      • 0 ответов
×
×
  • Создать...

Важная информация

Мы разместили cookie-файлы на ваше устройство, чтобы помочь сделать этот сайт лучше. Вы можете изменить свои настройки cookie-файлов, или продолжить без изменения настроек.