Перейти к содержанию
Форумы о ремонте и строительстве

Полная замена проводки в старом фонде

Оценить эту тему:


Рекомендуемые сообщения

Опубликовано

Всем привет! Перед началом ремонта задался целью поменять полностью проводку в квартире. То, что сейчас это полный ужас, старая еще алюминиевая проводка (заземления понятное дело нет), всего два автомата-пробки на 16А (на фазу и на ноль) и старый индуктивный счетчик. Менять хочу начиная от щитка на лестничной клетке. Сейчас там правда черт знает что, но определил, что за мою квартиру отвечает доисторическая пробка, вроде как номиналом 20А (по крайней мере на корпусе стоит такое значение). Далее хочу поставить щиток в квартиру, новый цифровой счетчик на два тарифа. Прошу знатоков данного форума подсказать что и как лучше сделать, буду очень благодарен за советы и помощь!

ВОПРОС №1. Какого номинала ставить вводной автомат в щитке на лестнице? На сколько может быть рассчитана старая алюминиевая проводка в стояках на лестнице? 20А, на которые рассчитана доисторическая пробка как-то маловато, предполагаю, что можно поставить немного побольше, например 25-32А (У соседа стоит автомат на 25А)? Что посоветуете?

post-97344-0-37712400-1418162215_thumb.jpgpost-97344-0-84141100-1418162221_thumb.jpg

ВОПРОС №2. Как вы посоветуете закрепить вводной автомат в этом щитке? Мрамор или из чего сделана основа в щитке сверлить думаю глупо, может быть убрать автомат в пластиковый боксик (заодно он позволит опечатать автомат) и приклеить к мрамору на скотч 3М? Лучше же, чем просто в воздухе ему висеть…

ВОПРОС №3. Хочу поставить два вводных автомата, один до счетчика в щитке на лестнице, второй после счетчика в щитке в квартире. Чтобы если что было удобно сразу отключить всю квартиру и не лезть в щиток на лестнице. В таком случае обычно вводные автоматы ставят одного номинала?

ВОПРОС №4. Какой провод посоветуете в моем случае протянуть от щитка на лестнице до щитка в квартире? Тянуть нужно в металлорукове, 16 мм. подойдет?

ВОПРОС №5. Помогите, пожалуйста, рассчитать необходимое количество автоматов, узо, чтобы определиться со щитком в квартиру (нужное количество постов в щитке).

Квартира имеет 3 комнаты, раздельные прихожую и коридор, туалет, ванну и кухню (плита газовая) + стиральная машина.

Планирую делать так:

  • Вводной двухполюсный автомат (занимает 2 места);
  • На каждую комнату по два однополюсных автомата, на розетки и на освещение (займут 6 мест);
  • Коридор, туалет, прихожую мы объединим (всего три светильника со светодиодами и две розетки), нужно будет два однополюсных автомата, на розетки и на освещение (займут 2 места)
  • Вопрос что ставить на ванну, нужно ведь узо + автомат? В ванне есть розетка (к ней максимум подключается фен). Надо ли ставить два автомата на свет и на розетку?
  • На кухню на розетки и свет два автомата. (займут 2 места). А на стиральную машинку узо и автомат (или использовать одно узо на ванну и на стиралку) или как?

По поводу узо вот не очень понимаю, кто-то защищает все цепи узо, кто-то только ставит на ванную и на стиральную машину, посоветуйте как будет лучше.

ВОПРОС №6. Каким проводом посоветуете соединять все компоненты в щитке? Далее после щитка я так понимаю стандартно на освещение NYM 2х1.5, а на розетки 2х2.5, заземления нету. А на стиральную машинку какого сечения и какой лучше провод?

Заранее огромное спасибо всем за помощь!

Слишком много вопросов за раз, надо двигаться постепенно, чтобы решить все вопросы последовательно

ВОПРОС №1. Какого номинала ставить вводной автомат в щитке на лестнице? На сколько может быть рассчитана старая алюминиевая проводка в стояках на лестнице? 20А, на которые рассчитана доисторическая пробка как-то маловато, предполагаю, что можно поставить немного побольше, например 25-32А (У соседа стоит автомат на 25А)? Что посоветуете?

тут только по месту можно узнать на что у вас рассчитаны стояки и сколько дается на одну квартиру,  судя по пробке 20А  совсем не много

ВОПРОС №2. Как вы посоветуете закрепить вводной автомат в этом щитке? Мрамор или из чего сделана основа в щитке сверлить думаю глупо, может быть убрать автомат в пластиковый боксик (заодно он позволит опечатать автомат) и приклеить к мрамору на скотч 3М? Лучше же, чем просто в воздухе ему висеть…

а он вам там нужен, в свете того что есть 3вопрос

ВОПРОС №3. Хочу поставить два вводных автомата, один до счетчика в щитке на лестнице, второй после счетчика в щитке в квартире. Чтобы если что было удобно сразу отключить всю квартиру и не лезть в щиток на лестнице. В таком случае обычно вводные автоматы ставят одного номинала?

вот вам и надо определится  где вводной ставить, но он должен быть один,  если охота что то иметь на площадке  то можно поставить рубильник

а номинал нас возвращает к первому вопросу,  отталкиваемся  от выделенной мощности ,  её может быть подскажут в жил.конторе, инженер  , хотя не факт что там есть адекватные в этом вопросе люди

но в любом случае не посвещайте их в свои планы,  начнут денежку тянуть  или вой поднимут

Подписываемся на тему День за днём, моя работа https://homemasters.ru/...esta-raboty/ и на мой инстарам https://www.instagram.c...gda35remont/

Принимаю заказы на мебель из слэбов

 

Какого номинала ставить вводной автомат в щитке на лестнице?

зависит от выделенной мощности на квартиру, узнать можно в энергоснабжающей организации, все равно ведь по счетчику туда поедете.

Как вы посоветуете закрепить вводной автомат в этом щитке?

хрен его знает. У меня подобное, но электирики сами давно дин рейку прикрутили

Какой провод посоветуете в моем случае протянуть от щитка на лестнице до щитка в квартире?

Судя по всему вам больше 25 А не дадут на квартиру, провод 4 квадрата.

Только один момент. Тянуть кабель от щитка до счетчика должны ваши электрики, иначе вам счетчик не опломбируют!!! У себя я тянул сам, а электрики за пузырь справку написали, будто они делали

Помогите, пожалуйста, рассчитать необходимое количество автоматов, узо, чтобы определиться со щитком в квартиру (нужное количество постов в щитке).

А это уже от вашей фантазии зависит и кармана))))

Не забываем установить аватар, заполнить профиль, и создать свой блог

https://homemasters.ru/

 20А, на которые рассчитана доисторическая пробка как-то маловато

как часто перегорала эта пробка?

не потянет проводка больше - пока оставьте на 20А и тоже пробку (если весь щиток переделывать не хотите)

 

ВОПРОС №3. Хочу поставить два вводных автомата

одним будет пробка, вторым поставь двухполюсной автомат 20А

 

ВОПРОС №4. Какой провод посоветуете в моем случае протянуть от щитка на лестнице до щитка в квартире? Тянуть нужно в металлорукове, 16 мм. подойдет?

вот тут я бы протянул с запасом 3*6мм2 (если хату продавать не собираетесь) 

 

Планирую делать так:

  • Вводной двухполюсный автомат (занимает 2 места);
  • На каждую комнату по два однополюсных автомата, на розетки и на освещение (займут 6 мест);
  • Коридор, туалет, прихожую мы объединим (всего три светильника со светодиодами и две розетки), нужно будет два однополюсных автомата, на розетки и на освещение (займут 2 места)
  • Вопрос что ставить на ванну, нужно ведь узо + автомат? В ванне есть розетка (к ней максимум подключается фен). Надо ли ставить два автомата на свет и на розетку?
  • На кухню на розетки и свет два автомата. (займут 2 места). А на стиральную машинку узо и автомат (или использовать одно узо на ванну и на стиралку) или как?

тут вариантов море, но если смотреть вариант выше то :

вводной, узо где на розетки? можно одно на всё поставить после вводного

нет смысла по 2 автомата на каждую комнату (но можно и твой вариант оставить) свет можно на всю квартиру кинуть через 2 автомата, розетки тоже поделить  (план квартиры нужен)

на ванну узо и автомат на 16А если хочется можно и  свет сюда же завести

на кухню только на розетки 2 автомата надо

Слишком много вопросов за раз, надо двигаться постепенно, чтобы решить все вопросы последовательно

Будем стараться, просто думал заказать пока щиток (под заказ и ждать долго) и счетчик, пока разбираться со вводным кабелем буду. А во щиток пока не могу подобрать.  :( 

зависит от выделенной мощности на квартиру, узнать можно в энергоснабжающей организации, все равно ведь по счетчику туда поедете.

Позвонил сегодня в сбытовую компанию, сказали что 3 квт (получается 13.6А) на квартиру с газовой плитой и 7 квт (получается 31.8А) на квартиру с электрической плитой. Бред какой-то. Буду обращаться в ЖКС, может там чего дельное скажут.

как часто перегорала эта пробка? не потянет проводка больше - пока оставьте на 20А и тоже пробку (если весь щиток переделывать не хотите)

Пока не перегорала ни разу, но ведь в квартире стоят пробочные автоматы на 16А, которые сработают быстрее её. Не помню когда уже они отключались в последний раз, сейчас техника все новая, класс энергопотребления А и выше, поэтому вполне хватает. Но думаю все же если одновременно включить стиральную машину, компьютер, парочку телевизоров и еще микроволновку, то пробки сработают. Хотя микроволновка просто греть слабо начинает, у нас в доме по вечерам частенько такое.

одним будет пробка, вторым поставь двухполюсной автомат 20А

Просто доисторическая пробка разрывает только фазу, я бы хотел чтобы оба канала были разорваны. Это бред конечно (если в квартирном щитке ставить вводной двухполюсный автомат)... Но более весомый аргумент, это чтобы соединить через двухполюсный автомат (ну или просто рубильник) более менее нормально старый алюминиевый провод в стояке и с медным, который пойдет уже в квартиру.

вот тут я бы протянул с запасом 3*6мм2 (если хату продавать не собираетесь) 

Тоже пока к данному варианту склоняюсь, разницы для меня по сути никакой, ну чуть дороже может кабель стоит, а так будет с запасом. Вдруг рано или поздно в рамках планового обслуживания нам в стояках заменят старые провода на новые и поднимут выделяемую мощность на квартиру. Только тогда уж 2х6мм2, земли то все равно нету, а сделать её можно только если проводить капитальный ремонт дома, да и вряд ли будут даже в таком случае заморачиваться. 

Сразу вопрос, какой именно кабель лучше для этого использовать?

план квартиры нужен

Прошу меня простить, я далеко не электрик. План Вам обычный нужен или именно с примерным количеством и расположением розеток, выключателей и т.д. и т.п.? Обычный простой план могу отсканировать или отрисовать и вставить в сообщение.

Заранее всем большущие спасибо за помощь!

Только тогда уж 2х6мм2, земли то все равно нету, а сделать её можно только если проводить капитальный ремонт дома, да и вряд ли будут даже в таком случае заморачиваться. Сразу вопрос, какой именно кабель лучше для этого использовать?

Ни в коем случае.Закладывай 3х6мм2 если будут стояк реконструировать,то и землю будут тянуть.

Ты ж Питерский? Бери ГОСТовский кабель Севкабеля.У вас по идее должно быть такое в магазинах (бери в специальных электромонтажных типа ЭТМ,Минимакс,Русский свет и т.д. в Леруа,ОБИ за такими делами не катайся).Толковые производители Кольчугинский Электрокабель, РЭК (Prysman), Алюр . Короче смотри на маркировку должно быть ГОСТ Р 53769-2010 или ГОСТ Р 53768-2010 и только они! Мастера поправят если что т.к. я юзер простой.


План Вам обычный нужен или именно с примерным количеством и расположением розеток, выключателей и т.д. и т.п.?

Конечно.Так же желательно указать где будут стоять энергожрущие приборы типа стиралки и т.д. Нужно знать нагрузку на линии. Экономить на материалах не советую электрику больше не переделаете.Все хотелки лучше заранее вдумчиво продумать,где может понадобиться розетка в будущем - может кондиционер надумаете ставить,может бойлер к примеру хотя сейчас в планах нет и т.д.Лучше не торопитесь возьмите план пройдитесь по квартире нарисуйте всё,с домочадцами посоветуйтесь - у них тоже хотелки могут быть :)

Будем стараться, просто думал заказать пока щиток (под заказ и ждать долго) и счетчик, пока разбираться со вводным кабелем буду. А во щиток пока не могу подобрать.  :( 

Позвонил сегодня в сбытовую компанию, сказали что 3 квт (получается 13.6А) на квартиру с газовой плитой 

щит заказывать поздновато (цены на 40% скаканули) надо искать на остатках у крупных сетивиков (они еще не успели переотценку сделать)

про 3кВт ну почти так и есть, оставляй на 25А и не парься, иначе спалите стояк (пока по любому соседи будут крайними)

 

Сразу вопрос, какой именно кабель лучше для этого использовать?

бери любой ввг нг 3*6

план - да хотя бы пустой

бери в специальных электромонтажных типа ЭТМ,Минимакс,Русский свет и т.д. в Леруа,ОБИ за такими делами не катайся

ты уж не обижайся но с точностью до наоборот, за неделю остатки уже выгребли, а всё новое по новой цене, а вот у гипермаркетов (про Оби и Леруа не скажу) очень вкусная цена (мониторю 3 неделю) - это по поводу цены, а по поводу качества да ему наверное по барабану, 3*6 для него уже с запасом (даже если провод ТУшный)

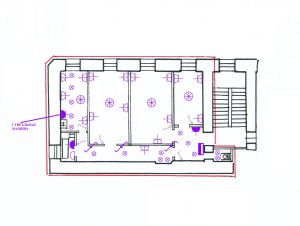
Набросал примерный план, честно говорю я совсем в этом не специалист, поэтому и прошу помощи.

Обозначения помещений: 

post-97344-0-26654400-1418343309_thumb.jpg

План (электрика):

post-97344-0-49081300-1418343315_thumb.jpg

Обозначения:

post-97344-0-09826300-1418343389_thumb.jpg
 

Собственно пока выношу вопрос №5, т.к. очень хочу уже заказать щиток и счетчик, пока еще они не сильно подорожали.

ВОПРОС №5. Помогите, пожалуйста, рассчитать необходимое количество автоматов, узо, чтобы определиться со щитком в квартиру (нужное количество постов в щитке).

Квартира имеет 3 комнаты, раздельные прихожую и коридор, туалет, ванну и кухню (плита газовая) + стиральная машина.

Планирую делать так:

  • Вводной двухполюсный автомат (занимает 2 места);
  • На каждую комнату по два однополюсных автомата, на розетки и на освещение (займут 6 мест);
  • Коридор, туалет, прихожую мы объединим (всего три светильника со светодиодами и две розетки), нужно будет два однополюсных автомата, на розетки и на освещение (займут 2 места)
  • Вопрос что ставить на ванну, нужно ведь узо + автомат? В ванне есть розетка (к ней максимум подключается фен). Надо ли ставить два автомата на свет и на розетку?
  • На кухню на розетки и свет два автомата. (займут 2 места). А на стиральную машинку узо и автомат (или использовать одно узо на ванну и на стиралку) или как?

По поводу узо вот не очень понимаю, кто-то защищает все цепи узо, кто-то только ставит на ванную и на стиральную машину, посоветуйте как будет лучше.


про 3кВт ну почти так и есть, оставляй на 25А и не парься, иначе спалите стояк (пока по любому соседи будут крайними)

Сегодня ходил в ЖКС, там сказали что никакой документации у них нету, ничем помочь не могут, предложили вызвать электрика, но пока этого делать не стал.

Сейчас у меня пробка на 20А, автомат на 25А покупать всё же тогда и не мудиться дальше с вызовом электрика?

А почему соседи будут крайними?)

Плита газовая? Духовка?

Давайте посчитаем, например такой вариант:
Розетки
- Кухня1
- Кухня2
- Комната1
- Комната2
- Комната3

- Ванная + Прихожая + Коридор

Свет

- Кухня + Комната1 + Комната2 + Комната3

- Коридор + Прихожая

- Ванная + Туалет 

Всего 8 позиций. 

Плюс вводной 2 поз., плюс счётчик 5 поз., плюс напр. 2 УЗО - 4 поз.

Итого 19 поз.

Т.е. можно взять щиток на 2 линейки по 12 поз. - 24 поз.

Меньше смысла брать нет (хотя и можно ужаться по позициям), с запасом щиток удобнее, можно визуально/структурно разделить его части. Если взять щиток на 3 линейки - будет ещё кучерявей, но это уже для гурманов (напр. УЗО еще добавить можно, Реле Напряжения).

Если в перспективе появятся элементы комфорта типа Водонагревателей или Тёплого Пола - это тоже нужно учитывать в щите.

ты уж не обижайся но с точностью до наоборот, за неделю остатки уже выгребли, а всё новое по новой цене, а вот у гипермаркетов (про Оби и Леруа не скажу) очень вкусная цена (мониторю 3 неделю) - это по поводу цены, а по поводу качества да ему наверное по барабану, 3*6 для него уже с запасом (даже если провод ТУшный)

Да какие обиды-то :) вы этим работаете,это ваш хлеб,вы больше и разбираетесь. Я электрикой у себя в начале года занимался,и быть может больше никогда и не буду заниматься.У меня данные на начало года.Там с еврами другая ситуёвина была,хотя и тогда уже цены начали скакать.

Но я бы на материалах не экономил. Инженерка : электрика,сантехника - очень важный этап на котором лучше не экономить т.к. для себя делается,вмуровывается в стены и хоронится минимум лет на 20-30. Я б если денег впритык на обойчиках и красочках экономил т.к. это в любой момент можно переиграть.

Я в итоге покупал кабель от РЭК для сравнения ходил с куском в Леруа,то что там продаётся даже с надписями ГОСТ,имеет разницу в сечении даже невооружённым взглядом замечаемую.Брал для себя-любимого так что остановился на брендовых материалах.Но тут хозяин-барин конечно.В Леруашнике кстати продаваны всем усиленно шввп толкали...


По поводу узо вот не очень понимаю, кто-то защищает все цепи узо, кто-то только ставит на ванную и на стиральную машину, посоветуйте как будет лучше.

Лучше конечно вообще на всё т.к. УЗО - это ваша личная (и домочадцев) безопасность.Но это реально дороже и более ёмко для щитка.Если хотите сэкономить,то постарайтесь на розеточные группы хотя бы узо заложить.У вас ограничения по бюджету (понятно,что это тяжело,но делаете для себя же) и по размеру щитка есть?

Всего 8 позиций.

Обсчитался - 9 позиций. Итого 20 поз.

ПыСы Кстати, кто знает, отчего так причудлива возможность редактирования сообщений - где-то есть, где-то нет, или я некую логику не улавливаю :)?

у меня 8 однополюсных 5 розетки, 2 или 3 на свет, 3 узо (санузел-СМ, кухня, розетки), вводной, счетчик - это 22, ну минимум 24 модуля надо брать

Обсчитался - 9 позиций. Итого 20 поз.

у меня 8 однополюсных 5 розетки, 2 или 3 на свет, 3 узо (санузел-СМ, кухня, розетки), вводной, счетчик - это 22, ну минимум 24 модуля надо брать

Понял, спасибо. Место позволяет практически любой щиток поставить, но навесной. Думаю ставить металлический, пластиковый как-то доверия не вызывает.

  • Такой вопрос, в магазине есть щитки распределительные (где только DIN рейки) и учетно-распределительные (где DIN рейки и место под счетчик). Счетчик наверное буду брать компактный, с DIN креплением.
  • Т.е. в общем логично брать именно распределительный, но только там нету окошечка (практически ни в одном нету, за исключением пластиковых), поэтому придется каждый раз для списания показаний открывать дверцу. Конечно небольшая проблема, но все же.
  • Есть еще вариант купить обычный большой счетчик не на ДИНе или переходник с крепления обычного счетчика на DIN и поставить все это добро в учетно-распределительный шкаф с окошком. Что посоветуете из личного опыта? Спасибо!

Плита газовая? Духовка?

Давайте посчитаем, например такой вариант:

Розетки

- Кухня1

- Кухня2

- Комната1

- Комната2

- Комната3

- Ванная + Прихожая + Коридор

Свет

- Кухня + Комната1 + Комната2 + Комната3

- Коридор + Прихожая

- Ванная + Туалет 

Всего 8 позиций. 

Плюс вводной 2 поз., плюс счётчик 5 поз., плюс напр. 2 УЗО - 4 поз.

Итого 19 поз.

Т.е. можно взять щиток на 2 линейки по 12 поз. - 24 поз.

Меньше смысла брать нет (хотя и можно ужаться по позициям), с запасом щиток удобнее, можно визуально/структурно разделить его части. Если взять щиток на 3 линейки - будет ещё кучерявей, но это уже для гурманов (напр. УЗО еще добавить можно, Реле Напряжения).

Если в перспективе появятся элементы комфорта типа Водонагревателей или Тёплого Пола - это тоже нужно учитывать в щите.

  • Плита газовая, водонагревателей точно не планируется, теплый пол маловероятно.
  • В целом согласен, только вопрос по поводу УЗО, как его и где лучше ставить или единого мнения нету? Просто кто-то вообще на всё его ставит, кто-то только на те помещения, где есть контакт с водой, типо ванны и кухни.
  • По поводу бюджета, я буду делать все постепенно, по мере ремонта в квартире. Поэтому по бюджету ограничений особо и нету, потому как сразу все и не придется покупать.
  • Реле напряжения хз, есть ли такая необходимость в нем? У меня пока тфу тфу тфу даже при сегодняшней старинной проводке ни один прибор из строя не вышел.

Что посоветуете из личного опыта?

Пользоваться Вам, потому делайте чтоб устраивал внешний вид и удобство - сделать можно всяко. Однако с окошком в дверце надо учитывать что счётчик должен стоять против него, соотв. быть по центру, что сказывается на компоновке автоматов (слева м/оказаться пустые позиции).

пластиковый как-то доверия не вызывает.

Смотря какие условия эксплуатации, в жилом помещении нормально + решается вопрос с видимостью счётчика, да и состояние автоматов видеть совершенно не лишне.

любой щиток поставить, но навесной

Не возможности выбрать нишу?

Пользоваться Вам, потому делайте чтоб устраивал внешний вид и удобство - сделать можно всяко. Однако с окошком в дверце надо учитывать что счётчик должен стоять против него, соотв. быть по центру, что сказывается на компоновке автоматов (слева м/оказаться пустые позиции).

Смотря какие условия эксплуатации, в жилом помещении нормально + решается вопрос с видимостью счётчика, да и состояние автоматов видеть совершенно не лишне.

Не возможности выбрать нишу?

К сожалению нету, дом старый, выдалбливать кирпич на глубину щитка очень не хочется, да и опасно. А уже "готовых" ниш нету. Думаю повесить пока навесной, потом если вдруг решу стены обшивать гипроком, то щит маленько и утопится. У меня сейчас старый счетчик и пробки практически под самым потолком находятся, думаю на их месте и повесить щит (больше просто некуда). 

И еще вопрос в догонку. Первым делом хочу заменить провод на свет в туалете и подключить вентилятор. Т.е. пока заменю провод от распред коробки до выключателя и от распред коробки до лампочек и вентялятора. На лампочки и на вентилятор хочу протянуть отдельный канал.

  1. В туалете всего 2 светодиодные лампочки по 4W, а вентилятор на 14w. Каким проводом лучше все это дело подключать, не уж то NYM 2Х1.5 тянуть?
  2. Проводку хочу сделать над потолком наружно по стене в ПВХ гофре, потолок реечный алюминиевый, можно ли тянуть в ПВХ гофре? И сколько проводов можно протянуть в одной гофре (каналы на вентилятор и свет хочу отдельные)?

И по поводу выбора счетчика. Думаю все же брать на DIN-рейке двухтарифный. Среди рекомендуемых сбытовой компанией понравилось две модели, какую из них посоветуете?

  1. Энергоучет ЭУ 20-33 IMD
  2. Тайпит НЕВА 123 AS OP 
не уж то NYM 2Х1.5 тянуть?
Да, он для стационарной проводки.
над потолком наружно по стене в ПВХ гофре, потолок реечный алюминиевый, можно ли тянуть в ПВХ гофре?
Можно
сколько проводов можно протянуть в одной гофре
2-3 кабеля.

В туалете всего 2 светодиодные лампочки по 4W, а вентилятор на 14w. Каким проводом лучше все это дело подключать, не уж то NYM 2Х1.5 тянуть?

Да, он для стационарной проводки.

  • Т.е. что на вентилятор, что на любой свет (пускай даже светодиодный) надо тянуть именно NYM 1.5 квадрата? Еще такой вопрос тогда, а многожильные кабели типо ПВС для чего применяются? И плоские/круглые? Просто для удобства монтажа, типо где удобнее проложил плоским (например под штукатурку, если неглубоко убираешь), а многожильные мягче, его где-нибудь где удобнее мягким тянуть, так получается?
  • И т.е. ПУЭ допускают прокладку 2-3 кабелей с 2-3 жилами в одной гофре? Я просто читал ПУЭ, но чего-то не понял этот момент...

Спасибо за советы! Извиняюсь, что все по 100 раз спрашиваю, но электрика дело такое...

Для публикации сообщений создайте учётную запись или авторизуйтесь

Вы должны быть зарегистрированным пользователем, чтобы оставить комментарий

Создать учетную запись

Зарегистрируйтесь в нашем сообществе.

Зарегистрироваться

Войти

Уже есть аккаунт? Войти в систему.

Войти

Или войти с помощью одного из сервисов



  • Наши рекомендации

    • Дома из сруба: идеальное сочетание уюта и прочности.
      Строительство собственного дома является важной вехой в жизни любого человека, поскольку оно знаменует собой важное событие. Выбор строительных материалов имеет огромное значение для создания теплого и функционального жилища. На протяжении всей древней истории древесина была распространенным материалом для строительства домов, что отразилось на различных культурах мира.

      • 0 ответов
    • Аккумуляторные пилы  SCW и  SCM  22-A
      После того как провёл тесты, приступил к самому главному. Поменять диски местами, и проверить, как инструмент на это отреагирует, ведь они внешнее и походу внутренне практически одинаковые, пила по дереву конечно более навороченее, есть настройки угла наклона и можно на шину посадить через адаптер.

      • 4 ответа
    • Люк для кошек своими руками
      Разумеется давно придуманы и продаются специальные лючки для кошек, которые можно врезать в дверь, но мы ведь не ищем легких путей . Да и по зоомагазинам я не хожу, а "гугление" показало, что такие люки для кошек стоят относительно не дешево. В то же время под рукой были два "копеечных" сантехнических пластиковых лючка для ГКЛ. Все что оставалось, так это обломать фиксаторы крышек, что бы они открывались в обе стороны, ровно выпилить отверстие в двери, да вклеить симметрично эти лючки.

      То, что получилось видно на фото. Разумеется это не для тех, у кого "дизайнерский ремонт", но для обыкновенной квартиры вполне подходит. Недостатков не замечено, животных и людей всё устраивает .


      Реакцию форумчан на этот люк можно узнать в этой теме https://homemasters.ru/...me/?p=330637

        • Ого
      • 6 ответов
    • Как построить теплый дом, не тратя лишних денег
      Строительство гостевого дома решил выделить в отдельную тему, так будет меньше путаницы.


        • Спасибо
        • Нравится
      • 259 ответов
    • Кажись всё или строительный пылесос с тройной мультициклонной ступенью очистки
      Кажись всё или строительный пылесос с тройной мультициклонной ступенью очистки

        • Нравится
      • 16 ответов
    • Газовые котлы: эффективное, экономичное и экологичное решение для отопления вашего дома
      В современном мире, где комфорт и устойчивость стали ключевыми аспектами повседневной жизни, выбор правильного источника отопления дома становится особенно актуальным. Газовые котлы, сочетая в себе преимущества эффективности, экономичности и экологичности, представляют собой одно из наиболее популярных решений для обеспечения комфортной температуры в жилых и коммерческих помещениях.

      • 0 ответов
    • Подходы к ремонту старых домов в России
      В России сотни тысяч старых домов, многие из которых являются не только свидетельством исторического наследия, но и отражением уникальной культуры и традиций страны. Эти дома, будь то деревянные избы или старинные каменные постройки, сохраняют в себе дух времени и рассказывают историю поколений.

      • 0 ответов
    • Вторая жизнь дивана: искусство ремонта мягкой мебели своими руками
      В эпоху беспрерывного потребления и стремления к новизне, ремонт старой мягкой мебели своими руками приобретает не просто практическое, но и глубоко философское значение. Это действие как знак уважения к труду мастеров, которые вложили свое мастерство в создание диванов, кресел и пуфов, и как воплощение идеи устойчивого потребления. С каждым возвращенным к жизни предметом мебели, мы не только сохраняем историю и уникальность каждого изделия, но и противостоим бездумному обновлению интерьера за счет экологии и рационального использования ресурсов.

        • Нравится
      • 0 ответов
×
×
  • Создать...

Важная информация

Мы разместили cookie-файлы на ваше устройство, чтобы помочь сделать этот сайт лучше. Вы можете изменить свои настройки cookie-файлов, или продолжить без изменения настроек.