Перейти к содержанию
Форумы о ремонте и строительстве

Укладка ламината. Как ложить ламинат?

Оценить эту тему:


Рекомендуемые сообщения

Визуально просматривал, не понял, что за скотч такой пока картинку не открыл отдельно. Я так понял такой порядка 10$ стоит 50м. Не дёшево однако. А стыков проклеивать надо немеряно. Куплю наверное обычный малярный.

Армированным скотчем пробковую подложку склеивать?.. Ну это... Это, типа, из пушки по воробьям палить.

Остальные виды скотча со временем под уже уложенным ламинатом теряют свои клеющую способность и отстают от подложки. А этот держит. Потому и советую.

Ты можешь делать, как хочешь. Я даю совет как лучше. Можешь дать совет как еще лучше - дай. А нет, проходи мимо.

ЗЫ: ты явно ко мне неровно дышишь. Ты в темах про полы людям начинаешь "помогать" советом только после меня, зачастую оспаривая мою точку зрения. Забавно то, что если я не пишу, то и ты не пишешь. Это не сложно промониторить, почитав твои посты.

Вот после таких укладчиков швы и взуваются. А я езжу переделываю.

Ну раз уж у тебя такой богатый опыт переделок, расскажи тупому шабашнику, что плохого происходит в таких узлах. Только без собственных фантазий и домыслов. На конкретных примерах.

post-2569-1312404340_thumb.png

Сообщение №429 в самом низу прочитай сначала. Я тебе этот же вопрос чуть раньше задал. ЗЫ: Андрей, остынь. Ты меня уже про шлифмашину и высверливание заплаток насмешил.

тупому шабашнику

Заметь, я этого в твой адрес не говорил.

Я даю совет как лучше. Можешь дать совет как еще лучше - дай.

Хочешь конкретики? Хорошо. Склеивать полосы пробковой подложки под ламинат дорогим армированным скотчем - бессмысленный перерасход средств. С этой функцией прекрасно справляется обычный упаковочный скотч. Чем бы не склеивать пробку, рваться она будет не по месту склеивания, а в любом другом, где неосторожно её побеспокоишь. Так зачем платить больше? Причин вижу три. Или незнание свойств материала. Или понты, типа, дешёвкой не работаю. Или клиент уже купил, и работаем тем, что в наличии.

ЗЫ: ты явно ко мне неровно дышишь.

А потому, что в тебе себя узнаю много лет назад. :) Та же самоуверенность, та же безапелляционность суждений. Нахватался вершков, несколько удачных работ, много старания и усердия, и возомнил, что всё знаю, всё умею.А потом вдруг - бац - а нихрена. Оказывается не такой уж я суперский мастер. Учиться ещё и учиться. И до сих пор учусь. Звёздной болезнью не только эстрадные звёзды болеют.Ещё рекомендую усвоить несколько простых истин. Если ты что-то не умеешь делать, не значит, что это невозможно сделать.Если ты что-то делаешь так, не значит, что это нельзя сделать иначе.
(изменено)

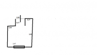
post-71202-1312409639_thumb.png

это план кухни. ужасно криворуко сделано, по-другому не получилось.

помогите, пожалуйста, рассчитать кол-во ламината. ну с запасом, конечно. (в магазине пообещали весь непригодившийся взять обратно). в продаже есть 125см (германия) и 183 (или 185см) (не знаю чей)

кажется, я переоценила свой пол. сказали его ровнять и ровнять ещё. а если я сфотаю, тут понятно будет, нужно ли его ровнять? (не хочу ровнять, совсем не хочу. ремонт край закончить к школе надо)

Изменено пользователем Пчела

Причин вижу

незнание свойств материала.

Раскусил меня. ЗЫ: млять, вот лично мне этот геморой с фотками (когда каждые пять минут каждую операцию фоткаешь) нах ненужен. Мне это нигде, кроме форума, не нужно. А тут потом еще доказывать приходится, что не долбо...б. Ох, Андрей честное слово, не пойму, чем моя техника отличается от твоей. Уверен, все тоже самое, лишь некоторые наработки (порой ценой своих же ошибок), которыми я поделился. Но тут люди меня начинают пытаться обсмеять. Вот я уже повторял, что я не лезу в тему ГКЛ (хотя и его я поделал немало), потому как там есть люди, намного квалиффицированнее меня. А есть люди (как правило, они уже в возрасте и многолетним опытом), которым ну покоя не дает, что есть молодые, которые тоже могут хоть чему-то но научить. Ну выложи ты свой мастер-класс с заплатками, кто ж против. Ладно, дальше сам. Удачи. ЗЫЫ: Помниться здесь был пару раз Верег, очень много у него на другом форуме инфы полезной с фотками. Но на этом форуме он не сидит (в основном благодаря тебе).

Ой, дядьки, а что за дрязги? Ща "по ушам" надаю :D

Phoenix, ты как-то очень резко на критику реагируешь. Да и, по большому счёту, её тут особо и не было. Ты высказался, другие тоже своё мнение озвучили, а кому надо, тот сам выберет лучший, для него способ. За фотки твои спасибо, лично я их все просматриваю.Очень информативны.

FugenFьhrer, если смотреть со стороны, как раз старается тебе помочь, но, учитывая что он всё же не Макаренко, получается это не всегда корректно :) Это надо просто принять и вычитывать только основную суть сообщения ;) Ведь как бы не было написано, а видно - человек тебе добра желает. Чтоб вот этого

порой ценой своих же ошибок

было как можно меньше. Значительно лучше уметь учиться именно на чужих ошибках. Глянь как меня Димп, за любое неосторожное слово "нагибает" :) И ничего, я и не думаю обижаться, потому что понимаю - то что он пишет важно в первую очередь для меня, а не для кого-то. И я ему, за это, безмерно благодарен.

Что касается этого

Ты в темах про полы людям начинаешь "помогать" советом только после меня

то тут, кмк, все просто - FugenFьhrer на форум заходит много позже тебя, + у него ещё и работа по форуму есть, потому и не успевает тебя "опередить" .

Про скотч ещё хочу сказать. Малярный или упаковочный к пробке почти совсем не липнет. Армированный клеиться на ура, что Дима и сказал. Кому хочется сэкономить пару баксов, берёт малярный, и потом тратит свои нервные клетки пытаясь им зафиксировать эту самую пробку. Особенно весело это происходит когда доходишь до внутреннего конец рулона. Что тут лучше, дешевле и быстрее, я лично судить не берусь. Я, кое где, вообще эту пробку не склеивал между собой, и ничего, ни куда не делась :)

П.С. Очень надеюсь что меня поймете правильно. Никого обидеть даже в мыслях не держал :)

Так что попрошу вернуться к теме ;)

Задам свой вопрос тут.Хочу положить один ламинат в 2-х комнатах, коридоре между ними, прихожей и коридоре на кухню, лабиринт однако.И вот думаю, как лучше?Сначала думал положить без разрывов и порожков между комнатами, а потом засомневался, не зряж зазоры по периметру оставляют...Нужны ли зазоры между комнатами так же? или одним полотном класть всё можно?

Sta7ik

Вот тут тема эта освещена достаточно хорошо: Ламинат одним полотном

Я решился таки на диагональную укладку (дабы уменьшить максимальную длину единной полоски ламината) без порогов. А вообще всё зависит от требований производителя (максимальная длина/ширина без порогов) и плана Вашего "лабиринта".

ужас... там подковырнули, тут подковырнули. пол - фигня полная. прошу совета, чем максимально быстро и сравнительно качественно его выровнять? пока начали с того, что его ..хм.. скребут. (?) и ещё. в магазине НЕТ (!) никакой подложки под ламинат. продавец сказал, что когда-то было.. вроде бы.. полистирол..будет ли ещё неизвестно. на вопрос что берут вместе с ламинатом для подложки - ничего не знает, просто ламинат берут и всё. чё-то я не понимаю..неужто без подложки можно? оно, конечно, хорошо бы, чем проще тем лучше, только что из этого получится в итоге и на сколько его хватит..

Про скотч ещё хочу сказать. Малярный или упаковочный к пробке почти совсем не липнет. Армированный клеиться на ура

что есть то есть, в общей смете это не такая уж большая величина, да и мастеру удобнее работать

и ещё. в магазине НЕТ (!) никакой подложки под ламинат.

да как это нету, я уже в такое не смогу поверить, должно быть, без подложки ламинат нельзя укладывать

Подписываемся на тему День за днём, моя работа https://homemasters.ru/...esta-raboty/ и на мой инстарам https://www.instagram.c...gda35remont/

Принимаю заказы на мебель из слэбов

 

Пчела, ни разу даже и не слышал, чтоб ламинат укладывали без подложки. Ни разу не видел магазин, торгующий ламинатом и не торгующий подложкой. Ваш явное исключение. Может стоит поискать другой?

Про скотч ещё хочу сказать. Малярный или упаковочный к пробке почти совсем не липнет.

Странно. Может скотч у меня какой-то не такой, или клею его неправильно? :) Липнет к пробке намертво. Пытаешься отодрать его, а он, зараза, пробку рвёт рядышком, но отклеиваться не хотит.:)

post-2569-1312487211_thumb.jpg

Тут ещё на производителя надо смотреть. Есть у меня дешёвенький упаковочный, а есть от теса. Его бы я назвал - суперупаковочный. Я им детские книжки подклеиваю. Бумагу держит отлично, а вот пробку я им, каюсь, клеить не пробовал. Ваших цен я не знаю, но именно этот, у нас, стоит ненамного дешевле армированного. А армированный, всё же, у меня лично, гораздо популярнее. Где я его только не использовал :) Короче, тут как с яйцом, никогда к общему мнению не придем. Нечего даже и пытаться :D

Щас заканчиваю штукатурить стены и буду делать натяжной, после этого хочу ламинат может дадите ссылочки где про него почитать так как много страниц уже и суть не могу уловить. Вообще насколько ламинатт для спальни щас актуален? Почему именно по диагонали ложить? Надо ли менять полы в хрущевке если они не скрипят с 70 года не менялись только фанерой накрыли в 98 году?

Для публикации сообщений создайте учётную запись или авторизуйтесь

Вы должны быть зарегистрированным пользователем, чтобы оставить комментарий

Создать учетную запись

Зарегистрируйтесь в нашем сообществе.

Зарегистрироваться

Войти

Уже есть аккаунт? Войти в систему.

Войти

Или войти с помощью одного из сервисов



  • Наши рекомендации

    • Подходы к ремонту старых домов в России
      В России сотни тысяч старых домов, многие из которых являются не только свидетельством исторического наследия, но и отражением уникальной культуры и традиций страны. Эти дома, будь то деревянные избы или старинные каменные постройки, сохраняют в себе дух времени и рассказывают историю поколений.

      • 0 ответов
    • Люк для кошек своими руками
      Разумеется давно придуманы и продаются специальные лючки для кошек, которые можно врезать в дверь, но мы ведь не ищем легких путей . Да и по зоомагазинам я не хожу, а "гугление" показало, что такие люки для кошек стоят относительно не дешево. В то же время под рукой были два "копеечных" сантехнических пластиковых лючка для ГКЛ. Все что оставалось, так это обломать фиксаторы крышек, что бы они открывались в обе стороны, ровно выпилить отверстие в двери, да вклеить симметрично эти лючки.

      То, что получилось видно на фото. Разумеется это не для тех, у кого "дизайнерский ремонт", но для обыкновенной квартиры вполне подходит. Недостатков не замечено, животных и людей всё устраивает .


      Реакцию форумчан на этот люк можно узнать в этой теме https://homemasters.ru/...me/?p=330637

        • Ого
      • 6 ответов
    • Газовые котлы: эффективное, экономичное и экологичное решение для отопления вашего дома
      В современном мире, где комфорт и устойчивость стали ключевыми аспектами повседневной жизни, выбор правильного источника отопления дома становится особенно актуальным. Газовые котлы, сочетая в себе преимущества эффективности, экономичности и экологичности, представляют собой одно из наиболее популярных решений для обеспечения комфортной температуры в жилых и коммерческих помещениях.

      • 0 ответов
    • Как построить теплый дом, не тратя лишних денег
      Строительство гостевого дома решил выделить в отдельную тему, так будет меньше путаницы.


        • Спасибо
        • Нравится
      • 259 ответов
    • Вторая жизнь дивана: искусство ремонта мягкой мебели своими руками
      В эпоху беспрерывного потребления и стремления к новизне, ремонт старой мягкой мебели своими руками приобретает не просто практическое, но и глубоко философское значение. Это действие как знак уважения к труду мастеров, которые вложили свое мастерство в создание диванов, кресел и пуфов, и как воплощение идеи устойчивого потребления. С каждым возвращенным к жизни предметом мебели, мы не только сохраняем историю и уникальность каждого изделия, но и противостоим бездумному обновлению интерьера за счет экологии и рационального использования ресурсов.

        • Нравится
      • 0 ответов
    • Аккумуляторные пилы  SCW и  SCM  22-A
      После того как провёл тесты, приступил к самому главному. Поменять диски местами, и проверить, как инструмент на это отреагирует, ведь они внешнее и походу внутренне практически одинаковые, пила по дереву конечно более навороченее, есть настройки угла наклона и можно на шину посадить через адаптер.

      • 4 ответа
    • Дома из сруба: идеальное сочетание уюта и прочности.
      Строительство собственного дома является важной вехой в жизни любого человека, поскольку оно знаменует собой важное событие. Выбор строительных материалов имеет огромное значение для создания теплого и функционального жилища. На протяжении всей древней истории древесина была распространенным материалом для строительства домов, что отразилось на различных культурах мира.

      • 0 ответов
    • Кажись всё или строительный пылесос с тройной мультициклонной ступенью очистки
      Кажись всё или строительный пылесос с тройной мультициклонной ступенью очистки

        • Нравится
      • 16 ответов
×
×
  • Создать...

Важная информация

Мы разместили cookie-файлы на ваше устройство, чтобы помочь сделать этот сайт лучше. Вы можете изменить свои настройки cookie-файлов, или продолжить без изменения настроек.