Перейти к содержанию
Форумы о ремонте и строительстве

Снос междверной перегородки в несущей стене.

Оценить эту тему:


sss2010

Рекомендуемые сообщения

Опубликовано

На первой фотографии вид из прихожей.В несущей стене две двери: левая ведет в коридор (ванная, туалет и далее на кухню), правая - в комнаты. Стена между дверьми не несущая, в полкирпича. над дверьми- деревянное перекрытие, над ним слой кирпича и выше слошное бетонное (возможно армированное) перекрытие, как над окнами.На второй фотографии тот же вид.Отковырял слой штукатурки, виден слой кирпича и над ним часть бетонной балки.На третьей фотографии из комнаты в прихожую.На четвертой фотографии вид из кухни.Перепланировку уже сделал. Снес в коридоре встроенный шкаф, выломал дверь на кухню и убрал антресоль над кухонной дверью.Красным отметил линии, по которым хочу выломать часть стены.Двери из прихожей ставить не буду. Хочу выломать перегородку между дверьми на ширину несущей стены - примерно 45..50 см, убрать сверху все до бетонного перекрытия и сверху, на оба входа, сделать что-то вроде общей арки.В результате у меня расширится прихожая, будет более удобный проход из комнат в коридор, ну и т.д.Так вот вопрос: можно-ли снести перегородку под бетонным перекрытием несущей стены?Не хотелось-бы чтобы получилось как в Ярославле.

post-49037-1297404381_thumb.jpg

post-49037-1297404399_thumb.jpg

post-49037-1297404405_thumb.jpg

post-49037-1297405220_thumb.jpg

убирай не парься!!! ты сам подумай разве деревянная перегородка с кладкой наверху способна удержать плиту)????

Syma

Снести, пожалуй, можно.. Только я не понял - ты перегородку между комнатами собираешься убирать или нет?

(изменено)

убирай не парься!!! ты сам подумай разве деревянная перегородка с кладкой наверху способна удержать плиту)????

Это понятно.Двери и деревянные короба буду убирать по-любому... слой кирпича сами посыпится.

Снести, пожалуй, можно.. Только я не понял - ты перегородку между комнатами собираешься убирать или нет?

Стена (перегородка) между комнатой и коридором-кухней. Хочу убрать ту часть часть стены, которая между дверьми на ширину бетонной балки (по вертикальной линии на фото 3).На фото внизу заштриховал часть стены (полтора или два кирпича прямо под беьонной балкой), которую я хочу убрать.

post-49037-1297430032_thumb.jpg

Изменено пользователем sss2010

sss2010

Снести точно можно. Но на мой взгляд - бессмысленное решение. Я бы убрал перегородку до входа в кухню (это кухня?).

(изменено)

(это кухня?)

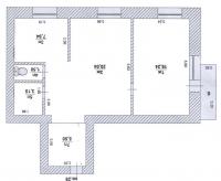
Нет. Это выход из комнаты в прихожую.Вчера под рукой не было плана квартиры, на нем более понятно, чего я хочу добиться.На левом рисунке - план БТИ, красным кружком отметил то, что хочу снести.На плане междверная перегородка изображена как несущая колонна, в реальности - это продолжение стены в полкирпича.На правом рисунке - то, что хочу получить. Встроенный шкаф в коридоре и дверь на кухню уже снес.Когда снесу эту перегородку, то визуально расширится прихожая (углубится на 40...45 см), будет удобнее проход из комнаты в коридор.Два дверных проема визуально превратятся в один и оформлять его буду тоже как один (выведу под общую арку, или еще как-то... в общем оформление еще надо обдумать).

post-49037-1297479048_thumb.jpg

post-49037-1297479060_thumb.jpg

Изменено пользователем sss2010

sss2010

Значит, кухня..

Вот такой вариант я имел в виду:

post-34154-1297494060_thumb.jpg

Это, конечно, зависит от функционала комнат, на одна, как я понял, все равно проходная.

Два дверных проема визуально превратятся в один и оформлять его буду тоже как один (выведу под общую арку, или еще как-то... в общем оформление еще надо обдумать).

А вот тут стало совсем интересно - вы хотели сказать, в один большой проем, по центру которого торчит стена? Это да. А в полноценный проем оно превратится только в моем варианте.

А между дверей разве не колонна, на которой углы плит перекрытия лежат?

А между дверей разве не колонна, на которой углы плит перекрытия лежат?

Нет, не колонна. Меня тоже план квартиры долго вводил в заблуждение. Когда стал проводить электропроводку, штробить и т.д., то понял, что это продолжение стены в полкирпича.

Бетонное перекрытие лежит на стене левее левого проема и правее правого проема.

max_fox

Подобные варианты я тоже рассматривал.

Пока еще не остановился ни на одном, буду еще думать, взвешивать + и -.

Меня сейчас интересует, можно-ли снести этот промежуток под бетонной балкой между дверьми?

Насколько я понимаю (в свое время сопромат изучал) - можно, но сомнения все-равно гложат...

max_fox? спасибо.

Сейчас сходил, посмотрел на квартирешку...

В Вашем предложении что-то есть.

Так далеко стену выламывать не буду, но на метр (или около того) можно.

Другой вопрос, по технологии, мне на голову кирпичи не посыпятся?

sss2010

Ну, если вы снизу ломать начнете, то, конечно, посыпятся..

При демонтаже перегородок нужно быть готовым к тому, что она может взять и рухнуть целиком. Меня не раз кусками гипса метр на метр накрывало. Главное - реакция. Ну, у вас кирпичи, вам проще.

  • 2 недели спустя...

Да вы что, с ума сошли давать такие советы? Ни в коем случае не сносить опору под перемычкой(вы ее назвали бетонное перекрытие, как над окном).По большому счету, там должно быть две перемычки - для каждого проема своя, но либо строители схалтурили и поставили одну цельную, либо так проектом заложено.Если одна перемычка на два проема заложена в проекте, то ее могли посчитать как неразрезную балку на трех опорах, и убрав одну опору вы превратите ее в балку опертую по двум сторонам. Это грозит увеличением пролетного момента(т.е. уменьшение несущей способности перемычки - а в ЖБ элементах разрушение происходит мгновенно), а также увеличение опорных реакций, что может вызвать скол по кирпичу на опоре, и если строители накосячили в опорной части (малая площадь опирания), то перемычка рухнет.Но если у строителей небыло коротких перымычек, и они положили одну длинную бОльшего сечения, то ничего не произойдет(хотя скол на опоре возможен), и то надо смотреть какого сечения перемычка.Так-как вы не знаете, чем думал прораб при строительстве, и не имея проекта на руках(план БТИ не всчет - это красивая картинка, не больше) не разрушайте опору ни в коем случае.

  • 1 месяц спустя...

В общем, все не так страшно.На фотографиях видно, что перегородка - не несущая.Закреплять арку планируется уголками.

post-49037-1302754466_thumb.jpg

post-49037-1302754474_thumb.jpg

post-49037-1302754482_thumb.jpg

post-49037-1302754492_thumb.jpg

Для публикации сообщений создайте учётную запись или авторизуйтесь

Вы должны быть зарегистрированным пользователем, чтобы оставить комментарий

Создать учетную запись

Зарегистрируйтесь в нашем сообществе.

Зарегистрироваться

Войти

Уже есть аккаунт? Войти в систему.

Войти

Или войти с помощью одного из сервисов



  • Наши рекомендации

    • Подходы к ремонту старых домов в России
      В России сотни тысяч старых домов, многие из которых являются не только свидетельством исторического наследия, но и отражением уникальной культуры и традиций страны. Эти дома, будь то деревянные избы или старинные каменные постройки, сохраняют в себе дух времени и рассказывают историю поколений.

      • 0 ответов
    • Дома из сруба: идеальное сочетание уюта и прочности.
      Строительство собственного дома является важной вехой в жизни любого человека, поскольку оно знаменует собой важное событие. Выбор строительных материалов имеет огромное значение для создания теплого и функционального жилища. На протяжении всей древней истории древесина была распространенным материалом для строительства домов, что отразилось на различных культурах мира.

      • 0 ответов
    • Как построить теплый дом, не тратя лишних денег
      Строительство гостевого дома решил выделить в отдельную тему, так будет меньше путаницы.


        • Спасибо
        • Нравится
      • 257 ответов
    • Газовые котлы: эффективное, экономичное и экологичное решение для отопления вашего дома
      В современном мире, где комфорт и устойчивость стали ключевыми аспектами повседневной жизни, выбор правильного источника отопления дома становится особенно актуальным. Газовые котлы, сочетая в себе преимущества эффективности, экономичности и экологичности, представляют собой одно из наиболее популярных решений для обеспечения комфортной температуры в жилых и коммерческих помещениях.

      • 0 ответов
    • Вторая жизнь дивана: искусство ремонта мягкой мебели своими руками
      В эпоху беспрерывного потребления и стремления к новизне, ремонт старой мягкой мебели своими руками приобретает не просто практическое, но и глубоко философское значение. Это действие как знак уважения к труду мастеров, которые вложили свое мастерство в создание диванов, кресел и пуфов, и как воплощение идеи устойчивого потребления. С каждым возвращенным к жизни предметом мебели, мы не только сохраняем историю и уникальность каждого изделия, но и противостоим бездумному обновлению интерьера за счет экологии и рационального использования ресурсов.

        • Нравится
      • 0 ответов
    • Люк для кошек своими руками
      Разумеется давно придуманы и продаются специальные лючки для кошек, которые можно врезать в дверь, но мы ведь не ищем легких путей . Да и по зоомагазинам я не хожу, а "гугление" показало, что такие люки для кошек стоят относительно не дешево. В то же время под рукой были два "копеечных" сантехнических пластиковых лючка для ГКЛ. Все что оставалось, так это обломать фиксаторы крышек, что бы они открывались в обе стороны, ровно выпилить отверстие в двери, да вклеить симметрично эти лючки.

      То, что получилось видно на фото. Разумеется это не для тех, у кого "дизайнерский ремонт", но для обыкновенной квартиры вполне подходит. Недостатков не замечено, животных и людей всё устраивает .


      Реакцию форумчан на этот люк можно узнать в этой теме https://homemasters.ru/...me/?p=330637

        • Ого
      • 6 ответов
    • Аккумуляторные пилы  SCW и  SCM  22-A
      После того как провёл тесты, приступил к самому главному. Поменять диски местами, и проверить, как инструмент на это отреагирует, ведь они внешнее и походу внутренне практически одинаковые, пила по дереву конечно более навороченее, есть настройки угла наклона и можно на шину посадить через адаптер.

      • 4 ответа
    • Кажись всё или строительный пылесос с тройной мультициклонной ступенью очистки
      Кажись всё или строительный пылесос с тройной мультициклонной ступенью очистки

        • Нравится
      • 16 ответов
×
×
  • Создать...

Важная информация

Мы разместили cookie-файлы на ваше устройство, чтобы помочь сделать этот сайт лучше. Вы можете изменить свои настройки cookie-файлов, или продолжить без изменения настроек.