Перейти к содержанию
Форумы о ремонте и строительстве

Помогите сделать балкон

Оценить эту тему:


smelyanin

Рекомендуемые сообщения

Опубликовано (изменено)

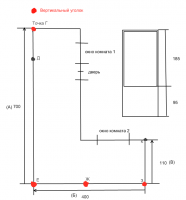
Здравствуйте уважаемые форумчане. Прошу у вас помощи в постройке, а точнее обновлении балкона. Дело в том что деревянные рамы простояли 20 лет и заклинили, этим летом придется по любому менять, хочу установить пластик но я думаю что у меня не хватит денег его полностью застеклить так как суммарная его длина 12 метров :blink: Приблизительный его план я выложил на рисунке. И так что хочу сказать:1. Есть инструменты: дрель, болгарка, электро сварка;2. По всей длине рамы и снизу и сверху надежно приварены уголки;3. Красным я выделил вертикальные уголки;Я сказал что денег на всю длину пластиковых окон не хватит, я хочу решить эту проблему таким образом, от точки Г до точки Д и от точки Е до точки К хочу обложить чем то(не знаю подойдет ли вагонка), а между ними 4 оконных блока.Вопросы:1. Что можно использовать в качестве стен место рамы? И как мне все это дело прикрепить?2. Чем утеплить нижнюю часть балкона?2. Сильно ли я затемню комнату 2?Хочу еще сказать что я живу на 8 этаже, бывают сильные ветры и град.И все очень упирается в деньги так что материалы должны быть не дорогими.Всем заранее спасибо за помощь. :)

post-61610-1300709348_thumb.png

post-61610-1300710191_thumb.png

Изменено пользователем smelyanin
(изменено)

Хочу приблизительно что то типа этого, если нужно могу сфоткать свой балкон

post-61610-1300817134_thumb.jpg

Изменено пользователем smelyanin

Я бы убивал на месте за такие курятники :)

Курятники?! Та вы шо, это ж целая оранжерея..

post-34154-1300829388_thumb.jpg

smelyanin

Извини, друг, но ты фигню придумал. К тому же балкон и "подешевле" - несовместимые понятия, смотрите в сторону алюминиевого остекления.

Мне кажется он будет симпатичнее выглядеть чем с гнилой рамой!! :angry:

smelyanin

Поставьте алюминий и не парьтесь. И утеплять не надо будет - все равно бесполезно.

Теплое остекление - это не бюджетный вариант. Там утепление дороже металлопластика выйдет, все под ключ около сотни для небольшой лоджии. На двух створках из металлопластика вы сэкономите тысяч пять.

Можете применить сотовый поликарбонат для глухих стен толстый 10мм или 16 двухкамерный ,он потеплей стекла и прозрачней чем сайдинг(между рамами окон)

Для публикации сообщений создайте учётную запись или авторизуйтесь

Вы должны быть зарегистрированным пользователем, чтобы оставить комментарий

Создать учетную запись

Зарегистрируйтесь в нашем сообществе.

Зарегистрироваться

Войти

Уже есть аккаунт? Войти в систему.

Войти

Или войти с помощью одного из сервисов



  • Наши рекомендации

    • Люк для кошек своими руками
      Разумеется давно придуманы и продаются специальные лючки для кошек, которые можно врезать в дверь, но мы ведь не ищем легких путей . Да и по зоомагазинам я не хожу, а "гугление" показало, что такие люки для кошек стоят относительно не дешево. В то же время под рукой были два "копеечных" сантехнических пластиковых лючка для ГКЛ. Все что оставалось, так это обломать фиксаторы крышек, что бы они открывались в обе стороны, ровно выпилить отверстие в двери, да вклеить симметрично эти лючки.

      То, что получилось видно на фото. Разумеется это не для тех, у кого "дизайнерский ремонт", но для обыкновенной квартиры вполне подходит. Недостатков не замечено, животных и людей всё устраивает .


      Реакцию форумчан на этот люк можно узнать в этой теме https://homemasters.ru/...me/?p=330637

        • Ого
      • 6 ответов
    • Как построить теплый дом, не тратя лишних денег
      Строительство гостевого дома решил выделить в отдельную тему, так будет меньше путаницы.


        • Спасибо
        • Нравится
      • 257 ответов
    • Кажись всё или строительный пылесос с тройной мультициклонной ступенью очистки
      Кажись всё или строительный пылесос с тройной мультициклонной ступенью очистки

        • Нравится
      • 16 ответов
    • Подходы к ремонту старых домов в России
      В России сотни тысяч старых домов, многие из которых являются не только свидетельством исторического наследия, но и отражением уникальной культуры и традиций страны. Эти дома, будь то деревянные избы или старинные каменные постройки, сохраняют в себе дух времени и рассказывают историю поколений.

      • 0 ответов
    • Вторая жизнь дивана: искусство ремонта мягкой мебели своими руками
      В эпоху беспрерывного потребления и стремления к новизне, ремонт старой мягкой мебели своими руками приобретает не просто практическое, но и глубоко философское значение. Это действие как знак уважения к труду мастеров, которые вложили свое мастерство в создание диванов, кресел и пуфов, и как воплощение идеи устойчивого потребления. С каждым возвращенным к жизни предметом мебели, мы не только сохраняем историю и уникальность каждого изделия, но и противостоим бездумному обновлению интерьера за счет экологии и рационального использования ресурсов.

        • Нравится
      • 0 ответов
    • Газовые котлы: эффективное, экономичное и экологичное решение для отопления вашего дома
      В современном мире, где комфорт и устойчивость стали ключевыми аспектами повседневной жизни, выбор правильного источника отопления дома становится особенно актуальным. Газовые котлы, сочетая в себе преимущества эффективности, экономичности и экологичности, представляют собой одно из наиболее популярных решений для обеспечения комфортной температуры в жилых и коммерческих помещениях.

      • 0 ответов
    • Аккумуляторные пилы  SCW и  SCM  22-A
      После того как провёл тесты, приступил к самому главному. Поменять диски местами, и проверить, как инструмент на это отреагирует, ведь они внешнее и походу внутренне практически одинаковые, пила по дереву конечно более навороченее, есть настройки угла наклона и можно на шину посадить через адаптер.

      • 4 ответа
    • Дома из сруба: идеальное сочетание уюта и прочности.
      Строительство собственного дома является важной вехой в жизни любого человека, поскольку оно знаменует собой важное событие. Выбор строительных материалов имеет огромное значение для создания теплого и функционального жилища. На протяжении всей древней истории древесина была распространенным материалом для строительства домов, что отразилось на различных культурах мира.

      • 0 ответов
×
×
  • Создать...

Важная информация

Мы разместили cookie-файлы на ваше устройство, чтобы помочь сделать этот сайт лучше. Вы можете изменить свои настройки cookie-файлов, или продолжить без изменения настроек.