Перейти к содержанию
Форумы о ремонте и строительстве

Оценить эту тему:


Перейти к решению Решено maos,

Рекомендуемые сообщения

Опубликовано

День добрый форумчане!
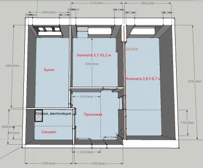
Накидал в скетчапе планировку будущей квартиры 56 кв.м. Интересует Ваше мнение стоит ли так делать или ерунда - увеличивать прихожу за счёт комнаты. Семья 2 взрослых, мальчик 5лет.

post-102961-0-94184900-1448359894_thumb.jpg

post-102961-0-73665900-1448360414_thumb.png

post-102961-0-99431400-1448360426_thumb.png

post-102961-0-64318800-1448360444_thumb.png

post-102961-0-28945200-1448360476_thumb.png

post-102961-0-61448800-1448361347_thumb.png

Интересует Ваше мнение
Зачем вы изначально создаете себе трудности в последствии? Имею в виду стену под углом и фаску в комнате с балконом? Мягко говоря бестолковое решение. Или у вас мебель будет по минимуму. Только то, что обозначили на плане? 

Вентиляционная шахта и трубы в санузле впереди справа от входа.

Накидал в скетчапе планировку будущей квартиры 56 кв.м.
Это квартира свободной планировки или Вы пытаетесь погрызть несущую стеночку? Что за стена между комнатами? Какая у нее толщина? Во 2-6 вариантах Вы рисуете там ригель. Он там есть? 
ещё вариант планировки. тоже плохо всё ?
Плохо, что в спальне дверь посередине стены, прям напротив кровати. Плохо, что в детскую нужно проходить мимо кухни. Плохо, что не кухня а проходной двор. Гардеробная у вас превратилась в кладовку вещей. Тогда уж проще оставить все как есть. Вас поселить в помещении справа от входа. Тем в закутке на 1700мм сделать именно гардеробную. Детей налево. Там вроде хватает места для двух кроватей. От двух ярусной избавляйтесь еще на стадии проектирования, если нет острой в ней необходимости. Ну а кухня с гостинной - прямо, где балкон.

Я просто не вижу необходимости перепланировки. И уж по вашим планам (как сейчас выложено) тем более. Уж извините.

вот ещё вариант планировки. тоже плохо всё ?
Детей налево.
Так нельзя. Такую реконструкцию не согласуют. Нельзя располагать жилые помещения на месте бытовых (кухонь, санузлов, пр.) Перепланировать квартиру можно, но нужно понимать, что это за дом, какой конструкции и в каких пределах это вообще допустимо.
Нельзя располагать жилые помещения на месте бытовых (кухонь, санузлов, пр.) Перепланировать квартиру можно, но нужно понимать
Мой вывод опирается, глядя на план, а судя по плану, я понятие не имею, где газ, где вода, где канализация. У автора картинок то там, то сям кухня мелькает. 
vsebastyanov

а зачем вам в первом варианте в принципе такая большая прихожая? бестолковое убиванием квадратных метров

Спасибо за интерес к моей теме !!

Вообщем вот план  квартиры без перепланировки. Указаны стояки и вент шахта. 

Стены все ненесущие, выполнены из пазогребневых плит. Имеется балка.

Газа не будет , значит , я так понимаю, кухню можно переносить.

По первому плану-там где увеличена прихожая, думал таким образом создать нечто вроде гостинной , или зоной просмотра телевизора

    :),  .. зоной где жена будет встречать подруг и красить ногти  :lol:  :lol:  :lol: .. 

По второму плану - как вариант если в комнату справа  дверь сделать из прихожей? скрин 2

post-102961-0-11415700-1448631658_thumb.jpg

post-102961-0-50733700-1448631689_thumb.png

Газа не будет , значит , я так понимаю, кухню можно переносить.
Нельзя. Есть неплохой вариант перепланировки Вашей квартиры, но он будет в исполнении недешевый. Не эконом вариант. Понадобятся раздвижные системы и вся мебель (за исключением, быть может, кровати и диванов) будет индивидуального изготовления.
Имеется балка.
Какие у ее размеры? Ширина и высота? 

Остановился на этом варианте планировки. ( вложение) .

Есть ещё идеи что изменить, улучшить, добавить?

П.С. Балка 30 на 30 +-, во всю длину.

post-102961-0-26500400-1449029919_thumb.png

Лично мне не нравится выход из ванны прямо в самое грязное место дома, перед входной дверью.

Может фаску угла ванной большую сделать и в ней дверь?

Насчёт маленького трапециевидного закутка: странно он смотрится, действительно может сделать прямые углы, или как вариант, радиусную изогнутую стену?

Не видно места для не сезонной одежды/обуви, у нас её довольно много и соотв место выделяем и в прихожей (большой шкаф) и в комнате (часть шкафа-купе).

По кухне: эргономика говорит что должен быть треугольник перемещений по рабочим местам, а не линейка. Кто-то обыгрывает подоконник как часть рабочего стола, может и здесь так сделать, оформить кухню вокруг окна.

Назначение комнат не очень понятно.

ещё идеи что изменить, улучшить,
Уже писал вам про кривую стену. На кой вам острый тупой угол ? Не понимаю.

@Alef, поясни два момента:

1.

выход из ванны прямо в самое грязное место дома, перед входной дверью

. У вас конечно климат сухой, это не критично, а вот у нас сыро ... бывает, и что характерно панель с шампунем не моют.

Хотя ТС из Подмосковья, возможно ему это не критично.

2. Как открываются двери в спальные комнаты.

1.

тут "не до жиру" , это вопрос к проектировщикам изначального варианта планировки. Выход из санузла в кухню-гостиную был бы ещё более несуразен,согласитесь.А выкраивать какой-то коридорчик,терять минимум пару кв.м. ради ...а чего ради? Я не всегда жил в "сухом климате" ,знаю и помню самые разные условия жизни. Каких-то феерических гОвен в дом не наносили даже в селе. В общем, как вопрос некой эстетики -да,согласен,но повторюсь,не до жиру при хотелках ТС.

2. Как открываются двери в спальные комнаты.

в детскую внутрь к правой от входа стене .В спалью -или наружу,или внутрь к стене под углом. В кухне-гостиную раздвижная дверь

в детскую внутрь к правой от входа стене .В спалью -или наружу,или внутрь к стене под углом.
Кстати, а существуют какие-то нормы, как должны открываться межкомнатные двери?

По размерам (ширине двери) стандарты (писаные или не писаные) есть.

Почему спрашиваю: как-то беседовал на эту тему с товарищем и он так настойчиво доказывал что есть противопожарные нормы на открытие межкомнатных дверей наружу, типа что удобнее при эвакуации (я посмеялся, но проверить не мешает).

Также интересна установка холодильника - полное отсутствие вентиляции задней стенки для него это нормально?

про двери - есть нормы для общественных заведений,и то с кучей оговорок и нюансов ,в основном требования заложены в прямой зависимости от "человековместимости" и назначения зданий. В квартирах не регламентируется.

Про холодильник -вот зачем так буквально воспринимать? :) ну не стал я рисовать решётку на панели над холодильником,обозначающую зазор в 120-150 мм между холодильником и верхней секцией. А сзади естественно есть порядка 100 мм 

Для публикации сообщений создайте учётную запись или авторизуйтесь

Вы должны быть зарегистрированным пользователем, чтобы оставить комментарий

Создать учетную запись

Зарегистрируйтесь в нашем сообществе.

Зарегистрироваться

Войти

Уже есть аккаунт? Войти в систему.

Войти

Или войти с помощью одного из сервисов



  • Наши рекомендации

    • Подходы к ремонту старых домов в России
      В России сотни тысяч старых домов, многие из которых являются не только свидетельством исторического наследия, но и отражением уникальной культуры и традиций страны. Эти дома, будь то деревянные избы или старинные каменные постройки, сохраняют в себе дух времени и рассказывают историю поколений.

      • 0 ответов
    • Аккумуляторные пилы  SCW и  SCM  22-A
      После того как провёл тесты, приступил к самому главному. Поменять диски местами, и проверить, как инструмент на это отреагирует, ведь они внешнее и походу внутренне практически одинаковые, пила по дереву конечно более навороченее, есть настройки угла наклона и можно на шину посадить через адаптер.

      • 4 ответа
    • Газовые котлы: эффективное, экономичное и экологичное решение для отопления вашего дома
      В современном мире, где комфорт и устойчивость стали ключевыми аспектами повседневной жизни, выбор правильного источника отопления дома становится особенно актуальным. Газовые котлы, сочетая в себе преимущества эффективности, экономичности и экологичности, представляют собой одно из наиболее популярных решений для обеспечения комфортной температуры в жилых и коммерческих помещениях.

      • 0 ответов
    • Люк для кошек своими руками
      Разумеется давно придуманы и продаются специальные лючки для кошек, которые можно врезать в дверь, но мы ведь не ищем легких путей . Да и по зоомагазинам я не хожу, а "гугление" показало, что такие люки для кошек стоят относительно не дешево. В то же время под рукой были два "копеечных" сантехнических пластиковых лючка для ГКЛ. Все что оставалось, так это обломать фиксаторы крышек, что бы они открывались в обе стороны, ровно выпилить отверстие в двери, да вклеить симметрично эти лючки.

      То, что получилось видно на фото. Разумеется это не для тех, у кого "дизайнерский ремонт", но для обыкновенной квартиры вполне подходит. Недостатков не замечено, животных и людей всё устраивает .


      Реакцию форумчан на этот люк можно узнать в этой теме https://homemasters.ru/...me/?p=330637

        • Ого
      • 6 ответов
    • Дома из сруба: идеальное сочетание уюта и прочности.
      Строительство собственного дома является важной вехой в жизни любого человека, поскольку оно знаменует собой важное событие. Выбор строительных материалов имеет огромное значение для создания теплого и функционального жилища. На протяжении всей древней истории древесина была распространенным материалом для строительства домов, что отразилось на различных культурах мира.

      • 0 ответов
    • Кажись всё или строительный пылесос с тройной мультициклонной ступенью очистки
      Кажись всё или строительный пылесос с тройной мультициклонной ступенью очистки

        • Нравится
      • 16 ответов
    • Вторая жизнь дивана: искусство ремонта мягкой мебели своими руками
      В эпоху беспрерывного потребления и стремления к новизне, ремонт старой мягкой мебели своими руками приобретает не просто практическое, но и глубоко философское значение. Это действие как знак уважения к труду мастеров, которые вложили свое мастерство в создание диванов, кресел и пуфов, и как воплощение идеи устойчивого потребления. С каждым возвращенным к жизни предметом мебели, мы не только сохраняем историю и уникальность каждого изделия, но и противостоим бездумному обновлению интерьера за счет экологии и рационального использования ресурсов.

        • Нравится
      • 0 ответов
    • Как построить теплый дом, не тратя лишних денег
      Строительство гостевого дома решил выделить в отдельную тему, так будет меньше путаницы.


        • Спасибо
        • Нравится
      • 240 ответов
×
×
  • Создать...

Важная информация

Мы разместили cookie-файлы на ваше устройство, чтобы помочь сделать этот сайт лучше. Вы можете изменить свои настройки cookie-файлов, или продолжить без изменения настроек.