Перейти к содержанию
Форумы о ремонте и строительстве

Потолок из ГКЛ, шаг за шагом

Оценить эту тему:


Erik

Рекомендуемые сообщения

Перекурыч

Если не затруднит сюда rlab@mail.ru тоже бросте...

Вы наверное не поняли 100 МБ. В ящик на mail.ru столько не влезет. Или он у вас там платный? Не легче ли самому зайти на сайт Кнауфа и самому скачать, если уж очень нужно.

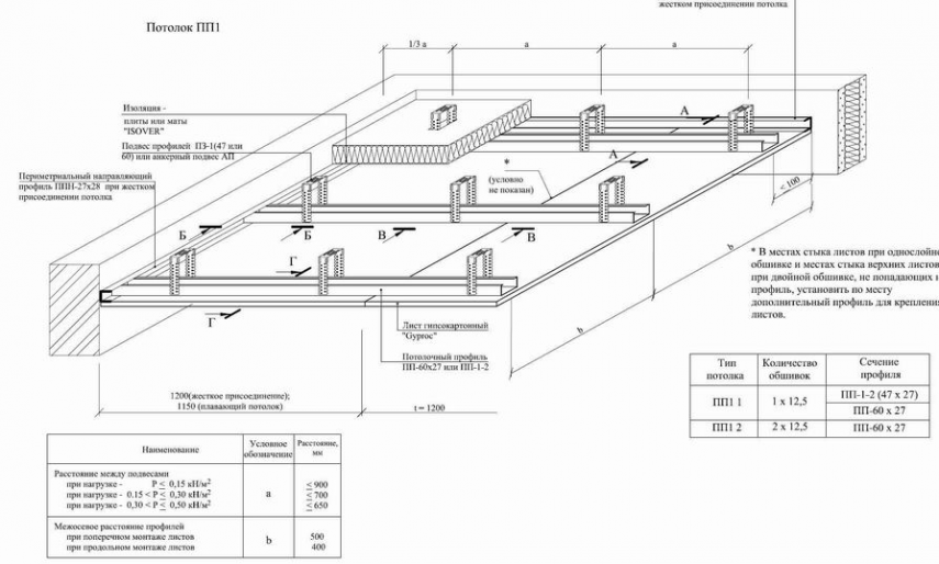
Спасибо за ответы и советы.Решил делать потолок в ванной так: см. прикрепленное изображение.Надеюсь этот вариант самый оптимальный (схемку рисовал в ворде, по другому не умею).

Не оптимальныйоптимальней будет если расположите ПП через 40см т.к. есть расстояние 80см, а это большой пролёт для листа гкл, так что нужны ещё профиляа раз нужен доп. профиль то лучше не экономить а купить ещё 2 ПП и расположить все ПП через 40см

Подписываемся на тему День за днём, моя работа https://homemasters.ru/...esta-raboty/ и на мой инстарам https://www.instagram.c...gda35remont/

Принимаю заказы на мебель из слэбов

 

Sano Спасибо, так и сделаю.
  • 1 месяц спустя...

image.png

чего то я совсем запутался, помогите с шагами - дело дошло до потолков начинаю с кухни дом с деревянными перекрытиями, с одной стены дымоход соседей с низу , купил ГКВЛ 9,5, по периметру кухни закрепил ПН 27*28 а вот с каким шагом ПП делать и как его крепить? одни вопросы ( очень не хочется сбивать штукатурку и дранку с потолка - начинаеться всякая хрень с чердака сыпаться) можно в качестве подвесов использовать подвес с зажимом? и как их располагатькрепить ли лист к ПН или к ПП дополнительным вдоль ПН?

люди help!!! ну кто нить скажите как это делать куда крепить основной профиль ( балки лежат параллельно стене окна, через 850 - 900 мм) ну полный я чайник в этих вопросах для кого то это как 2*2 а тут не знаешь с какой стороны подойти

доски на которых дранка и штукатурка потолка почемуто идут параллельно балкам что там между ними не знаю снизу страшно отрывать - сыпеться фигня всякая а сверху на чердаке раскопал до толи - тоже не хоться потом переделывать заново

Колхозник
dimp сказал(а):

чего то я совсем запутался, помогите с шагами - дело дошло до потолков начинаю с кухни дом с деревянными перекрытиями, с одной стены дымоход соседей с низу , купил ГКВЛ 9,5, по периметру кухни закрепил ПН 27*28 а вот с каким шагом ПП делать и как его крепить? одни вопросы ( очень не хочется сбивать штукатурку и дранку с потолка - начинаеться всякая хрень с чердака сыпаться) можно в качестве подвесов использовать подвес с зажимом? и как их располагатькрепить ли лист к ПН или к ПП дополнительным вдоль ПН?

Кухня это то помещение что 412,7 см * 196,3 см?Крепите к балкам. Основные профили пустите поперек их (т.е. вдоль комнаты). И к каждой балке подвесами крепите. Шаг профилей зависит от того, как листы ГКЛ будете пускать. Если листы вдоль комнаты, то строго 40 см (чтобы стык на профиль попал), если поперек, то, в вашем случае как душе вздумается (т.к. длина листа больше ширины помещения), но не больше 50 см. На стыках листов предусмотрите дополнительные профили поперек основных.

image.png

ПП крепить к ПН не надо. Да и ГКЛ к ПН тоже. Пустите вдоль стен ПП.Подвесы с зажимом можно, если это так необходимо. Разницы никакой только по сравнению с прямыми у них несущая способность меньше. Удачи!

вот вариант, дом сталинка 56г.потолок перекрытие из дерева, штукатурка по дранкестены одна- дерево штукатурка по дранке, другие гвл и кирпич в итоге не стабильный вариант для потолка из гкл в плане трещиноустойчивости(стена из дерева не особо крепкая + в неё вставлены двери)схема: независимый потолок от стен т.е. к Пн гкл крепится не будет, ПП к ПН не крепятся + ПП сделан с зазором около 1см от края стеншаг профилей через 60см сам потолок в виде решёткисами Пн нужны лишь для удобства монтажа, хотя некоторые торцевые ПП на Пн опираютсясам потолок-перекрытие на ощупь крепкий, подвесы крепились в любом месте(сбивать штукатурку и искать балки небыло смысла) подходящим по длинне саморезом по деревукаждый подвес проверялся на вырывание, что при общем весе подвесного потолка и кол-во подвесов вполне достаточно т.к. нагрузки на каждый подвес смехотворны

image.png

image.png

Подписываемся на тему День за днём, моя работа https://homemasters.ru/...esta-raboty/ и на мой инстарам https://www.instagram.c...gda35remont/

Принимаю заказы на мебель из слэбов

 

Sano сказал(а):

вот вариант, дом сталинка 56г.потолок перекрытие из дерева, штукатурка по дранкестены одна- дерево штукатурка по дранке, другие гвл и кирпич в итоге не стабильный вариант для потолка из гкл в плане трещиноустойчивости(стена из дерева не особо крепкая + в неё вставлены двери)схема: независимый потолок от стен т.е. к Пн гкл крепится не будет, ПП к ПН не крепятся + ПП сделан с зазором около 1см от края стеншаг профилей через 60см сам потолок в виде решёткисами Пн нужны лишь для удобства монтажа, хотя некоторые торцевые ПП на Пн опираютсясам потолок-перекрытие на ощупь крепкий, подвесы крепились в любом месте(сбивать штукатурку и искать балки небыло смысла) подходящим по длинне саморезом по деревукаждый подвес проверялся на вырывание, что при общем весе подвесного потолка и кол-во подвесов вполне достаточно т.к. нагрузки на каждый подвес смехотворны

а по этим краям (в рисунке) получаеться гкл крепиться только на 3 саморезах дополнительных профилей???

image.png

ну да, ну да, каркас не совсем в законченом виде, устанавливаем далее перекладинки по периметрушаг саморезов 10-15см, так что не на 3саморезах будет крепится, да и просто гкл не настолько хрупкая вещь как думаю некоторые :)

Подписываемся на тему День за днём, моя работа https://homemasters.ru/...esta-raboty/ и на мой инстарам https://www.instagram.c...gda35remont/

Принимаю заказы на мебель из слэбов

 

вот тут то вопросы и возникают как эту перекладинку крепить? со стороны стены туда ничем не подлезть в чём хитрость? :rolleyes:

если на крабах то монтируем сразу целую сторону перекладинок на удобном расстояние от стены а затем их всех сдвигаем ближе к стенеесли на обрезках Пн то хитростей вообще нет :)

Подписываемся на тему День за днём, моя работа https://homemasters.ru/...esta-raboty/ и на мой инстарам https://www.instagram.c...gda35remont/

Принимаю заказы на мебель из слэбов

 

если на крабах то монтируем сразу целую сторону перекладинок на удобном расстояние от стены а затем их всех сдвигаем ближе к стенеесли на обрезках Пн то хитростей вообще нет :)

может вопрос и тупой но если на крабах то получается что краб не прикручивается к основному профилю? или с одной стороны, а если на Пн то ПП просто лежит на обрезках Пн?, ну не понял я как они крепятся ни по одному рисунку

прикручивать крабы к основным особой нужды нетуобрезок ПН прикручен к бортику основного ПП двумя клопами, в обрезок заводится перекладина из ПП и крепится клопомрисунки с этим моментом где то были :)

Подписываемся на тему День за днём, моя работа https://homemasters.ru/...esta-raboty/ и на мой инстарам https://www.instagram.c...gda35remont/

Принимаю заказы на мебель из слэбов

 

прикручивать крабы к основным особой нужды нетуобрезок ПН прикручен к бортику основного ПП двумя клопами, в обрезок заводится перекладина из ПП и крепится клопомрисунки с этим моментом где то были :)

всё понял тады сегодня приступлюспасибо
  • 2 недели спустя...

Sano не знаю либо я не нашёл или вы не применяете? - встретил сегодня знакомых ремонтников так они посоветовали второй профиль крепить на 1150мм, лист обрезать на 50мм чтобы около стены не шпаклевать место стыка

обрезать так см 10, заводской край задолго до этих 5см начинает утоньшатсяприменяем и не применяем, зависит от обстоятельств, да и зашпаклевать его не влом, не вижу трудностей

Подписываемся на тему День за днём, моя работа https://homemasters.ru/...esta-raboty/ и на мой инстарам https://www.instagram.c...gda35remont/

Принимаю заказы на мебель из слэбов

 

Для публикации сообщений создайте учётную запись или авторизуйтесь

Вы должны быть зарегистрированным пользователем, чтобы оставить комментарий

Создать учетную запись

Зарегистрируйтесь в нашем сообществе.

Зарегистрироваться

Войти

Уже есть аккаунт? Войти в систему.

Войти

Или войти с помощью одного из сервисов



  • Наши рекомендации

    • Как построить теплый дом, не тратя лишних денег
      Строительство гостевого дома решил выделить в отдельную тему, так будет меньше путаницы.


        • Спасибо
        • Нравится
      • 257 ответов
    • Дома из сруба: идеальное сочетание уюта и прочности.
      Строительство собственного дома является важной вехой в жизни любого человека, поскольку оно знаменует собой важное событие. Выбор строительных материалов имеет огромное значение для создания теплого и функционального жилища. На протяжении всей древней истории древесина была распространенным материалом для строительства домов, что отразилось на различных культурах мира.

      • 0 ответов
    • Подходы к ремонту старых домов в России
      В России сотни тысяч старых домов, многие из которых являются не только свидетельством исторического наследия, но и отражением уникальной культуры и традиций страны. Эти дома, будь то деревянные избы или старинные каменные постройки, сохраняют в себе дух времени и рассказывают историю поколений.

      • 0 ответов
    • Газовые котлы: эффективное, экономичное и экологичное решение для отопления вашего дома
      В современном мире, где комфорт и устойчивость стали ключевыми аспектами повседневной жизни, выбор правильного источника отопления дома становится особенно актуальным. Газовые котлы, сочетая в себе преимущества эффективности, экономичности и экологичности, представляют собой одно из наиболее популярных решений для обеспечения комфортной температуры в жилых и коммерческих помещениях.

      • 0 ответов
    • Кажись всё или строительный пылесос с тройной мультициклонной ступенью очистки
      Кажись всё или строительный пылесос с тройной мультициклонной ступенью очистки

        • Нравится
      • 16 ответов
    • Люк для кошек своими руками
      Разумеется давно придуманы и продаются специальные лючки для кошек, которые можно врезать в дверь, но мы ведь не ищем легких путей . Да и по зоомагазинам я не хожу, а "гугление" показало, что такие люки для кошек стоят относительно не дешево. В то же время под рукой были два "копеечных" сантехнических пластиковых лючка для ГКЛ. Все что оставалось, так это обломать фиксаторы крышек, что бы они открывались в обе стороны, ровно выпилить отверстие в двери, да вклеить симметрично эти лючки.

      То, что получилось видно на фото. Разумеется это не для тех, у кого "дизайнерский ремонт", но для обыкновенной квартиры вполне подходит. Недостатков не замечено, животных и людей всё устраивает .


      Реакцию форумчан на этот люк можно узнать в этой теме https://homemasters.ru/...me/?p=330637

        • Ого
      • 6 ответов
    • Вторая жизнь дивана: искусство ремонта мягкой мебели своими руками
      В эпоху беспрерывного потребления и стремления к новизне, ремонт старой мягкой мебели своими руками приобретает не просто практическое, но и глубоко философское значение. Это действие как знак уважения к труду мастеров, которые вложили свое мастерство в создание диванов, кресел и пуфов, и как воплощение идеи устойчивого потребления. С каждым возвращенным к жизни предметом мебели, мы не только сохраняем историю и уникальность каждого изделия, но и противостоим бездумному обновлению интерьера за счет экологии и рационального использования ресурсов.

        • Нравится
      • 0 ответов
    • Аккумуляторные пилы  SCW и  SCM  22-A
      После того как провёл тесты, приступил к самому главному. Поменять диски местами, и проверить, как инструмент на это отреагирует, ведь они внешнее и походу внутренне практически одинаковые, пила по дереву конечно более навороченее, есть настройки угла наклона и можно на шину посадить через адаптер.

      • 4 ответа
×
×
  • Создать...

Важная информация

Мы разместили cookie-файлы на ваше устройство, чтобы помочь сделать этот сайт лучше. Вы можете изменить свои настройки cookie-файлов, или продолжить без изменения настроек.