Перейти к содержанию
Форумы о ремонте и строительстве

Ниша под встроенный шкаф-купе

Оценить эту тему:


Рекомендуемые сообщения

(изменено)

а какие вообще лучше дюбель гвозди? есть как вы привели на фото, а есть еще вот такие с усиками...какие лучше держатся? и материал из чего...полипропилен либо нейлоновые... плюс есть еще с прямой шляпкой, а есть с конусной...я так понимаю с прямой надо)ps: стена бетонные плиты, вполне крепенькие...диаметр дюбеля или самореза 6 мм

post-66665-1323883388_thumb.jpeg

Изменено пользователем alexbonch

Если интересно моё мнение, то по моему, лучшие дюбель гвозди MUNGO.6мм это диаметр пробки дюбеля, а не самореза в него вгоняемого.

ок возьму mungo видел в метизах их вчера, значит 6 или 8... а какой длины чтобы к соседям случайно не просверлиться?)) 50-60 норм я так понимаю да? сегодня начну наконец то)) обнаружил что у меня на дреле можно уменьшить обороты и получается шуруповерт, так что работать можно))

Для сквозного монтажа обычно используют дюбель пробки диаметром 6мм. Все отверстия в профилях расчитаны под этот диаметр.Длинна зависит от слоя штукатурки. Если стены "лысые", то достаточно 35мм.

Если стены "лысые"

:D смешное определение, в мемориз надо бы

Подписываемся на тему День за днём, моя работа https://homemasters.ru/...esta-raboty/ и на мой инстарам https://www.instagram.c...gda35remont/

Принимаю заказы на мебель из слэбов

 

блин ну почему же не найти (или вообще нету) профиля ПН 4 метра( придется из двух частей делать верхнюю часть...

профиля ПН 4 метра

на заказ сделают партию, а так нету

Подписываемся на тему День за днём, моя работа https://homemasters.ru/...esta-raboty/ и на мой инстарам https://www.instagram.c...gda35remont/

Принимаю заказы на мебель из слэбов

 

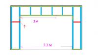
что поставить лучше в места выделенные красным, и как лучше поступить с пн профилем который 3 м максимум, у меня длина 3.3 метра 4 метровый профиль никто не знает в питере нереально найти 1 штуку? 2 профиля тяжеловато будет совместить идеально...

post-66665-1324326651_thumb.jpg

профиля тяжеловато будет совместить идеально...

Разве? Внутрь кусок ПС-а вставить и клопами скрутить.А чтоб усилить ПН-ы можно вместо одного поставить два профиля предварительно собрав из квадратом.

так смысл там два рядом профиля то городить, у меня и так два профиля с расстоянием между ними 100 мм) лучше что наверное ПС между приспособить...

Не рядом, а собрав из двух один. Квадратом. Вот, для наглядности, фотка из галереи FugenFührer

Изображение

Я так в одном месте делал. Стало значительно жёстче. Но можно ещё и перемычек наделать. По такому принципу -

Изображение

Это уже из галереи Sano.

  • 4 недели спустя...

еще вопрос созрел в момент строительства) внутренний торец как я понимаю по картинке ( вертикальный) нужно обшивать ГКЛом, а вот горизонтальный надо? или может все не так? https://homemasters.ru/up...e76edec7.jpg

Друзья, а помогите советом.Встроенный шкаф-купе. Одна стена - межкомнатная, вторая - ГКЛ, толщиной 100 мм, в ней электрощиток. Эта стенка возведена посередине коридора, то есть с другой стороны - стена, зеркало и входная дверь.Потолок в коридоре гладкий гипсокартонный, в нише для шкафа - бетонное перекрытие.Пол пока черновой, ОСП, ровный, но не гладкий, со швами и отверстями под гайки. Что будет сверху - никак не можем решить. Я предлагаю выкинуть собаку, которая не знает, что для туалета есть улица, положить сверху ГВЛ и на него паркетную доску. Сестра предлагает выкинуть идею выкинуть собаку, по совету Иваныча положить дешевый ламинат и на него как на ровную поверхность положить линолеум. В итоге конечный уровень чистого пола неизвестен и определяться с ним мы будет похоже еще долго.post-28393-1326959861_thumb.jpgИзначально я хотел крепить верхний трек на П-образный короб так, чтобы трек был ниже ГКЛ потолка на 1-2 мм, то есть казался приклепленным к потолку, но контакта с ним не имел.post-28393-1326959865_thumb.jpgСтены (и бетонная, и ГКЛ) крепкие, на торцах дверей будут щетки, так что делать фальшпанели на стены я не собираюсь.А вот делать внизу П-образный короб я не хотел. Нижний трек я предполагал крепить прямо на чистый пол. Правда, так и не решился вопрос, что делать с плинтусом: вот он идет по стене, поворачивает на ГКЛ стену, идет по торцу ГКЛ стены и... обрывается заглушкой? Скорее всего его быстро пнут ногой и оторвут (место-то проходное).Таким образом, цвет ДСП для обрамления проема в повестке дня никогда не стоял и не было проблем с его сочетанием с отделкой коридора (которая пока тоже только в планах).Но вот из-за этого непонятного уровня пола похоже нижний короб придется делать, чтобы двери поставить раньше.Сначала я хотел сделать короб высотой ровно в высоту плинтуса, чтобы плинтус весь его перекрыл и чтобы собственно ДСП не было видно и его цвет был неважен. Но повторюсь, сколько уйдет на пол, 1 см или 3 - неизвестно.Тогда подумал, а может сделать короб гарантированно высоким, так, чтобы при самом большом из возможных подъемов пола плинтус его перекрыл и еще осталось место на всякий случай? Но тогда надо сразу определяться с цветом ДСП. Но с этим проблема.А потом я вдруг подумал: а что, если короб сделать из любого ДСП, с лицевой части зашить полоской ГКЛ вровень с торцем стены и при поклейке обоев оклеить также и его, заведя обоину под будущий трек? Тогда после установки трека и прикручивания плинтуса останется неширокая полоска обоев. Она и пачкаться особо не должна, и глаз по идее должна резать меньше, чем ДСП произвольного цвета.post-28393-1326959875_thumb.jpgЧто скажете? Делал так кто-нить? Если да - то как в итоге получилось? Если нет, но видите явный недочет - поделитесь. Если хорошо развито воображение - посоветуйте, какое расстояние от верха плинтуса до нижнего трека (то есть видимую часть обоев) оставить, чтобы обои смотрелись не узкой лапшой, но и сам короб не напоминал свежий могильный холм.PS Картинки автокадовские, с тонкими линиями, если чего не видно - тыкайте на увеличение, становится четче

Alice, Вы как всегда заново изобретаете велосипед, причём собственными мозгами. Его давно изобрели. То что Вы предлагаете, я делаю очень давно. Это часто встречается в местах под балконной дверью или под дверью туалетной (ванной) кабинки. Смотрится неплохо, нормально, штатно. В глаза не бросается совсем, его (глаз) не колет, не режет. Вообщем ничего инородного, как будто так и должно быть.

Радует то, что самостоятельно я в итоге изобретаю то, что изобретено и успешно опробовано многими поколениями до меня, и что это гарантированно неплохой вариант.

ЗЫ Когда-нить я расскажу, как за несколько лет до того, как узнал слова "маяк", "штукатурка" и "гипсокартон" придумал технологию ремонта с старой квартире. Которая, как я теперь понимаю, является классикой отделочных работ :)

fomins, а какой вы по своему богатому опыту посоветуете заложить зазор от плинтуса до направляющей? Ну вот например плинтус условно 6 см, подъем пола - условно 2 см. Если сделать короб 11 см, чтобы при разных раскладах обои виднелись на 2-4 см - это нормально? Или красивей смотрится побольше или поменьше

Я бы наверно оставил как есть сейчас, а потом после выбора финиша, пильнул бы верх двери, сверху не будет видно на сколько ровно дверь подпилена. Такой высокий порог как то неудобен.

Не хочется оставлять "как есть". В первую очередь из-за того, что тогда придется оборвать плинтус на торцевой стороне ГКЛ стенки. Его обязательно собьют ногой максимум на второй день. Во вторую очередь из-за того, что двери будут со стеклом, из 3 частей каждая, и если отпилить верхушку профиля можно легко, то вот резать верхнее стекло, а заодно и нижнее (так как верхняя и нижняя вставки будут одной высоты) уже не хочется. Тем более что я пока держу в голове шальную идею вставлять по 2 стекла и обои или постер между ними, то есть резать придется 8 стекол.

Для публикации сообщений создайте учётную запись или авторизуйтесь

Вы должны быть зарегистрированным пользователем, чтобы оставить комментарий

Создать учетную запись

Зарегистрируйтесь в нашем сообществе.

Зарегистрироваться

Войти

Уже есть аккаунт? Войти в систему.

Войти

Или войти с помощью одного из сервисов



  • Наши рекомендации

    • Кажись всё или строительный пылесос с тройной мультициклонной ступенью очистки
      Кажись всё или строительный пылесос с тройной мультициклонной ступенью очистки

        • Нравится
      • 16 ответов
    • Как построить теплый дом, не тратя лишних денег
      Строительство гостевого дома решил выделить в отдельную тему, так будет меньше путаницы.


        • Спасибо
        • Нравится
      • 259 ответов
    • Аккумуляторные пилы  SCW и  SCM  22-A
      После того как провёл тесты, приступил к самому главному. Поменять диски местами, и проверить, как инструмент на это отреагирует, ведь они внешнее и походу внутренне практически одинаковые, пила по дереву конечно более навороченее, есть настройки угла наклона и можно на шину посадить через адаптер.

      • 4 ответа
    • Газовые котлы: эффективное, экономичное и экологичное решение для отопления вашего дома
      В современном мире, где комфорт и устойчивость стали ключевыми аспектами повседневной жизни, выбор правильного источника отопления дома становится особенно актуальным. Газовые котлы, сочетая в себе преимущества эффективности, экономичности и экологичности, представляют собой одно из наиболее популярных решений для обеспечения комфортной температуры в жилых и коммерческих помещениях.

      • 0 ответов
    • Люк для кошек своими руками
      Разумеется давно придуманы и продаются специальные лючки для кошек, которые можно врезать в дверь, но мы ведь не ищем легких путей . Да и по зоомагазинам я не хожу, а "гугление" показало, что такие люки для кошек стоят относительно не дешево. В то же время под рукой были два "копеечных" сантехнических пластиковых лючка для ГКЛ. Все что оставалось, так это обломать фиксаторы крышек, что бы они открывались в обе стороны, ровно выпилить отверстие в двери, да вклеить симметрично эти лючки.

      То, что получилось видно на фото. Разумеется это не для тех, у кого "дизайнерский ремонт", но для обыкновенной квартиры вполне подходит. Недостатков не замечено, животных и людей всё устраивает .


      Реакцию форумчан на этот люк можно узнать в этой теме https://homemasters.ru/...me/?p=330637

        • Ого
      • 6 ответов
    • Дома из сруба: идеальное сочетание уюта и прочности.
      Строительство собственного дома является важной вехой в жизни любого человека, поскольку оно знаменует собой важное событие. Выбор строительных материалов имеет огромное значение для создания теплого и функционального жилища. На протяжении всей древней истории древесина была распространенным материалом для строительства домов, что отразилось на различных культурах мира.

      • 0 ответов
    • Подходы к ремонту старых домов в России
      В России сотни тысяч старых домов, многие из которых являются не только свидетельством исторического наследия, но и отражением уникальной культуры и традиций страны. Эти дома, будь то деревянные избы или старинные каменные постройки, сохраняют в себе дух времени и рассказывают историю поколений.

      • 0 ответов
    • Вторая жизнь дивана: искусство ремонта мягкой мебели своими руками
      В эпоху беспрерывного потребления и стремления к новизне, ремонт старой мягкой мебели своими руками приобретает не просто практическое, но и глубоко философское значение. Это действие как знак уважения к труду мастеров, которые вложили свое мастерство в создание диванов, кресел и пуфов, и как воплощение идеи устойчивого потребления. С каждым возвращенным к жизни предметом мебели, мы не только сохраняем историю и уникальность каждого изделия, но и противостоим бездумному обновлению интерьера за счет экологии и рационального использования ресурсов.

        • Нравится
      • 0 ответов
×
×
  • Создать...

Важная информация

Мы разместили cookie-файлы на ваше устройство, чтобы помочь сделать этот сайт лучше. Вы можете изменить свои настройки cookie-файлов, или продолжить без изменения настроек.