Перейти к содержанию
Статьи о ремонте

TOP-25 лучших программ и планировщиков для дизайнеров и архитекторов

Julia S

Профессиональное ПО становится не просто инструментом, а частью мышления специалиста — от ранней концепции и параметрического поиска до расчетов, стройки и эксплуатации

Современная архитектура и дизайн давно перестали быть набором интуитивных решений и красивых чертежей — сегодня это сложный цифровой процесс, в котором идея сразу проверяется на реализуемость, координацию и инженерную логику. Эта подборка объединяет ключевые программы, без которых невозможно представить современную архитектурно-дизайнерскую практику.

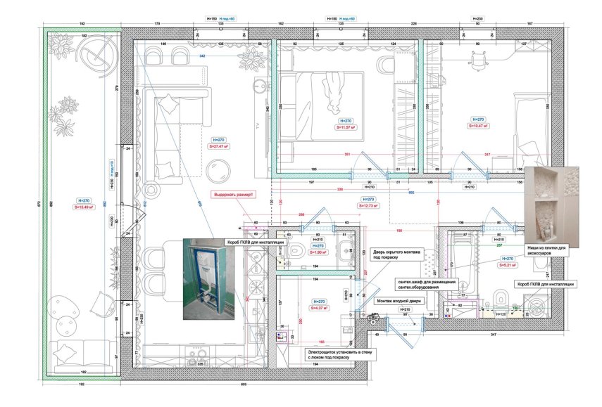
RemPlanner — программа планировщик для создания дизайн-проекта квартиры с техническими чертежами

1.thumb.jpg.2426fb42a1d9f32776f94d176ead5373.jpg

RemPlanner полезен как практичная среда для квартир и небольших объектов, где важно быстро и внятно проработать инженерные слои: электрика, свет, слаботочка, вода, канализация, теплый пол. Его ценность — в логике «сначала техника, потом красота», что снижает нестыковки при реализации.

Это не полноценный BIM для здания, но сильный инструмент предпроектной координации и коммуникации с заказчиком/подрядчиками. 3D здесь вспомогательный — для проверки конфликтов и габаритов, плюс есть опции ведомостей/ориентировочных расчетов.

Autodesk Revit — BIM как основа современной архитектуры

Autodesk4.thumb.jpg.3a313699f5698da492737314e129b7cc.jpg

Autodesk Revit — центральная BIM-платформа, где проект строится как информационная модель: стены, перекрытия, окна и инженерные элементы содержат параметры, а не просто линии. Это дает управляемость и «единую правду» по объекту на всех стадиях.

Сильная сторона Revit — автоматическая связность планов, разрезов, фасадов и спецификаций: меняешь модель — обновляется документация. В больших и средних проектах это резко снижает риск ошибок, а также упрощает координацию архитектуры, конструкций и MEP.

AutoCAD — язык архитектурной документации

poster.thumb.jpg.eae21653f58e08466d7ad559cde7d37c.jpg

AutoCAD остается универсальным стандартом 2D/чертежной документации и привычным форматом обмена для бюро, подрядчиков и экспертиз. Он особенно силен там, где нужна точная графика, предсказуемые правила оформления и быстрые правки.

Даже при развитии BIM, AutoCAD часто остается «рабочей базой» для узлов, схем, корректировок, реконструкций и проектов с наследуемой документацией. Это инструмент, который помогает говорить с рынком на одном языке — через DWG.

3ds Max — визуализация как часть архитектурного мышления

3ds-Max-32.thumb.jpg.196b0115ea28a88c765076ed9188b271.jpg

3ds Max — профессиональная среда для архитектурной визуализации, где проект переводится в убедительный визуальный язык: свет, материалы, атмосфера, масштаб. Он используется для презентаций, конкурсов и продающих рендеров, когда «картинка» становится частью архитектурного решения.

Сильнее всего 3ds Max работает в связке с CAD/BIM: модель создается в Revit/AutoCAD, а затем доводится до фотореализма (часто через V-Ray/Corona). Это не про документацию, а про контроль восприятия и качества подачи.

Vectorworks Architect — универсальное BIM-решение с артистичной подачей

Vectorworks_Architect__3.thumb.jpg.4acc16864cdf0cf9f7c04bfe1273ccfe.jpg

Vectorworks Architect объединяет 2D/3D и BIM-логику в одной среде и ценится за баланс: свобода моделирования + нормальная рабочая документация. В нем удобно двигаться от эскиза к BIM-данным и выпуску листов без постоянной миграции между программами.

Плюс Vectorworks — в гибкости интерфейса и поддержке открытых форматов (включая IFC), что облегчает обмен с инженерами и внешними командами. Это хороший выбор для бюро, которым важны и творческая свобода, и системность выдачи.

ARCHITECTURES — генерация архитектуры в реальном времени на базе ИИ

Architechtures__4.thumb.webp.ddde1a4b6a6abe41dbd72e52635c3b99.webp

ARCHITECTURES — генеративный инструмент ранней стадии: ты задаешь параметры (участок, ограничения, функции, инсоляция), а система быстро предлагает варианты объемно-планировочных решений. Это ускоряет поиск концепции и сценарное сравнение.

Платформа полезна не как «замена архитектора», а как ускоритель итераций: меньше рутины — больше времени на смысл, контекст и качество идеи. Особенно ценна для девелоперов и бюро, где важно быстро оценить потенциал участка и варианты застройки.

Maket — автоматизация планировок и жилых пространств

Maket_programm_1.thumb.jpg.aeae3b1f7845dc7597d9369d06056a56.jpg

Maket фокусируется на генерации жилых планировок: вместо ручного рисования стен пользователь задает требования (площадь, комнаты, приоритеты), и система создает несколько вариантов. Это удобно на старте, когда нужно быстро «нащупать» рабочую схему.

Инструмент полезен для сравнения сценариев и первичного согласования, а 3D помогает проверить общую логику объемов. Maket часто применяют там, где важны скорость и вариативность, особенно в типовом жилье и девелоперских задачах.

Finch — энергоэффективность и устойчивость на этапе идеи

Architechtures__4.thumb.webp.ddde1a4b6a6abe41dbd72e52635c3b99.webp

Finch — инструмент ранней стадии, который помогает оценивать энергоэффективность и эксплуатационные последствия решений еще до детальной разработки. Он анализирует ориентацию, остекление, глубину помещений и предлагает оптимизации под снижение энергопотребления.

Это не замена инженерным расчетам, но сильный фильтр «плохих» решений на старте, когда изменения стоят дешевле всего. Finch особенно актуален в проектах с фокусом на устойчивость, сертификацию и обоснование решений цифрами.

Rhino + Grasshopper — свободное моделирование плюс алгоритмический дизайн

rhino_architecture_3.thumb.jpg.a417cae7e0209cd4a0684bee349aaacd.jpg

Rhino — мощное NURBS-моделирование для сложной геометрии, фасадов и нестандартных форм, а Grasshopper добавляет параметрику и алгоритмическую логику без «классического кода». Вместе это дает свободу формы и быстрые вариации.

Связка особенно сильна в концепции и экспериментальной архитектуре: можно генерировать системы, модули, оболочки и быстро менять параметры, не переделывая все вручную. Это инструмент для тех, кто проектирует «правила», а не рисует каждый элемент заново.

SketchUp Pro — быстрый 3D-эскиз и понятное моделирование

SketchUp_Pro__2.thumb.gif.9822158741b64d430597df5f5d3551ed.gif

SketchUp Pro — инструмент для быстрого трехмерного эскиза: он помогает за короткое время собрать объем, проверить пропорции, идеи планировки и пространственные связи без тяжелого порога входа. Это удобно на ранней стадии, когда важнее скорость мысли, чем идеальная «рабочка».

Сильная сторона SketchUp — экосистема компонентов и 3D Warehouse, плюс модуль LayOut для оформления листов, планов и разрезов в понятной презентационной форме. Он часто используется как «мост» между концепцией и дальнейшей разработкой в BIM/чертежных средах.

Bentley OpenBuildings Designer — корпоративный BIM для сложных объектов

Bentley_OpenBuildings_Designer_1.thumb.webp.75e74a9c127dddda6458570561cd4241.webp

OpenBuildings Designer — BIM-платформа корпоративного уровня, рассчитанная на большие проекты и строгую дисциплину данных. Она ценится там, где архитектура, конструкции и инженерия должны существовать в единой системе координат с масштабируемыми процессами.

Инструмент особенно уместен для многофункциональных комплексов, высоток и объектов со сложной инженерией, где важны контроль, стандартизация и работа больших команд. Для «квартирной» задачи это избыточно, но для бюро/инжиниринга крупного масштаба — рабочая машина.

BricsCAD BIM — переход от CAD к BIM на базе DWG

BricsCAD_BIM__2.thumb.webp.3c8a45afd6100b2aca257c648af4f896.webp

BricsCAD BIM хорош для команд, которые живут в DWG и хотят BIM-логику без резкого разрыва с CAD-процессом. Можно начать с классического 2D/3D подхода и постепенно «интеллектуализировать» модель, превращая геометрию в BIM-объекты.

Плюс — поддержка IFC и удобство обмена, что важно при координации с инженерами и подрядчиками. Это «взрослый» вариант для тех, кому нужна точность и контроль, но при этом хочется остаться в привычной DWG-среде.

Chief Architect (Premier) — профессиональный «жилой проект» с развертками и деталями

Chief_Architect_(Premier)_6.thumb.jpg.651ce8fb34d11fdc8655028fbedbccc2.jpg

Chief Architect — ориентирован на реальную реализацию жилых проектов: планы, разрезы, развертки, узлы, ведомости и рабочие материалы здесь — не декоративный бонус, а основа процесса. Это особенно полезно в перепланировках и ремонте «под ключ».

Программа сильна автоматизацией и «умными» объектами: изменения в планировке обновляют связанные виды и документы, снижая риск рассинхронизации. В результате получается проект, который проще довести до стройки без постоянных ручных пересборок.

Snaptrude — браузерный BIM для быстрого концепта и командной работы

Snaptrude__2.thumb.jpg.1439d45f4e06eee0310ff4d84e11e5c1.jpg

Snaptrude — облачная BIM-ready среда, в которой удобно быстро собирать концепцию и одновременно держать структуру модели. Сильный сценарий — ранняя стадия: несколько вариантов планировок/объемов, быстрые итерации, наглядные виды и минимальный «файловый хаос».

Платформа выигрывает коммуникацией: проект проще обсуждать с командой и заказчиком, потому что доступ к модели и видам организован «в одном месте». Это особенно полезно, когда важны скорость согласования и совместная работа без пересылки бесконечных версий.

Rayon — профессиональные планы в веб-формате с импортом DWG/DXF/PDF

Rayon_2.thumb.jpg.1c95b2c374b476ba2704bd1f77341a9e.jpg

Rayon — веб-инструмент для быстрых, аккуратных планов с нормальным импортом исходников (DWG/DXF/PDF) и экспортом «как нужно» для подрядчиков. Его сила — в графике, скорости правок и корректной подаче, когда важны формат и читабельность.

Rayon не заменяет 3D-рендеринг, зато отлично закрывает задачy «сделать чистый план в работу»: быстро привести план к нормальному виду, собрать листы и отдать в понятных форматах. Это удобный мост между идеей и технической коммуникацией.

Allplan — архитектурно-инженерный BIM для точных и ответственных проектов

Allplan_2.thumb.jpg.9f99506794b2c8c3f80a77674239f098.jpg

Allplan — BIM-платформа профессионального уровня, рассчитанная на глубокую проработку архитектуры в инженерном контексте: конструктив, узлы, спецификации, взаимосвязь документации и модели. В проектах, где ошибка стоит дорого, это дает высокий уровень контроля.

Особенно силен Allplan в конструктивной детализации (включая железобетон, элементы, ведомости и т.п.) и дисциплине выпуска документации. Его выбирают бюро, где BIM — рабочий процесс, а не формальность, и где архитектура и инженерия идут параллельно.

Solibri Office — контроль качества BIM и проверка IFC

Solibri_Office__2.thumb.webp.63663d9b67a299b1e716150438fd508e.webp

Solibri — инструмент контроля BIM-моделей на уровне данных, а не только геометрии. Он проверяет корректность IFC-моделей: заполненность параметров, классификацию элементов, соответствие требованиям заказчика и стандартам моделирования.

Solibri особенно востребован в OpenBIM-проектах и на этапах экспертизы, аудита и сдачи модели. Это не средство проектирования, а «инспектор», который делает BIM-процесс формализованным и проверяемым.

Tekla Structural Designer — расчет конструкций в BIM-контексте

Tekla_Structural_Designer__1.thumb.jpg.91c280ce307991d4c767e11bf5f0c0ab.jpg

Tekla Structural Designer предназначен для расчета и анализа строительных конструкций: каркасов, нагрузок, комбинаций и устойчивости. Здесь проект проверяется не визуально, а через инженерную логику и расчетную модель.

Инструмент полезен в проектах, где архитектурные решения напрямую влияют на конструктив — пролеты, консоли, отверстия, ядра. Он позволяет быстро пересчитывать варианты и держать конструкцию в рабочем, а не абстрактном состоянии.

ETABS — расчет высотных и многоэтажных зданий

ETABS.webp.5cd1a9072062144acc490702bcc71f81.webp

ETABS — один из мировых стандартов расчета многоэтажных и высотных зданий. Он анализирует пространственную работу каркаса: сейсмику, ветровые нагрузки, жесткость, деформации и взаимодействие этажей.

Для архитекторов ETABS дает раннюю обратную связь по форме и планировке, для инженеров — надежную расчетную базу. Особенно актуален в высотных проектах и регионах с повышенными нагрузками.

SCIA Engineer — параметрический расчет конструкций

SCIA_Engineer.thumb.jpg.8c8ffa7d0a765befaed4d8bb6225d14d.jpg

SCIA Engineer — инженерная платформа для параметрического расчета конструкций в BIM-логике. Изменения геометрии автоматически отражаются в расчетах, что упрощает итерации между архитектурой и инженерией.

Программа востребована в европейских и международных проектах, где важны прозрачность, нормативная строгость и воспроизводимость расчетной модели. Это инструмент для сложных и нестандартных конструктивных задач.

Dialux evo — светотехническое проектирование и расчеты

Dialux_evo_3.thumb.jpg.dd631cb0af28061d1c0c1a8f5d70d975.jpg

Dialux evo — профессиональный инструмент для расчета освещения по реальным светотехническим параметрам: освещенность, яркость, отражения, энергоэффективность и соответствие нормам.

В отличие от визуализаций, Dialux показывает, как свет действительно будет работать в пространстве. Он незаменим в общественных, коммерческих и жилых проектах, где свет — инженерная система, а не декоративный эффект.

OpenFOAM — CFD-моделирование потоков и тепла

OpenFOAM__3.thumb.jpg.cc2ec798dcc252b1fc4e82efc1a07a28.jpg

OpenFOAM — среда вычислительной гидродинамики для моделирования потоков воздуха, тепла и вентиляции. Она применяется в сложных архитектурных сценариях: атриумы, естественная вентиляция, задымление, тепловой комфорт.

Инструмент требует высокой инженерной квалификации и используется там, где стандартных расчетов недостаточно. Это уровень исследовательского и высококлассного инженерного проектирования.

ANSYS (Mechanical / Fluent) — мультифизическое моделирование

ANSYS_1.thumb.jpg.090ff6086e97d0d82837e26c70bcbc0c.jpg

ANSYS — промышленный стандарт инженерного моделирования, применяемый для анализа прочности, вибраций, теплопереноса, аэродинамики и взаимодействия сред. В архитектуре он используется для проверки сложных и нестандартных решений.

ANSYS актуален в проектах с высокой ответственностью, где необходимо количественно подтвердить безопасность и надежность. Это инструмент не для каждого проекта, а для ситуаций с высокой ценой ошибки.

IDA ICE — динамическое моделирование микроклимата зданий

IDA_ICE__2.thumb.jpg.a2974e1588d511e95d5465b4a878e277.jpg

IDA ICE позволяет моделировать поведение здания во времени: температуру, влажность, вентиляцию и энергопотребление в реальных сценариях эксплуатации. Это дает более точную картину, чем статические расчеты.

Платформа активно используется в устойчивой архитектуре и при сертификации зданий (LEED, BREEAM). Она помогает принимать решения на стадии концепции с учетом комфорта и эксплуатационных затрат.

Robot Structural Analysis (Autodesk) — расчет конструкций в экосистеме BIM

Robot_Structural_Analysis__1.thumb.webp.f7940193e683d44014f717b0702753e8.webp

Robot Structural Analysis — расчетный инструмент Autodesk, тесно связанный с Revit. Он позволяет анализировать нагрузки, усилия и сечения, сохраняя связь между архитектурной геометрией и расчетной моделью.

Robot часто используется как «мост» между архитектурой и конструктивом, помогая быстрее согласовывать изменения и избегать рассинхронизации. Это рабочий инструмент для ответственных конструктивных решений в BIM-проектах.

Finch architecture



Обратная связь

Рекомендуемые комментарии

Комментариев нет



Для публикации сообщений создайте учётную запись или авторизуйтесь

Вы должны быть зарегистрированным пользователем, чтобы оставить комментарий

Создать учетную запись

Зарегистрируйтесь в нашем сообществе.

Зарегистрироваться

Войти

Уже есть аккаунт? Войти в систему.

Войти

Или войти с помощью одного из сервисов



  • Наши рекомендации

    • Подходы к ремонту старых домов в России
      В России сотни тысяч старых домов, многие из которых являются не только свидетельством исторического наследия, но и отражением уникальной культуры и традиций страны. Эти дома, будь то деревянные избы или старинные каменные постройки, сохраняют в себе дух времени и рассказывают историю поколений.

      • 0 ответов
    • Люк для кошек своими руками
      Разумеется давно придуманы и продаются специальные лючки для кошек, которые можно врезать в дверь, но мы ведь не ищем легких путей . Да и по зоомагазинам я не хожу, а "гугление" показало, что такие люки для кошек стоят относительно не дешево. В то же время под рукой были два "копеечных" сантехнических пластиковых лючка для ГКЛ. Все что оставалось, так это обломать фиксаторы крышек, что бы они открывались в обе стороны, ровно выпилить отверстие в двери, да вклеить симметрично эти лючки.

      То, что получилось видно на фото. Разумеется это не для тех, у кого "дизайнерский ремонт", но для обыкновенной квартиры вполне подходит. Недостатков не замечено, животных и людей всё устраивает .


      Реакцию форумчан на этот люк можно узнать в этой теме https://homemasters.ru/...me/?p=330637

        • Ого
      • 6 ответов
    • Кажись всё или строительный пылесос с тройной мультициклонной ступенью очистки
      Кажись всё или строительный пылесос с тройной мультициклонной ступенью очистки

        • Нравится
      • 16 ответов
    • Как построить теплый дом, не тратя лишних денег
      Строительство гостевого дома решил выделить в отдельную тему, так будет меньше путаницы.


        • Спасибо
        • Нравится
      • 257 ответов
    • Аккумуляторные пилы  SCW и  SCM  22-A
      После того как провёл тесты, приступил к самому главному. Поменять диски местами, и проверить, как инструмент на это отреагирует, ведь они внешнее и походу внутренне практически одинаковые, пила по дереву конечно более навороченее, есть настройки угла наклона и можно на шину посадить через адаптер.

      • 4 ответа
    • Газовые котлы: эффективное, экономичное и экологичное решение для отопления вашего дома
      В современном мире, где комфорт и устойчивость стали ключевыми аспектами повседневной жизни, выбор правильного источника отопления дома становится особенно актуальным. Газовые котлы, сочетая в себе преимущества эффективности, экономичности и экологичности, представляют собой одно из наиболее популярных решений для обеспечения комфортной температуры в жилых и коммерческих помещениях.

      • 0 ответов
    • Дома из сруба: идеальное сочетание уюта и прочности.
      Строительство собственного дома является важной вехой в жизни любого человека, поскольку оно знаменует собой важное событие. Выбор строительных материалов имеет огромное значение для создания теплого и функционального жилища. На протяжении всей древней истории древесина была распространенным материалом для строительства домов, что отразилось на различных культурах мира.

      • 0 ответов
    • Вторая жизнь дивана: искусство ремонта мягкой мебели своими руками
      В эпоху беспрерывного потребления и стремления к новизне, ремонт старой мягкой мебели своими руками приобретает не просто практическое, но и глубоко философское значение. Это действие как знак уважения к труду мастеров, которые вложили свое мастерство в создание диванов, кресел и пуфов, и как воплощение идеи устойчивого потребления. С каждым возвращенным к жизни предметом мебели, мы не только сохраняем историю и уникальность каждого изделия, но и противостоим бездумному обновлению интерьера за счет экологии и рационального использования ресурсов.

        • Нравится
      • 0 ответов
×
×
  • Создать...

Важная информация

Мы разместили cookie-файлы на ваше устройство, чтобы помочь сделать этот сайт лучше. Вы можете изменить свои настройки cookie-файлов, или продолжить без изменения настроек.