Перейти к содержанию
Форумы о ремонте и строительстве

Капитальный ремонт с нуля 2

Оценить эту тему:


windsor

Рекомендуемые сообщения

А что рисует производитель, есть альбом чертежей ?

Подписываемся на тему День за днём, моя работа https://homemasters.ru/...esta-raboty/ и на мой инстарам https://www.instagram.c...gda35remont/

Принимаю заказы на мебель из слэбов

 

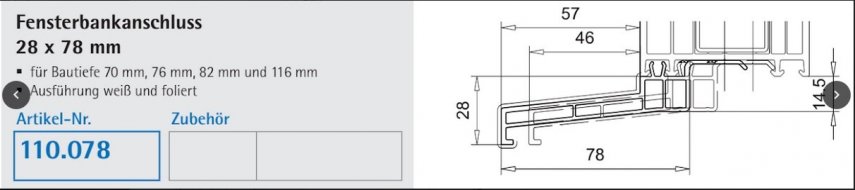
У меня только вот это. Как он располагается под рамой. Понятно, что с внутренней стороны под него устанавливается подоконник. Установить так и оставить раму в подвешенном состоянии?184.thumb.jpg.da7111dfc9751b7751091643c2392b5a.jpg

Этот вариант работает, если рама устанавливается на жесткую основу, но тогда там нифига не запенишь, или уже должен быть установлен подоконник, но как то это через одно место, обычно наоборот. Ладно буду думать. Время еще есть. Пока и материал для устанолвки не пришел. Планирую на 21 апреля первое окно ставить. Может как то подпилить подставочный и совместить оба профиля? Видео тоже не нашел, как с таким профилем ставят и утепляют.

Может не проставочный, а у внешнего профиля верхнюю изогнутую полочку отрезать? 

Об этом тоже думал, но как то жалко его. И резать придется не только верхнюю полочку, но и одну камеру. Останется только защелка. Вдруг начнет выскакивать при установке или во время эксплуатации. На его внешнюю сторону потом будут постоянно рольставни опускаться, тоже как бы нагрузка. Был бы еще запасной, отрезал попробовал, а в запасе нет и рисковать не хочется. Да. Но что то пилить придется. И в подставочном ничего лишнего нет и в этом тоже все продумано :(

В подставочном профиле отрезай защелку, которая мешает. Прищелкивается "роллетный" профиль, запенивается, ставиться подставочный и прикручивается к профилю окна. Только потом - установка окна.

  • 3 недели спустя...

Поменял сегодня окно в ванной. Ну это у них была ванная комната. Я здесь планирую сделать помещение для туалета, а душевую кабину перенести в другую комнату. В понедельник надеюсь заменить большое окно в нашей спальне. Раму придется поднимать на ремнях снаружи. Внутри дома ее по лестнице не протащить на второй этаж. Думаю справимся.

190.jpg

191.jpg

192.jpg

193.jpg

194.jpg

195.jpg

196.jpg

197.jpg

Да намного компактнее, всего 20,5 см высотой.

Пару недель назад собрался устанавливать первое окно в будушей ванной комнате. Оно расположено с обратной стороны дома. Внешние керамические подоконники решили оставить те что были. Старое окно демонтировал. Четверти с боков оказались шире, так как были на хреновом цементе заложены кирпичем, все это вывалилось. А главное оказалось, что мой подоконный профиль не перекрывает внешний керамический подоконник. Стал искать выход, а это только подоконник ломать и ставить новые камни. Камень нужной ширины и длины не найти, только заказывать и ждать 2-3 недели. Хорошо, что был дома неделю и стояла солнечная погода, потратил полтора дня на поиски камня, объехал кучу магазинов, взял сразу на два окна. Пришлось брать из двух частей. Ну зато новые подоконники будут стоять.

С внешней стороны дома учел мой печальный опыт и проверил все внешние каменные подоконники. Их менять не нужно, они достаточной ширины.

185.jpg

186.jpg

186в.jpg

188.jpg

188в.jpg

189.jpg

189в.jpg

187.jpg

189с.jpg

А что за дырка под окном, это ты приточную вентиляцию сделал? с подогревом радиатором?

11 minutes ago, pavlik123 said:

А что за дырка под окном, это ты приточную вентиляцию сделал? с подогревом радиатором?

На конвектор похоже

32 минуты назад, pavlik123 сказал:

А что за дырка под окном

Это не я. Бывшие хозяева чудили раньше. Это типа трубы от газового обогревателя. Как проведу газопровод по новому, демонтирую везде эту хрень.

Пока таких планов нет. Если это и буду делать то только по завершении всех работ и после замены крыши. Обычно здесь кирпичную кладку не красят, а чистят песком под давлением. Самому мне это не осилить, а через фирму это опять тыщи евров.

 Осилишь. Ты уже второй дом переделываешь в одного. Глянь в Ютьюб на самодельные пескоструйки, там главное компрессор. Единственно что претензий от соседей можно получить из-за пыли. Придется плёнкой ограждаться. Или алмазную чашку на болгарку, с пылесосом. Пескоструйка конечно ещё и из швов выбьет слабый раствор, потом придется швы проходить расшивкой.

В 4/30/2018 в 15:37, pavlik123 сказал:

Глянь в Ютьюб на самодельные пескоструйки, там главное компрессор. Единственно что претензий от соседей можно получить из-за пыли. Придется плёнкой ограждаться. Или алмазную чашку

Не прокатят самоделки, не те объемы, да и компрессор совсем не детский

Чашка также не пойдет, испортит кладку, да и радиальных следов оставит 

Подписываемся на тему День за днём, моя работа https://homemasters.ru/...esta-raboty/ и на мой инстарам https://www.instagram.c...gda35remont/

Принимаю заказы на мебель из слэбов

 

Пескоструйки-да, самоделки слабоватые для таких объёмов, но если хочется победить, то можно медленно но уверенно))). Реставрация вообще вещь не спешная. Чашка-чашке рознь, есть же чашки для деликатной обработки камня, хотя когда мне такая понадобилась, я её не смог найти, пришлось драть черепахами. Вобщем 50-ка шлифует не плохо, но расход черепах не слабый и скорость не очень. 30-ку тоже не нашел, она бы наверняка лучше подошла бы. Корщеткой тоже не решился, мягкая без толку, грубая косичка сильно грубая для деликатной работы. 

Фасад, долго это будет, а чашки все таки не пойдут ))

Подписываемся на тему День за днём, моя работа https://homemasters.ru/...esta-raboty/ и на мой инстарам https://www.instagram.c...gda35remont/

Принимаю заказы на мебель из слэбов

 

Для публикации сообщений создайте учётную запись или авторизуйтесь

Вы должны быть зарегистрированным пользователем, чтобы оставить комментарий

Создать учетную запись

Зарегистрируйтесь в нашем сообществе.

Зарегистрироваться

Войти

Уже есть аккаунт? Войти в систему.

Войти

Или войти с помощью одного из сервисов



  • Наши рекомендации

    • Подходы к ремонту старых домов в России
      В России сотни тысяч старых домов, многие из которых являются не только свидетельством исторического наследия, но и отражением уникальной культуры и традиций страны. Эти дома, будь то деревянные избы или старинные каменные постройки, сохраняют в себе дух времени и рассказывают историю поколений.

      • 0 ответов
    • Кажись всё или строительный пылесос с тройной мультициклонной ступенью очистки
      Кажись всё или строительный пылесос с тройной мультициклонной ступенью очистки

        • Нравится
      • 16 ответов
    • Люк для кошек своими руками
      Разумеется давно придуманы и продаются специальные лючки для кошек, которые можно врезать в дверь, но мы ведь не ищем легких путей . Да и по зоомагазинам я не хожу, а "гугление" показало, что такие люки для кошек стоят относительно не дешево. В то же время под рукой были два "копеечных" сантехнических пластиковых лючка для ГКЛ. Все что оставалось, так это обломать фиксаторы крышек, что бы они открывались в обе стороны, ровно выпилить отверстие в двери, да вклеить симметрично эти лючки.

      То, что получилось видно на фото. Разумеется это не для тех, у кого "дизайнерский ремонт", но для обыкновенной квартиры вполне подходит. Недостатков не замечено, животных и людей всё устраивает .


      Реакцию форумчан на этот люк можно узнать в этой теме https://homemasters.ru/...me/?p=330637

        • Ого
      • 6 ответов
    • Вторая жизнь дивана: искусство ремонта мягкой мебели своими руками
      В эпоху беспрерывного потребления и стремления к новизне, ремонт старой мягкой мебели своими руками приобретает не просто практическое, но и глубоко философское значение. Это действие как знак уважения к труду мастеров, которые вложили свое мастерство в создание диванов, кресел и пуфов, и как воплощение идеи устойчивого потребления. С каждым возвращенным к жизни предметом мебели, мы не только сохраняем историю и уникальность каждого изделия, но и противостоим бездумному обновлению интерьера за счет экологии и рационального использования ресурсов.

        • Нравится
      • 0 ответов
    • Как построить теплый дом, не тратя лишних денег
      Строительство гостевого дома решил выделить в отдельную тему, так будет меньше путаницы.


        • Спасибо
        • Нравится
      • 257 ответов
    • Газовые котлы: эффективное, экономичное и экологичное решение для отопления вашего дома
      В современном мире, где комфорт и устойчивость стали ключевыми аспектами повседневной жизни, выбор правильного источника отопления дома становится особенно актуальным. Газовые котлы, сочетая в себе преимущества эффективности, экономичности и экологичности, представляют собой одно из наиболее популярных решений для обеспечения комфортной температуры в жилых и коммерческих помещениях.

      • 0 ответов
    • Аккумуляторные пилы  SCW и  SCM  22-A
      После того как провёл тесты, приступил к самому главному. Поменять диски местами, и проверить, как инструмент на это отреагирует, ведь они внешнее и походу внутренне практически одинаковые, пила по дереву конечно более навороченее, есть настройки угла наклона и можно на шину посадить через адаптер.

      • 4 ответа
    • Дома из сруба: идеальное сочетание уюта и прочности.
      Строительство собственного дома является важной вехой в жизни любого человека, поскольку оно знаменует собой важное событие. Выбор строительных материалов имеет огромное значение для создания теплого и функционального жилища. На протяжении всей древней истории древесина была распространенным материалом для строительства домов, что отразилось на различных культурах мира.

      • 0 ответов
×
×
  • Создать...

Важная информация

Мы разместили cookie-файлы на ваше устройство, чтобы помочь сделать этот сайт лучше. Вы можете изменить свои настройки cookie-файлов, или продолжить без изменения настроек.