Перейти к содержанию
Форумы о ремонте и строительстве

Как предусмотреть заводку интернет и телефонного кабеля в новую квартиру?

Оценить эту тему:


Рекомендуемые сообщения

Опубликовано

Квартира в новом монолитно-кирпичном доме, заселение только начинается. Пока есть только один провайдер, но я искренне надеюсь, что придут и другие. Интернет нужен будет точно, но вот прокладывать его по стене и штробить дырку в стене уж очень не хочется. Подскажите, пожалуйста, как правильно предусмотреть отверстие/канал для будущей беспроблемной заводки кабелей в квартиру? Также есть домофон, но где его кабель проходит, я пока не знаю.

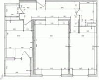
Поясню по приложенным фотографиям:

1. На схеме этажа

1.1. моя квартира в центре

1.2. В коридоре:

1.2.1. Справа сверху – электрощитки

1.2.2. Слева снизу – отопления и водопровод

1.2.3. Справа снизу – пустой короб, фотографии которого я также привёл. Я так думаю, там будет проходить вся слаботочка.

ФОТО ВЫЛОЖУ ПОЗЖЕ, посколь движок режет картинки

post-76885-1330019811_thumb.jpg

post-76885-1330019821_thumb.gif

post-76885-1330020667_thumb.jpg

post-76885-1330020678_thumb.jpg

post-76885-1330020684_thumb.jpg

А вот и фотки коридора нашёл, правда это в соседнем доме, но застройщик тот же.

post-76885-1330170277_thumb.jpg

post-76885-1330170284_thumb.jpg

post-76885-1330170338_thumb.jpg

post-76885-1330170405_thumb.jpg

Ну в таких домах, в стадии строительства, мы обычно под стяжку трубы пластиковые закладываем 20 мм 1 или 2шт. от слаботочного щитка подъезда до прихожей или сразу в слаботочный щиток квартиры, ставим его в прихожей ниже под силовым. Странно, почему вам так не сделали, туда поместятся: 2 тв кабеля, 2 интернет кабеля, телефон и домофон, а если 2 трубы - хоть оптику в квартиру (в будущем актуально). Уточните как приходит к вам домофон, может именно в такой трубе. Когда штукатуры мажут все щели и дыры, которые они видят, могут ненароком замазать выход трубы из стены и вы не сразу ее найдете.

Я сделал под потолочными плитами (в пространстве над натяжным потолком) "выход" на лестничную клетку (т.н. предбанник с железной дверью). post-19386-1330197603_thumb.jpgСо стороны предбанника эту проводку "принимает" небольшая металлическая коробка (ключ, замок) в которую уже стекаются коммуникации с раздаточного щитка этажа. В этой коробке они как нужно коммутируются и дальше эта проводка уже выныривает у меня в слаботочном щитке:post-19386-1330197841_thumb.jpgОрганизована еще и принудительная вентиляция, которая будет "выбрасываться" в металлическую коробку и рассеиваться через ее боковые отверстия..

palych, как найдете ввод - сразу прокидывайте не менее "2 тв кабеля, 2 интернет кабеля, телефон и домофон"

потом в квартире завести это до слаботочного щитка, и от него в каждую комнату по столько же кабелей. Сначала кажется много и для чего? Потом будет надо - но уже не сделаешь малыми усилиями.

Со стороны предбанника эту проводку "принимает" небольшая металлическая коробка (ключ, замок) в которую уже стекаются коммуникации с раздаточного щитка этажа. В этой коробке они как нужно коммутируются и дальше эта проводка уже выныривает у меня в слаботочном щитке:

Не совсем понял роль металлической коробки для коммутации. А разве не в квартирном щитке все коммутируется?А с вентиляцией идея интересная, видимо блоков питания и регистраторов будет немеренно в щитке. :)
  • 2 недели спустя...

Съездил на квартиру, сделал фотки того, как застройщик сделал подвод слаботочки (короб под потолком):

post-76885-1331103069_thumb.jpg

post-76885-1331103077_thumb.jpg

post-76885-1331103113_thumb.jpg

post-76885-1331103120_thumb.jpg

post-76885-1331103137_thumb.jpg

это не ввод слаботочки - это смонтированная система пожарной сигнализации

Палыч, в своей квартире я еще предусмотрел вывод на площадку кабелей для двух видеокамер и видеоглазка, с любезных подсказок apmav, чего и вам советую.

Розовый ТРП в бухточке это домофон?

Ага.

Палыч, в своей квартире я еще предусмотрел вывод на площадку кабелей для двух видеокамер и видеоглазка, с любезных подсказок apmav, чего и вам советую.

Я четыре камеры планирую повесить.

для двух видеокамер

Я четыре камеры планирую повесить.

Кто больше :D А зачем так много?

Такие варианты мы тоже делали. В широкие короба, которые проходят по потолку и стенам общего коридора заводили телевизионные и домофонные кабели, затем в них заводили свои провода монтажники ОПС (они еще короба свои узкие к датчикам монтировали), и еще остается место для телефона и интернета. Естетственно, эти короба начинаются от этажного слаботочного щитка. Если вводное отверстие в квартиру сделали маленьким, два варианта, первый отсоединить провод сигнализации и домофонный кабель, вытолкнуть их наружу, расширить отверстие и обратно все завести, второй сделать рядом еще отверстие (осторожно). Судьба пожарно-охранной сигнализации у нас печальна, как правило все это беспощадно выбрасывается хозяевами квартир, чтоб не портил интерьер, формально застройщик свое дело сделал - если что виноват хозяин квартиры. Для того чтобы легче добавить свой кабель в общий пучок, внутри короба мы ставили хомуты или металлические пластины-замки, когда снимаешь крышку короба, провода не вываливаются на голову.

Для публикации сообщений создайте учётную запись или авторизуйтесь

Вы должны быть зарегистрированным пользователем, чтобы оставить комментарий

Создать учетную запись

Зарегистрируйтесь в нашем сообществе.

Зарегистрироваться

Войти

Уже есть аккаунт? Войти в систему.

Войти

Или войти с помощью одного из сервисов



  • Наши рекомендации

    • Люк для кошек своими руками
      Разумеется давно придуманы и продаются специальные лючки для кошек, которые можно врезать в дверь, но мы ведь не ищем легких путей . Да и по зоомагазинам я не хожу, а "гугление" показало, что такие люки для кошек стоят относительно не дешево. В то же время под рукой были два "копеечных" сантехнических пластиковых лючка для ГКЛ. Все что оставалось, так это обломать фиксаторы крышек, что бы они открывались в обе стороны, ровно выпилить отверстие в двери, да вклеить симметрично эти лючки.

      То, что получилось видно на фото. Разумеется это не для тех, у кого "дизайнерский ремонт", но для обыкновенной квартиры вполне подходит. Недостатков не замечено, животных и людей всё устраивает .


      Реакцию форумчан на этот люк можно узнать в этой теме https://homemasters.ru/...me/?p=330637

        • Ого
      • 6 ответов
    • Дома из сруба: идеальное сочетание уюта и прочности.
      Строительство собственного дома является важной вехой в жизни любого человека, поскольку оно знаменует собой важное событие. Выбор строительных материалов имеет огромное значение для создания теплого и функционального жилища. На протяжении всей древней истории древесина была распространенным материалом для строительства домов, что отразилось на различных культурах мира.

      • 0 ответов
    • Подходы к ремонту старых домов в России
      В России сотни тысяч старых домов, многие из которых являются не только свидетельством исторического наследия, но и отражением уникальной культуры и традиций страны. Эти дома, будь то деревянные избы или старинные каменные постройки, сохраняют в себе дух времени и рассказывают историю поколений.

      • 0 ответов
    • Аккумуляторные пилы  SCW и  SCM  22-A
      После того как провёл тесты, приступил к самому главному. Поменять диски местами, и проверить, как инструмент на это отреагирует, ведь они внешнее и походу внутренне практически одинаковые, пила по дереву конечно более навороченее, есть настройки угла наклона и можно на шину посадить через адаптер.

      • 4 ответа
    • Газовые котлы: эффективное, экономичное и экологичное решение для отопления вашего дома
      В современном мире, где комфорт и устойчивость стали ключевыми аспектами повседневной жизни, выбор правильного источника отопления дома становится особенно актуальным. Газовые котлы, сочетая в себе преимущества эффективности, экономичности и экологичности, представляют собой одно из наиболее популярных решений для обеспечения комфортной температуры в жилых и коммерческих помещениях.

      • 0 ответов
    • Как построить теплый дом, не тратя лишних денег
      Строительство гостевого дома решил выделить в отдельную тему, так будет меньше путаницы.


        • Спасибо
        • Нравится
      • 259 ответов
    • Вторая жизнь дивана: искусство ремонта мягкой мебели своими руками
      В эпоху беспрерывного потребления и стремления к новизне, ремонт старой мягкой мебели своими руками приобретает не просто практическое, но и глубоко философское значение. Это действие как знак уважения к труду мастеров, которые вложили свое мастерство в создание диванов, кресел и пуфов, и как воплощение идеи устойчивого потребления. С каждым возвращенным к жизни предметом мебели, мы не только сохраняем историю и уникальность каждого изделия, но и противостоим бездумному обновлению интерьера за счет экологии и рационального использования ресурсов.

        • Нравится
      • 0 ответов
    • Кажись всё или строительный пылесос с тройной мультициклонной ступенью очистки
      Кажись всё или строительный пылесос с тройной мультициклонной ступенью очистки

        • Нравится
      • 16 ответов
×
×
  • Создать...

Важная информация

Мы разместили cookie-файлы на ваше устройство, чтобы помочь сделать этот сайт лучше. Вы можете изменить свои настройки cookie-файлов, или продолжить без изменения настроек.